Active

$215,000

Características:
  • 3 Quartos
  • 3 Banheiros
  • 147 m²
Visão Geral
  • ID: MFROM691958
  • Quartos: 3
  • Banheiros: 3
  • Tamanho: 147 m²
Detalhes do Imóvel
Observações
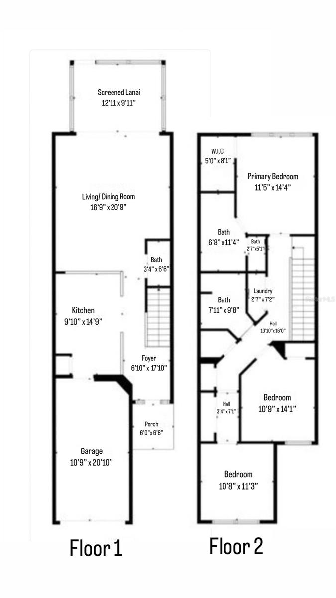
ENORME REDUÇÃO DE PREÇOS! Vendedor motivado! Bem -vindo para casa em Wynchase no Furranch! Este encantador Townhome Bretton Model está situado em um condomínio fechado, oferecendo não apenas um lugar para morar, mas um estilo de vida. Apresentando uma garagem de um carro e um hall de entrada encantadora, você adorará a cozinha aberta, a ladrilhos em áreas molhadas e o piso LVP por toda parte. A espaçosa grande sala tem vista para um grande pátio de tela, perfeito para beber café ou chá enquanto mergulha em um bom livro. No andar de cima, você encontrará três quartos brilhantes -cada um desingido para deixar entrar bastante luz natural. O quarto principal possui um banho privativo com pias duplas. Além disso, a conveniência de uma lavadora e secadora no andar de cima facilita a roupa. Novo aquecedor de água quente (2025), New HVAC (2017). O Wychase no Foreeranch é uma comunidade fantástica que oferece uma piscina, fitness center, vôlei, tênis e quadras de basquete. Localizado perto do SR 200, com compras, restaurantes e médicos a apenas alguns minutos. O World Equestrian Center fica a apenas 7,4 milhas de distância. Vendendo como está. Uma ou mais fotos foram praticamente encenadas.
Considerações Financeiras
Preço:
$215,000
Taxa de HOA:
275
Valor do Imposto:
$3445.66
Preço por m²:
$135.73
Descrição Legal do Imposto:
SEC 33 TWP 15 RGE 21 PLAT BOOK 008 PÁGINA 142 WYNCHASE TOWNHOMES LOTE 50
Características Exteriores
Tamanho do Lote:
1742
Características do Lote:
N/D
Beira-mar:
Não
Vagas de Estacionamento:
N/D
Estacionamento:
N/D
Telhado:
Telha
Piscina:
Não
Características da Piscina:
N/D
Características Interiores
Quartos:
3
Banheiros:
3
Aquecimento:
Elétrico
Resfriamento:
Central Aérea
Eletrodomésticos:
Máquina de lavar louça, secadora, micro-ondas, fogão, geladeira, lavadora
Mobiliado:
Não
Andar:
Vinil de luxo
Níveis:
Dois
Características Adicionais
Subtipo de Imóvel:
Moradia
Estilo:
N/D
Ano de Construção:
2006
Tipo de Construção:
Bloquear
Vagas na Garagem:
Sim
Vagas Cobertas:
N/D
Orientação da Fachada:
Sudeste
Animais Permitidos:
Não
Condição Especial:
Nenhum
Características Adicionais:
Iluminação, calhas de chuva
Características Adicionais 2:
N/D
Mapa
  • Endereço
    4108 SW 54TH CIR
Fale com um profissional
Por Que Nos Escolher?
  • Comunicação e Transparência
  • Negociação Qualificada
  • Rede Profissional Robusta
  • Suporte Pós-Venda
Propriedades em Destaque

Imóveis relacionados

img
  • Featured
  • Active
Townhouse

15590 MURCOTT BLOSSOM BLVD

  • 4
  • 3
  • 204 m²
avt
Daniel Dourado
$ 469,000
avt
Daniel Dourado
$ 275,000
avt
Daniel Dourado
$ 467,990
avt
Daniel Dourado
$ 435,000
avt
Daniel Dourado
$ 265,490
avt
Daniel Dourado
$ 278,095
avt
Daniel Dourado
$ 695,000
avt
Daniel Dourado
$ 210,000
img
  • Featured
  • Active
Townhouse

222 CARPENTERS WAY #69

  • 3
  • 3
  • 131 m²
avt
Daniel Dourado
$ 239,900
avt
Daniel Dourado
$ 499,950
avt
Daniel Dourado
$ 298,995
avt
Daniel Dourado
$ 296,720