Active

$5,000,000

Características:
  • Quartos
  • 0 Banheiros
  • 0 m²
Visão Geral
  • ID: MFRA4670301
  • Quartos:
  • Banheiros: 0
  • Tamanho: 0 m²
Detalhes do Imóvel
Observações
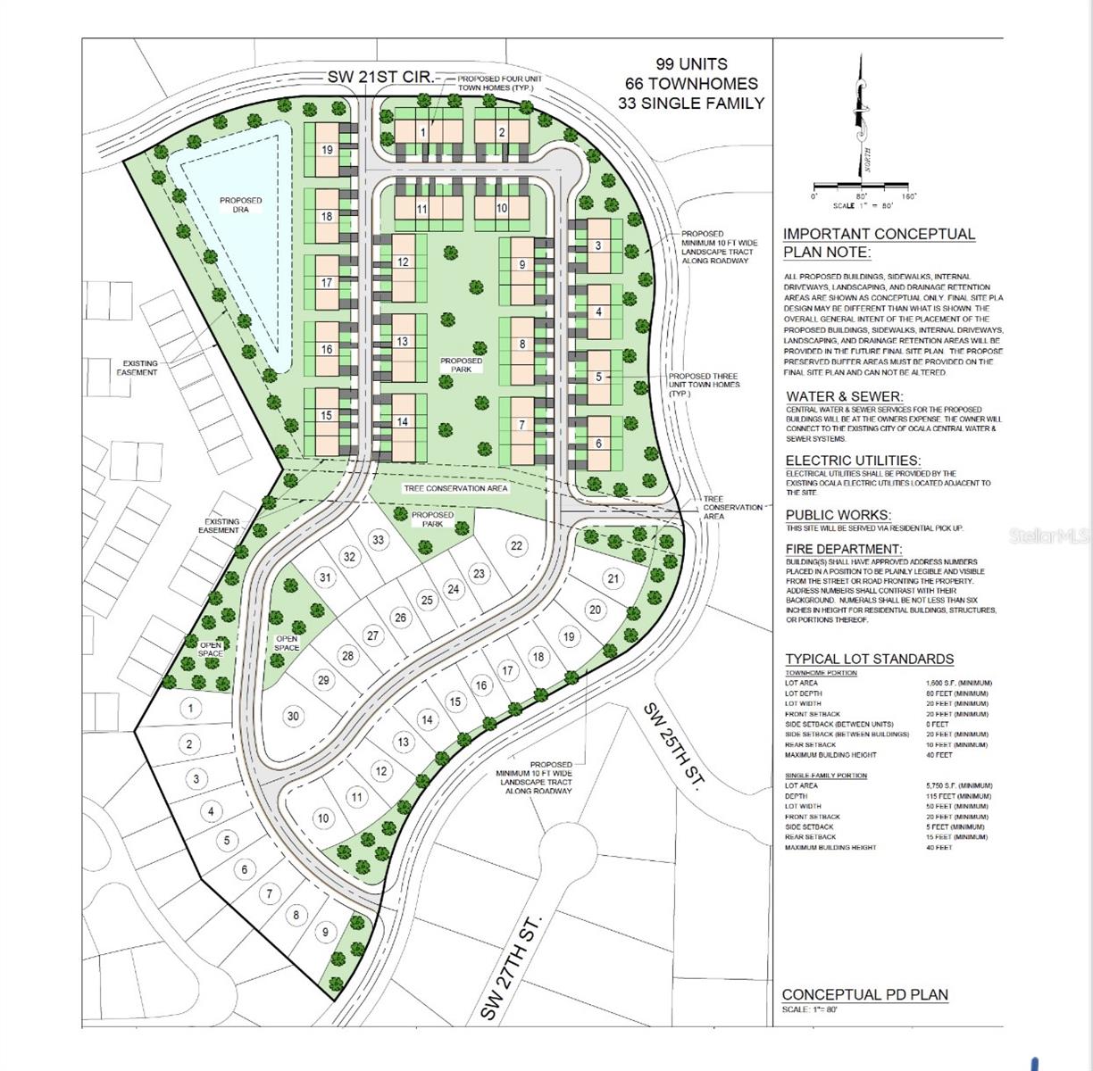
Situado no coração de Ocala, Willow Creek em Cala Hills apresenta uma oportunidade excepcional para desenvolvimento residencial dentro de uma das comunidades estabelecidas mais desejáveis ​​da região. Este local de ± 22 acres está totalmente autorizado e pronto para a próxima fase de crescimento, com água e esgoto municipais já na propriedade e um HOA em vigor. A planta do local aprovada oferece flexibilidade para um mix de 66 residências urbanas e 33 moradias individuais. residências familiares ou, alternativamente, 68 residências unifamiliares – permitindo que os incorporadores adaptem o mix de produtos para atender à demanda do mercado. A propriedade se beneficia da infraestrutura comunitária existente, dos bairros vizinhos atraentes e do acesso conveniente aos principais corredores, centros de emprego e comodidades de varejo. Com a pesquisa e o plano do local em mãos, Willow Creek em Cala Hills oferece uma rara oportunidade “plug-and-play” para construtores ou investidores que buscam um local de desenvolvimento de primeira linha no centro da zona de rápida expansão residencial de Ocala. O crescimento do condado de Ocala e Marion destaca o mercado de maior crescimento: Ocala está entre as 10 áreas metropolitanas de crescimento mais rápido da Flórida e foi reconhecida pelo U.S. Census Bureau por seu crescimento consistente de população e empregos. Aumento populacional: A população do condado de Marion ultrapassa 400.000 habitantes e continua a crescer mais de 2% ao ano, alimentada pela imigração de todos os EUA. Forte base de emprego: Ancorada por cuidados de saúde, logística e produção avançada, Ocala é o lar de grandes empregadores como FedEx, Chewy, Amazon, Cardinal LG e o centro cultural em expansão do Reilly Arts Center. Conectividade: Centralmente localizado a 90 minutos de Orlando,
Considerações Financeiras
Preço:
$5,000,000
Taxa de HOA:
112
Valor do Imposto:
$5230.83
Preço por m²:
$5.22
Descrição Legal do Imposto:
SEC 25 TWP 15 RGE 21 PLAT BOOK 006 PÁGINA 118 WHITE OAK VILLAGE FASE II TRACT H e SEC 24 TWP 15 RGE 21 PLAT BOOK 006 PÁGINA 118 WHITE OAK VILLAGE FASE II TRACT G Parcela Pai: 2358-000-000
Características Exteriores
Tamanho do Lote:
958320
Características do Lote:
Luzes de rua construídas, pavimentadas
Beira-mar:
Não
Vagas de Estacionamento:
N/D
Estacionamento:
N/D
Telhado:
N/D
Piscina:
Não
Características da Piscina:
N/D
Características Interiores
Quartos:
Banheiros:
0
Aquecimento:
N/D
Resfriamento:
N/D
Eletrodomésticos:
N/D
Mobiliado:
Não
Andar:
N/D
Níveis:
N/D
Características Adicionais
Subtipo de Imóvel:
N/D
Estilo:
N/D
Ano de Construção:
N/D
Tipo de Construção:
N/D
Vagas na Garagem:
Não
Vagas Cobertas:
N/D
Orientação da Fachada:
N/D
Animais Permitidos:
Sim
Condição Especial:
Nenhum
Características Adicionais:
N/D
Características Adicionais 2:
N/D
Mapa
  • Endereço
    TBD SW 20TH PL
Fale com um profissional
Por Que Nos Escolher?
  • Comunicação e Transparência
  • Negociação Qualificada
  • Rede Profissional Robusta
  • Suporte Pós-Venda
Propriedades em Destaque

Imóveis relacionados

img
  • Featured
  • Active

216ac NE 85TH AVE RD

  • 0
  • 0 m²
avt
Daniel Dourado
$ 1,948,320
img
  • Featured
  • Active

12805 FOREST HILLS DR

  • 0
  • 0 m²
avt
Daniel Dourado
$ 399,000
img
  • Featured
  • Active

BO ALMIRANTE SUR CARRETERA 160 (A)

  • 0
  • 0 m²
avt
Daniel Dourado
$ 525,000
img
  • Featured
  • Active

17108 CORTEZ BLVD

  • 0
  • 0 m²
avt
Daniel Dourado
$ 995,000
img
  • Featured
  • Active

tbd NE 175TH AVE

  • 0
  • 0 m²
avt
Daniel Dourado
$ 325,000
img
  • Featured
  • Active

110 W KING ST

  • 0
  • 0 m²
avt
Daniel Dourado
$ 425,000
img
  • Featured
  • Active

254 YACHT HARBOR DR

  • 0
  • 0 m²
avt
Daniel Dourado
$ 269,000
img
  • Featured
  • Active

18231 BELLMORE AVE

  • 0
  • 0 m²
avt
Daniel Dourado
$ 285,000
img
  • Featured
  • Active

7377 US HIGHWAY 27 S

  • 0
  • 0 m²
avt
Daniel Dourado
$ 799,900
img
  • Featured
  • Active

0 CLINTON CEMETERY RD.

  • 0
  • 0 m²
avt
Daniel Dourado
$ 260,000
img
  • Featured
  • Active

480 CLINTON CEMETERY RD

  • 0
  • 0 m²
avt
Daniel Dourado
$ 260,000
img
  • Featured
  • Active

SEMINOLE AVE

  • 0
  • 0 m²
avt
Daniel Dourado
$ 2,600,000