Active

$260,000

Características:
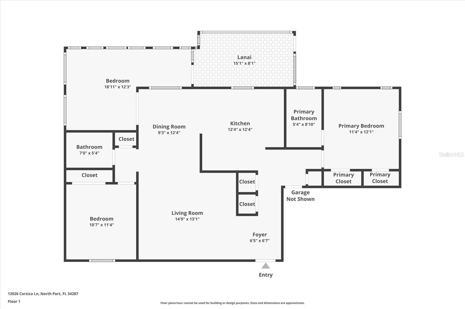
  • 3 Quartos
  • 2 Banheiros
  • 100 m²
Visão Geral
  • ID: MFRN6135093
  • Quartos: 3
  • Banheiros: 2
  • Tamanho: 100 m²
Detalhes do Imóvel
Observações
Privacidade total! Vendedor motivado! Bem -vindo a uma grande oportunidade de possuir uma casa única na desejável cidade de North Port, Flórida. Não zona de inundação. Sem HOA ou CDD. Minutos de Wellen Park e Cosco novo! Linda paisagem! Quintal cercado! Situada em uma comunidade vibrante e próspera a minutos de fontes minerais quentes, esta propriedade promete um estilo de vida cheio de sol abundante, beleza natural e charme costeiro. Aninhado no coração de Port Charlotte, esta casa se beneficia de sua localização privilegiada, oferecendo fácil acesso a uma variedade de comodidades e atrações. Descubra as praias primárias do Golfo Procurador, onde você pode aproveitar o sol, participar de atividades aquáticas ou simplesmente saborear a tranquilidade do oceano. Embarque em aventuras náuticas das marinas convenientemente localizadas, permitindo que você explore as vias navegáveis ​​cativantes da região e as ilhas próximas. Os entusiastas da pesca vão se deliciar com as oportunidades de pesca de classe mundial, enquanto os entusiastas do golfe podem se entregar a uma variedade de campos de golfe de renome. Port Charlotte é conhecido por sua próspera cena de compras e refeições, com uma variedade diversificada de centros de varejo, butiques e restaurantes. Mergulhe na área vibrante do centro da cidade, com lojas encantadoras, galerias de arte e locais de entretenimento. A cidade hospeda vários eventos culturais, festivais e reuniões da comunidade ao longo do ano, garantindo que sempre haja algo emocionante acontecendo. Perca -se na beleza do parque estadual de Charlotte Harbor Preserve, onde trilhas cênicas, avistamentos de vida selvagem e hidrovias pacíficas aguardam exploração. O Parque Estadual do Rio Myakka é outra jóia próxima, encantadora, visitantes com suas impressionantes paisagens e flora e fauna diversas. Os entusiastas da natureza encontrarão inúmeras oportunidades para se conectar com o ar livre a poucos momentos de distância desta propriedade. O North Port também possui excelentes instituições educacionais, instalações médicas confiáveis ​​e opções de transporte convenientes. A comunidade acolhedora da cidade e o forte senso de pertencimento o tornam o local ideal para estabelecer raízes e criar memórias duradouras. Não perca esta oportunidade excepcional de criar sua casa dos seus sonhos ou investir em um local privilegiado. Agende uma exibição hoje e comece a imaginar as infinitas possibilidades oferecidas por esta propriedade notável!
Considerações Financeiras
Preço:
$260,000
Taxa de HOA:
N/D
Valor do Imposto:
$2124
Preço por m²:
$239.19
Descrição Legal do Imposto:
Lote 9 BLK 22 Unidade de molas minerais quentes 81
Características Exteriores
Tamanho do Lote:
7928
Características do Lote:
N/D
Beira-mar:
Não
Vagas de Estacionamento:
N/D
Estacionamento:
N/D
Telhado:
Telha
Piscina:
Não
Características da Piscina:
N/D
Características Interiores
Quartos:
3
Banheiros:
2
Aquecimento:
Central
Resfriamento:
Central Aérea
Eletrodomésticos:
Máquina de lavar louça, secadora, aquecedor elétrico de água, micro-ondas, fogão, geladeira, lavadora
Mobiliado:
Sim
Andar:
Telha
Níveis:
Um
Características Adicionais
Subtipo de Imóvel:
Residência Unifamiliar
Estilo:
N/D
Ano de Construção:
1986
Tipo de Construção:
Bloco, Estuque
Vagas na Garagem:
Sim
Vagas Cobertas:
N/D
Orientação da Fachada:
Nordeste
Animais Permitidos:
Não
Condição Especial:
Nenhum
Características Adicionais:
Calhas de chuva, calçada
Características Adicionais 2:
N/D
Mapa
  • Endereço
    12026 CORSICA LN
Fale com um profissional
Por Que Nos Escolher?
  • Comunicação e Transparência
  • Negociação Qualificada
  • Rede Profissional Robusta
  • Suporte Pós-Venda
Propriedades em Destaque

Imóveis relacionados

avt
Daniel Dourado
$ 479,000
avt
Daniel Dourado
$ 340,000
avt
Daniel Dourado
$ 650,000
avt
Daniel Dourado
$ 340,000
avt
Daniel Dourado
$ 275,000
avt
Daniel Dourado
$ 1,300,000
avt
Daniel Dourado
$ 225,000
avt
Daniel Dourado
$ 399,000