Active

$309,000

Características:
  • 3 Quartos
  • 2 Banheiros
  • 159 m²
Visão Geral
  • ID: MFRC7519534
  • Quartos: 3
  • Banheiros: 2
  • Tamanho: 159 m²
Detalhes do Imóvel
Observações
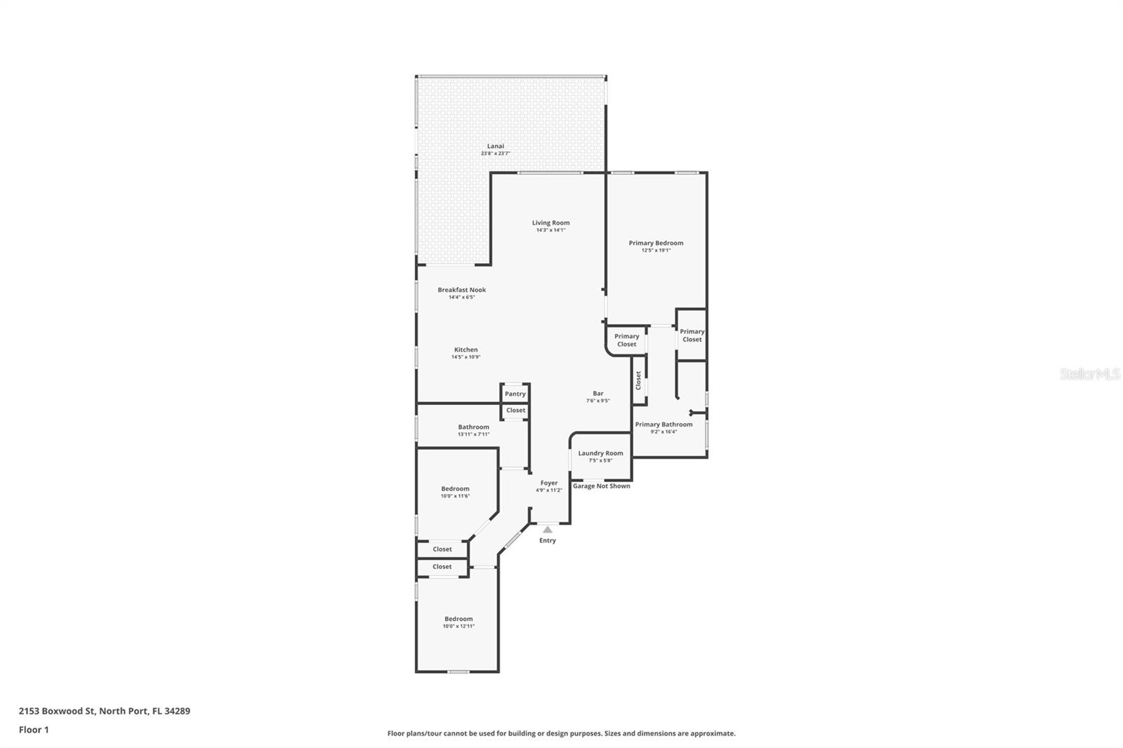
Impecavelmente mantida e pronta para morar, esta espaçosa casa de 3 quartos, 2 banheiros e garagem para 2 carros oferece mais de 1.700 pés quadrados de espaço cuidadosamente projetado em um ambiente tranquilo e privado. A partir do momento em que você entra, você apreciará o orgulho de propriedade e a sensação limpa e coesa criada pelo piso de cerâmica em todas as áreas de estar principais, detalhes em sancas e ausência de carpete. Os quartos de hóspedes possuem piso laminado durável, enquanto a suíte principal tem acabamento em vinil luxuoso para maior conforto e estilo. A planta de conceito aberto é ideal tanto para a vida cotidiana quanto para o entretenimento, com a cozinha conectando-se perfeitamente às áreas de estar e jantar. A cozinha oferece amplo espaço de armário, uma grande barra de café da manhã para assentos casuais e uma despensa para armazenamento adicional, tornando-a tão funcional quanto convidativa. A luz natural flui por toda a casa, realçando o layout aberto e destacando os acabamentos neutros. O design de quarto dividido oferece privacidade para a suíte principal, que tem tamanho generoso de aproximadamente (18x12) com banheiro completo com pias duplas, box amplo e dois closets. Os quartos secundários são bem proporcionados e localizados no lado oposto da casa, ideais para hóspedes, familiares ou home office. Uma das características de destaque desta casa é a ampla varanda com tela de grandes dimensões, que foi cuidadosamente ampliada para criar um espaço de vida ao ar livre excepcional. Com vista para uma reserva arborizada serena que nunca será construída, a varanda oferece um cenário tranquilo e uma rara sensação de privacidade. Desfrute do café da manhã ou relaxe à noite enquanto aprecia a vista da vida selvagem nativa e da paisagem natural da Flórida. Grandes melhorias agregam valor e tranquilidade a longo prazo, incluindo a substituição do telhado em 2021 e uma nova tubulação completa da casa concluída em 2016. Persianas contra furacões também estão incluídas, proporcionando proteção e conveniência adicionais durante a temporada de tempestades. A casa não está localizada em uma zona de inundação, o que significa que não é necessário seguro contra inundações. Taxas HOA baixas - apenas US $ 286 trimestrais, incluindo cuidados com o gramado - e a taxa de CDD incluída na conta do imposto sobre a propriedade aumentam o valor geral. Lakeside Plantation é conhecida por sua atmosfera ativa e acolhedora, com um gerente de atividades em tempo integral no local e uma ampla variedade de comodidades. Os residentes desfrutam de um centro comunitário com piscina aquecida e spa durante todo o ano, além de quadras de tênis, pickleball e basquete, academia, biblioteca e um clube espaçoso que hospeda eventos e atividades regulares. Com praias premiadas do Golfo a apenas 30 minutos de distância e lojas, restaurantes e entretenimento a poucos minutos de casa, a conveniência realmente envolve você. Esteja você procurando uma residência em tempo integral ou uma escapadela sazonal, esta propriedade oferece um valor excepcional com sua localização desejável, atualizações modernas e condições de pronta mudança. Tem realmente um preço para vender.
Considerações Financeiras
Preço:
$309,000
Taxa de HOA:
286
Valor do Imposto:
$6985.72
Preço por m²:
$179.55
Descrição Legal do Imposto:
Lote 4 blk 17 plantação à beira do lago
Características Exteriores
Tamanho do Lote:
6781
Características do Lote:
Calçada, Pavimentada
Beira-mar:
Não
Vagas de Estacionamento:
N/D
Estacionamento:
Entrada de automóveis, abridor de porta de garagem
Telhado:
Telha
Piscina:
Não
Características da Piscina:
N/D
Características Interiores
Quartos:
3
Banheiros:
2
Aquecimento:
Central, Elétrica
Resfriamento:
Central Aérea
Eletrodomésticos:
Máquina de lavar louça, micro-ondas, fogão, geladeira
Mobiliado:
Sim
Andar:
Azulejo cerâmico, laminado, vinil luxuoso
Níveis:
Um
Características Adicionais
Subtipo de Imóvel:
Residência Unifamiliar
Estilo:
N/D
Ano de Construção:
2003
Tipo de Construção:
Bloco, Estuque
Vagas na Garagem:
Sim
Vagas Cobertas:
N/D
Orientação da Fachada:
Norte
Animais Permitidos:
Sim
Condição Especial:
Nenhum
Características Adicionais:
Iluminação, Caixa de Correio Privada, Calhas de Chuva, Calçada, Portas de Correr
Características Adicionais 2:
Envie o aluguel ao HOA para aprovação - consulte os documentos do HOA para restrições adicionais
Mapa
  • Endereço
    2153 BOXWOOD ST
Fale com um profissional
Por Que Nos Escolher?
  • Comunicação e Transparência
  • Negociação Qualificada
  • Rede Profissional Robusta
  • Suporte Pós-Venda
Propriedades em Destaque

Imóveis relacionados

avt
Daniel Dourado
$ 560,000
avt
Daniel Dourado
$ 265,000
avt
Daniel Dourado
$ 353,900
avt
Daniel Dourado
$ 423,900
avt
Daniel Dourado
$ 489,900
avt
Daniel Dourado
$ 3,499,000
avt
Daniel Dourado
$ 299,850
avt
Daniel Dourado
$ 382,000
avt
Daniel Dourado
$ 295,000