Active

$300,000

Características:
  • 3 Quartos
  • 2 Banheiros
  • 160 m²
Visão Geral
  • ID: MFRC7504438
  • Quartos: 3
  • Banheiros: 2
  • Tamanho: 160 m²
Detalhes do Imóvel
Observações
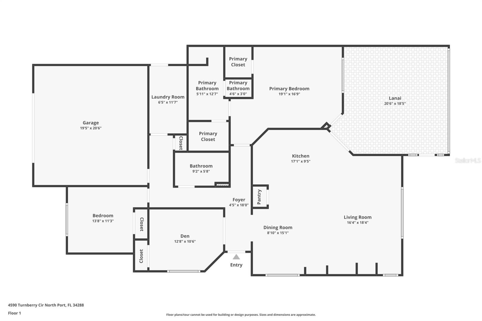
Linda vila de garagem de 3 quartos, 2 banheiros e 2 carros em Turnberry Trace, North Port-nenhum seguro de inundação é necessário! Clique em Virtual Tour Link 1 Para o vídeo e o Virtual Tour Link 2 para o Tour 3D! Esta casa bem conservada possui uma planta baixa brilhante e aberta, com pisos nas principais áreas de estar, tetos altos, portas francesas e iluminação moderna. A espaçosa área de estar e jantar é perfeita para entreter, conectando -se perfeitamente à cozinha, que possui utensílios de aço inoxidável, bancadas em granito, um backsplash de azulejos, uma despensa de armário de grande capacidade, amplo espaço para o armário acima e abaixo dos balcões e uma ilha prolongada com uma barra de café da manhã. O quarto principal oferece acesso privado em Lanai, dois armários e um banheiro privativo com uma vaidade de pia dupla, chuveiro de azulejos e armário de água. A planta baixa garante a privacidade dos hóspedes, com dois quartos adicionais, um com pisos de madeira brasileira e um banheiro compartilhado nas proximidades. A lavanderia espaçosa e centralmente localizada tem um balcão dobrável de granito, pia interna e um armário de armazenamento. Saia até a Lanai exibida, onde você pode aproveitar seu café da manhã ou relaxar à noite, cercado por um ambiente pacífico e particular. Um quintal privado volta a um cinto verde e tem uma cerca de Ligustrum, ajudando a manter a privacidade. Uma garagem de grandes dimensões oferece espaço extra, ideal para um banco de trabalho, baús de ferramentas ou armazenamento extra. 2024 telhado de telha - lanai roll -down roll -down - Isolamento de espuma de spray R -30 - todas as persianas de furacões em casa: Acordeão Fechar nas janelas Salve o paládio frontal e tons de controle remoto na porta lateral e na faixa. O Turnberry Trace é uma comunidade fechada e com restrição de ações que oferece um clube, piscina e sala de exercícios. Convenientemente localizado perto da I-75 e US-41, você está a poucos minutos de compras locais, restaurantes, o Charlotte Sports Park, recebendo o Tampa Bay Rays e o Charlotte Stone Crabs, o Cooltoday Park (Atlanta Braves Spring Training), o North Port Aquatic Center e o New Wellen Park Downtown District. Agende sua exibição hoje!
Considerações Financeiras
Preço:
$300,000
Taxa de HOA:
475
Valor do Imposto:
$2814.2
Preço por m²:
$173.31
Descrição Legal do Imposto:
Lote 37, juntamente com E 1/2 do lote 38, Turnberry Trace
Características Exteriores
Tamanho do Lote:
5625
Características do Lote:
No município, paisagístico, calçada, pavimentado
Beira-mar:
Não
Vagas de Estacionamento:
N/D
Estacionamento:
Entrada
Telhado:
Telha
Piscina:
Não
Características da Piscina:
N/D
Características Interiores
Quartos:
3
Banheiros:
2
Aquecimento:
Central, Elétrica
Resfriamento:
Central Aérea
Eletrodomésticos:
Máquina de lavar louça, secadora, aquecedor elétrico de água, micro-ondas, fogão, geladeira, lavadora
Mobiliado:
Sim
Andar:
Tapete, azulejo, madeira
Níveis:
Um
Características Adicionais
Subtipo de Imóvel:
Vila
Estilo:
N/D
Ano de Construção:
2013
Tipo de Construção:
Bloco, Estuque
Vagas na Garagem:
Sim
Vagas Cobertas:
N/D
Orientação da Fachada:
Nordeste
Animais Permitidos:
Não
Condição Especial:
Nenhum
Características Adicionais:
Portas francesas, persianas contra furacões, iluminação, calhas de chuva
Características Adicionais 2:
Veja documentos do condomínio em anexo
Mapa
  • Endereço
    4590 TURNBERRY CIR
Fale com um profissional
Por Que Nos Escolher?
  • Comunicação e Transparência
  • Negociação Qualificada
  • Rede Profissional Robusta
  • Suporte Pós-Venda
Propriedades em Destaque

Imóveis relacionados

img
  • Featured
  • Active
Villa

283 CAMINO DEL MANGO

  • 4
  • 5
  • 325 m²
avt
Daniel Dourado
$ 700,000
avt
Daniel Dourado
$ 475,000
img
  • Featured
  • Active
Villa

1789 BATELLO DR

  • 2
  • 2
  • 134 m²
avt
Daniel Dourado
$ 334,900
img
  • Featured
  • Active
Villa

6113 PAYNE STEWART DR

  • 3
  • 4
  • 277 m²
avt
Daniel Dourado
$ 4,950,000
avt
Daniel Dourado
$ 249,000
img
  • Featured
  • Active
Villa

6511 SILVERSTAR DR

  • 2
  • 2
  • 136 m²
avt
Daniel Dourado
$ 410,000
img
  • Featured
  • Active
Villa

7487 MOONBEAM AVE

  • 2
  • 2
  • 140 m²
avt
Daniel Dourado
$ 399,000
img
  • Featured
  • Active
Villa

6204 HERITAGE LN

  • 2
  • 2
  • 134 m²
avt
Daniel Dourado
$ 294,900
img
  • Featured
  • Active
Villa

12762 PALATKA DR

  • 2
  • 2
  • 151 m²
avt
Daniel Dourado
$ 459,900
avt
Daniel Dourado
$ 509,000
img
  • Featured
  • Active
Villa

403 BOCA CIEGA POINT BLVD N #2801

  • 2
  • 2
  • 182 m²
avt
Daniel Dourado
$ 660,000
img
  • Featured
  • Active
Villa

2189 OAK FOREST LN

  • 2
  • 2
  • 185 m²
avt
Daniel Dourado
$ 479,000