Active

$575,000

Características:
  • 4 Quartos
  • 3 Banheiros
  • 208 m²
Visão Geral
  • ID: MFRC7495960
  • Quartos: 4
  • Banheiros: 3
  • Tamanho: 208 m²
Detalhes do Imóvel
Observações
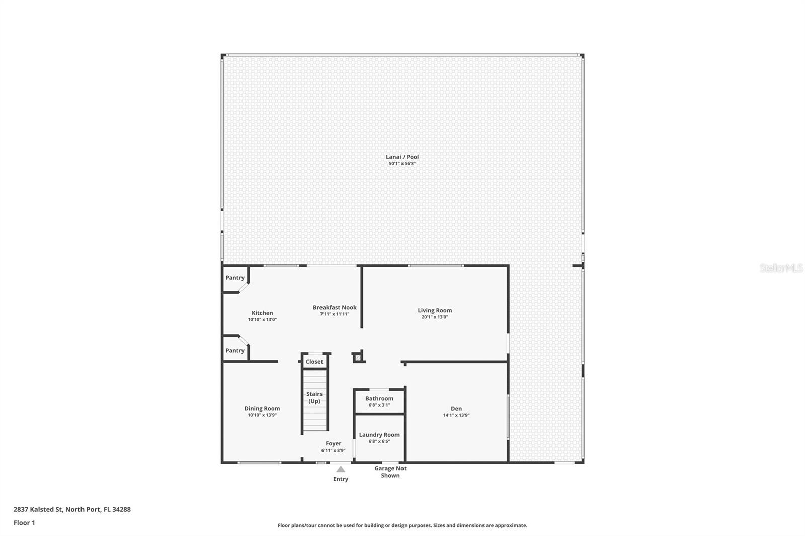
Bem -vindo ao seu Oasis! Apresentando uma grande piscina aquecida e spa com uma entrada de praia + varanda lateral coberta que faz desta a área perfeita para relaxar, entreter e relaxar. Sem HOA, sem restrições de ação. Esta casa de dois andares tem todo o espaço que você precisa em 4 quartos, 2,5 banheiros, garagem de 3 carros e uma grande sala de den/flex. Inclui uma cozinha encantadora com uma ilha de açougueiro e pia mais recente, utensílios de aço inoxidável, despensa dupla, recanto do café da manhã fora de kitchen e uma sala de jantar formal. O quarto principal é muito espaçoso e apresenta seus e seus armários que levam ao banheiro atualizado que possui um piso de pedra e cinco chuveiros e luzes LED. (2023 telhado e mais recente AC) Cerca de privacidade em ambos os lados da propriedade. A casa está conectada para o som surround e os recursos construídos em alto -falantes. Esta propriedade fica a menos de 10 minutos de compras, supermercados, médicos e muito mais. Marque sua consulta hoje, não podemos esperar que você veja esta casa!
Considerações Financeiras
Preço:
$575,000
Taxa de HOA:
N/D
Valor do Imposto:
$1929.98
Preço por m²:
$255.78
Descrição Legal do Imposto:
Lote 5 blk 1635 33rd add to Port Charlotte
Características Exteriores
Tamanho do Lote:
10375
Características do Lote:
Paisagístico, Pavimentado
Beira-mar:
Não
Vagas de Estacionamento:
N/D
Estacionamento:
N/D
Telhado:
Telha
Piscina:
Sim
Características da Piscina:
Gunite, Aquecido
Características Interiores
Quartos:
4
Banheiros:
3
Aquecimento:
Central
Resfriamento:
Central Aérea
Eletrodomésticos:
Máquina de lavar louça, micro-ondas, fogão, geladeira, purificador de água, amaciante de água
Mobiliado:
Sim
Andar:
Vinil
Níveis:
Dois
Características Adicionais
Subtipo de Imóvel:
Residência Unifamiliar
Estilo:
N/D
Ano de Construção:
2004
Tipo de Construção:
Bloco, Estuque
Vagas na Garagem:
Sim
Vagas Cobertas:
N/D
Orientação da Fachada:
Leste
Animais Permitidos:
Não
Condição Especial:
Nenhum
Características Adicionais:
Persianas contra furacões, sistema de irrigação, iluminação
Características Adicionais 2:
N/D
Mapa
  • Endereço
    2837 KALSTED ST
Fale com um profissional
Por Que Nos Escolher?
  • Comunicação e Transparência
  • Negociação Qualificada
  • Rede Profissional Robusta
  • Suporte Pós-Venda
Propriedades em Destaque

Imóveis relacionados

avt
Daniel Dourado
$ 715,900
avt
Daniel Dourado
$ 1,150,000
avt
Daniel Dourado
$ 400,000
avt
Daniel Dourado
$ 355,000
avt
Daniel Dourado
$ 1,325,000
avt
Daniel Dourado
$ 550,996
avt
Daniel Dourado
$ 369,990
avt
Daniel Dourado
$ 1,490,000
avt
Daniel Dourado
$ 598,000
avt
Daniel Dourado
$ 250,000