Active

$1,500,000

Características:
  • 3 Quartos
  • 2 Banheiros
  • 142 m²
Visão Geral
  • ID: MFRT3537937
  • Quartos: 3
  • Banheiros: 2
  • Tamanho: 142 m²
Detalhes do Imóvel
Observações
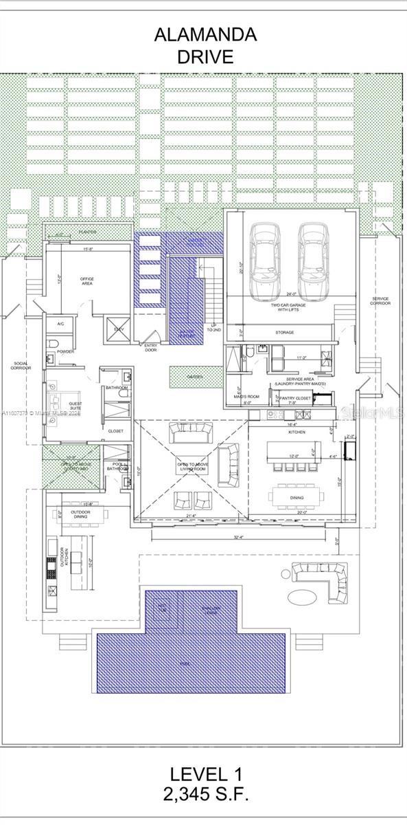
Pré-construção. Para ser construído. Oportunidade rara de construir uma casa personalizada no exclusivo condomínio fechado de Keystone Point. Projeto de 5.485 pés quadrados incl. suítes master no 1º e 2º andares. O 1º andar master oferece vida em um único nível com um layout espaçoso, closet e luxuoso banheiro privativo. O master do 2º andar oferece um retiro privado, closet e banheiro privativo tipo spa. Ambos os andares possuem tetos altos e muita luz natural, com o primeiro andar apresentando uma ampla sala de estar para entretenimento e o segundo andar oferecendo um aconchegante escritório familiar para relaxar. Casa também incl. uma garagem para dois carros. O 3º nível possui um terraço na cobertura com churrasqueira, terraço coberto e espaço para banheira de hidromassagem, perfeito para reuniões ao ar livre e vistas panorâmicas. Personalize e crie uma casa exclusiva e personalizada em uma comunidade eminente.
Considerações Financeiras
Preço:
$1,500,000
Taxa de HOA:
N/D
Valor do Imposto:
$14343.26
Preço por m²:
$977.2
Descrição Legal do Imposto:
PONTO KEYSTONE SEC 3 PB 50-100 LOTE 10 BLK 13 TAMANHO DO LOTE 75.000 X 125 COC 24677-2209 06 2006 1
Características Exteriores
Tamanho do Lote:
9375
Características do Lote:
N/D
Beira-mar:
Não
Vagas de Estacionamento:
N/D
Estacionamento:
N/D
Telhado:
Outro
Piscina:
Sim
Características da Piscina:
Interior
Características Interiores
Quartos:
3
Banheiros:
2
Aquecimento:
Outro
Resfriamento:
Outro
Eletrodomésticos:
Outro
Mobiliado:
Não
Andar:
Outro
Níveis:
Três ou mais
Características Adicionais
Subtipo de Imóvel:
Residência Unifamiliar
Estilo:
N/D
Ano de Construção:
1952
Tipo de Construção:
Outro
Vagas na Garagem:
Sim
Vagas Cobertas:
N/D
Orientação da Fachada:
Leste
Animais Permitidos:
Não
Condição Especial:
Nenhum
Características Adicionais:
Outro
Características Adicionais 2:
N/D
Mapa
  • Endereço
    2096 ALAMANDA DR
Fale com um profissional
Por Que Nos Escolher?
  • Comunicação e Transparência
  • Negociação Qualificada
  • Rede Profissional Robusta
  • Suporte Pós-Venda
Propriedades em Destaque

Imóveis relacionados

avt
Daniel Dourado
$ 475,000
avt
Daniel Dourado
$ 499,900
avt
Daniel Dourado
$ 525,000
avt
Daniel Dourado
$ 1,050,000
avt
Daniel Dourado
$ 399,900
avt
Daniel Dourado
$ 210,000
avt
Daniel Dourado
$ 455,000
avt
Daniel Dourado
$ 1,150,000
avt
Daniel Dourado
$ 400,000
avt
Daniel Dourado
$ 715,900
avt
Daniel Dourado
$ 1,325,000
avt
Daniel Dourado
$ 355,000