Active

$399,000

Características:
  • 4 Quartos
  • 5 Banheiros
  • 275 m²
Visão Geral
  • ID: MFRA4664596
  • Quartos: 4
  • Banheiros: 5
  • Tamanho: 275 m²
Detalhes do Imóvel
Observações
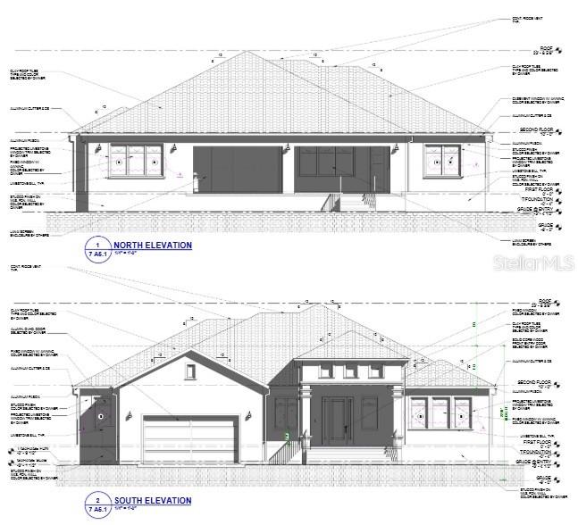
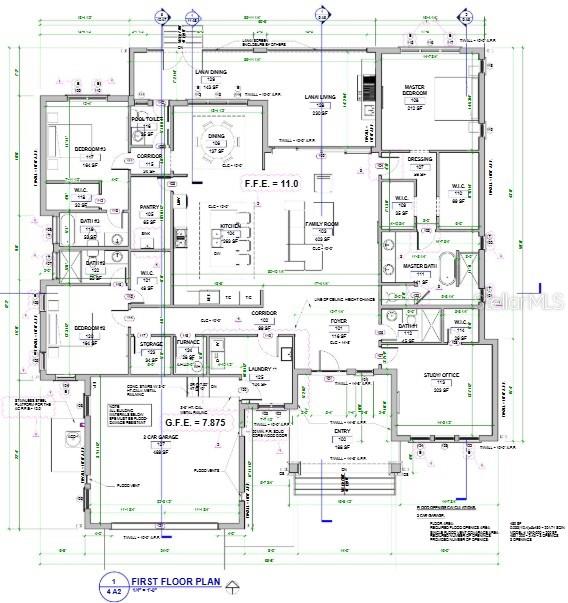
Em construção. Este projeto está sendo vendido como está e precisará ser concluído pelo novo proprietário às suas custas. Localizado na comunidade desejável da Blackburn Estates, esta propriedade oferece uma chance única de terminar o que já foi iniciado e criar uma casa personalizada perto de algumas das praias mais bonitas. Os rodapés e as paredes do caule já foram concluídos e cheios de solo, e a venda também inclui licenças ativas, planos de construção, materiais restantes (incluindo um conjunto completo de janelas e portas à prova de furacões e de luta sofisticadas), bem como a pesquisa, o plano de drenagem e o conjunto completo de licenças. Os compradores terão a opção de continuar com o construtor atual ou selecionar o seu próprio. Com casas de vários milhões de dólares nas proximidades e fácil acesso à hidrovia intracoastal para caiaque, pescar ou simplesmente aproveitar o tempo na água, esta é uma excelente oportunidade para dar vida à sua visão em um local procurado. Oportunidades como essa em um local tão sofisticado são extremamente raras-não perca a sua chance!
Considerações Financeiras
Preço:
$399,000
Taxa de HOA:
345
Valor do Imposto:
$2706.66
Preço por m²:
$134.43
Descrição Legal do Imposto:
Lote 1, adição de Blackburn Ridge, pb 55 pg 60-61
Características Exteriores
Tamanho do Lote:
11242
Características do Lote:
N/D
Beira-mar:
Não
Vagas de Estacionamento:
N/D
Estacionamento:
N/D
Telhado:
Telha
Piscina:
Não
Características da Piscina:
N/D
Características Interiores
Quartos:
4
Banheiros:
5
Aquecimento:
Central
Resfriamento:
Central Aérea
Eletrodomésticos:
Nenhum
Mobiliado:
Não
Andar:
Telha
Níveis:
Um
Características Adicionais
Subtipo de Imóvel:
Residência Unifamiliar
Estilo:
N/D
Ano de Construção:
2025
Tipo de Construção:
Bloquear
Vagas na Garagem:
Sim
Vagas Cobertas:
N/D
Orientação da Fachada:
Sul
Animais Permitidos:
Não
Condição Especial:
Nenhum
Características Adicionais:
Iluminação
Características Adicionais 2:
Por favor verifique com a associação
Mapa
  • Endereço
    4984 TOPSAIL DR
Fale com um profissional
Por Que Nos Escolher?
  • Comunicação e Transparência
  • Negociação Qualificada
  • Rede Profissional Robusta
  • Suporte Pós-Venda
Propriedades em Destaque

Imóveis relacionados

avt
Daniel Dourado
$ 565,000
avt
Daniel Dourado
$ 2,170,000
avt
Daniel Dourado
$ 405,000
avt
Daniel Dourado
$ 320,000
avt
Daniel Dourado
$ 575,000
avt
Daniel Dourado
$ 355,000
avt
Daniel Dourado
$ 635,000
avt
Daniel Dourado
$ 9,000,000
avt
Daniel Dourado
$ 535,000
avt
Daniel Dourado
$ 599,900
avt
Daniel Dourado
$ 1,545,000