Active

$389,000

Características:
  • Quartos
  • 0 Banheiros
  • 0 m²
Visão Geral
  • ID: MFRA4677531
  • Quartos:
  • Banheiros: 0
  • Tamanho: 0 m²
Detalhes do Imóvel
Observações
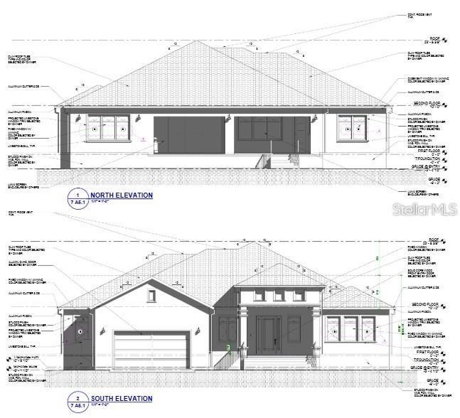
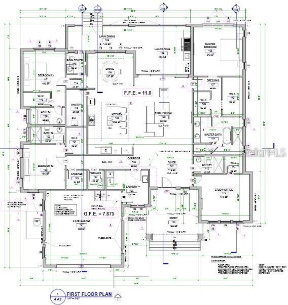
Oferecido COMO ESTÁ, este projeto residencial parcialmente concluído apresenta uma rara oportunidade de construir uma casa personalizada na altamente desejável comunidade de Blackburn Estates. A construção até o momento inclui rodapés concluídos e paredes de tronco preenchidas com solo. A venda transmite licenças ativas, planos de construção aprovados, uma pesquisa, plano de drenagem e o conjunto completo de licenças, juntamente com os materiais de construção restantes - mais notavelmente um pacote completo de janelas e portas de alta qualidade e resistentes a impactos, resistentes a furacões. Os compradores podem optar por continuar com o construtor atual ou contratar um construtor de sua escolha, sendo que todas as construções restantes serão concluídas às custas do comprador. Cercada por casas multimilionárias e localizada a poucos minutos de algumas das mais belas praias da região, a propriedade também oferece acesso conveniente à Intracoastal Waterway, ideal para canoagem, pesca e recreação à beira-mar. Uma oportunidade excepcional para concluir uma residência personalizada em uma localização privilegiada – projetos deste calibre em Blackburn Estates raramente estão disponíveis.
Considerações Financeiras
Preço:
$389,000
Taxa de HOA:
775
Valor do Imposto:
$2849
Preço por m²:
$34.6
Descrição Legal do Imposto:
Lote 1, adição de Blackburn Ridge, pb 55 pg 60-61
Características Exteriores
Tamanho do Lote:
11242
Características do Lote:
N/D
Beira-mar:
Não
Vagas de Estacionamento:
N/D
Estacionamento:
N/D
Telhado:
N/D
Piscina:
Não
Características da Piscina:
N/D
Características Interiores
Quartos:
Banheiros:
0
Aquecimento:
N/D
Resfriamento:
N/D
Eletrodomésticos:
N/D
Mobiliado:
Não
Andar:
N/D
Níveis:
N/D
Características Adicionais
Subtipo de Imóvel:
N/D
Estilo:
N/D
Ano de Construção:
N/D
Tipo de Construção:
N/D
Vagas na Garagem:
Não
Vagas Cobertas:
N/D
Orientação da Fachada:
N/D
Animais Permitidos:
Sim
Condição Especial:
Nenhum
Características Adicionais:
N/D
Características Adicionais 2:
N/D
Mapa
  • Endereço
    4984 TOPSAIL DR
Fale com um profissional
Por Que Nos Escolher?
  • Comunicação e Transparência
  • Negociação Qualificada
  • Rede Profissional Robusta
  • Suporte Pós-Venda
Propriedades em Destaque

Imóveis relacionados

img
  • Featured
  • Active

TBD NE US HIGHWAY 301

  • 0
  • 0 m²
avt
Daniel Dourado
$ 350,000
img
  • Featured
  • Active

6646 SEAVIEW BLVD

  • 0
  • 0 m²
avt
Daniel Dourado
$ 425,000
img
  • Featured
  • Active

2812 KEYSTONE DR #Lot 17 & 18

  • 0
  • 0 m²
avt
Daniel Dourado
$ 525,000
img
  • Featured
  • Active

KEYSTONE DR #Lot 18

  • 0
  • 0 m²
avt
Daniel Dourado
$ 275,000
img
  • Featured
  • Active

000 NW 27TH AVE

  • 0
  • 0 m²
avt
Daniel Dourado
$ 665,000
img
  • Featured
  • Active

TBD SE 42ND PL

  • 0
  • 0 m²
avt
Daniel Dourado
$ 560,000
avt
Daniel Dourado
$ 349,000
avt
Daniel Dourado
$ 420,000
avt
Daniel Dourado
$ 1,350,000
img
  • Featured
  • Active

1900 E SILVER STAR RD

  • 0
  • 0 m²
avt
Daniel Dourado
$ 5,600,000
avt
Daniel Dourado
$ 495,000
img
  • Featured
  • Active

12325 STONELAKE RANCH BLVD

  • 0
  • 0 m²
avt
Daniel Dourado
$ 675,000