Active

$345,990

Características:
  • 4 Quartos
  • 3 Banheiros
  • 181 m²
Visão Geral
  • ID: MFROM709722
  • Quartos: 4
  • Banheiros: 3
  • Tamanho: 181 m²
Detalhes do Imóvel
Observações
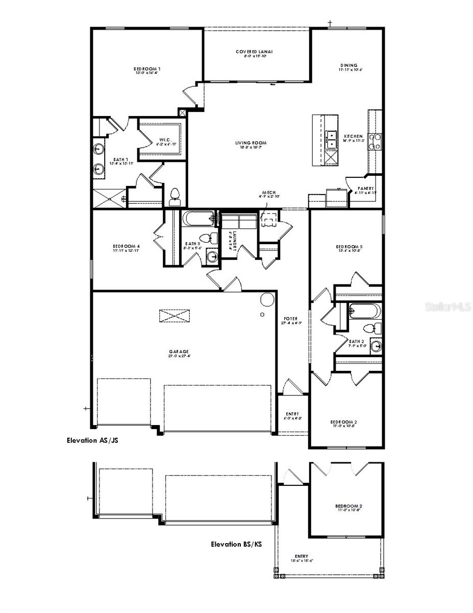
Uma ou mais fotos foram praticamente encenadas. Em construção. O Madison é uma casa de garagem de 3 carros, cuidadosamente projetada, com um convidativo layout de conceito aberto perfeito para todas as famílias. Ao entrar no hall de entrada, você é recebido com dois quartos de hóspedes e um banheiro compartilhado. Do outro lado do corredor, você encontrará a lavanderia, o armário de linho e um terceiro quarto de hóspedes completo com um banheiro privativo. Indo para a cozinha, há uma grande ilha de cozinha com bancadas de quartzo, utensílios de aço inoxidável e uma espaçosa despensa. A cozinha tem vista para a grande sala e a área de jantar que flui para o lanai coberto ao ar livre. Ao lado da sala de estar está o quarto principal com uma vaidade dupla, bancadas de quartzo e dois armários. O quarto quatro tem um banheiro privativo e está localizado ao lado da lavanderia designada. O Madison é o epítome da vida moderna e inclui um sistema doméstico inteligente de última geração. Imagens, fotografias, cores, recursos e tamanhos são apenas para fins de ilustração e variam das casas como construídas. Informações domésticas e comunitárias, incluindo preços, recursos incluídos, termos, disponibilidade e comodidades estão sujeitos a alterações e venda prévia a qualquer momento, sem aviso prévio. CRC057592.
Considerações Financeiras
Preço:
$345,990
Taxa de HOA:
400
Valor do Imposto:
$0
Preço por m²:
$176.89
Descrição Legal do Imposto:
Avalon Woods PH 4A PB 39 PG 92 lote 506
Características Exteriores
Tamanho do Lote:
8712
Características do Lote:
N/D
Beira-mar:
Não
Vagas de Estacionamento:
N/D
Estacionamento:
N/D
Telhado:
Telha
Piscina:
Não
Características da Piscina:
N/D
Características Interiores
Quartos:
4
Banheiros:
3
Aquecimento:
Central, Bomba de Calor
Resfriamento:
Central Aérea
Eletrodomésticos:
Máquina de lavar louça, micro-ondas, fogão
Mobiliado:
Não
Andar:
Tapete, Vinil Luxo
Níveis:
Um
Características Adicionais
Subtipo de Imóvel:
Residência Unifamiliar
Estilo:
N/D
Ano de Construção:
2025
Tipo de Construção:
Quadro
Vagas na Garagem:
Sim
Vagas Cobertas:
N/D
Orientação da Fachada:
Oeste
Animais Permitidos:
Sim
Condição Especial:
Nenhum
Características Adicionais:
N/D
Características Adicionais 2:
De acordo com as diretrizes HOA
Mapa
  • Endereço
    1239 NW 242ND DR
Fale com um profissional
Por Que Nos Escolher?
  • Comunicação e Transparência
  • Negociação Qualificada
  • Rede Profissional Robusta
  • Suporte Pós-Venda
Propriedades em Destaque

Imóveis relacionados

avt
Daniel Dourado
$ 359,900
avt
Daniel Dourado
$ 249,900
avt
Daniel Dourado
$ 720,000
avt
Daniel Dourado
$ 375,000
avt
Daniel Dourado
$ 350,000
avt
Daniel Dourado
$ 425,000