Active

$399,000

Características:
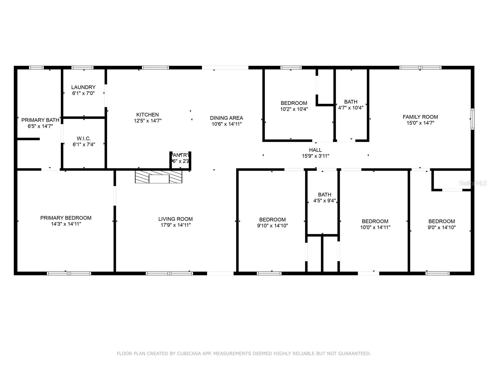
  • 5 Quartos
  • 3 Banheiros
  • 195 m²
Visão Geral
  • ID: MFRTB8356040
  • Quartos: 5
  • Banheiros: 3
  • Tamanho: 195 m²
Detalhes do Imóvel
Observações
Propriedade espaçosa com potencial sem fim em quase 4 acres! Descubra esta incrível oportunidade de possuir uma propriedade versátil que pode ser dividida para uso residencial ou comercial! Isso abre a possibilidade de viver na mesma propriedade que sua empresa! Aninhado em quase 4 acres, esta encantadora casa de 5 quartos e 3 banheiros possui tetos abobadados, uma lareira aconchegante e muito espaço para fazer o seu. Enquanto o interior oferece caráter e charme, é o espaço ao ar livre que realmente capturará seu coração! O quintal de grandes dimensões é perfeito para divertir, relaxar ou explorar. Siga sua própria trilha privada através das árvores, levando diretamente ao riacho. Convenientemente localizado na estrada 60, esta propriedade oferece o melhor dos dois mundos - viva particular e privada com fácil acesso a todas as necessidades. Não perca essa rara chance de possuir uma peça principal de imóveis no Condado de Polk! Agende sua exibição particular hoje!
Considerações Financeiras
Preço:
$399,000
Taxa de HOA:
N/D
Valor do Imposto:
$1784
Preço por m²:
$189.28
Descrição Legal do Imposto:
Comm Sw Cor de SW1/4 de NE1/4 Run N 2093.05 FT para POB CONT n 459,69 pés a S-R/W Sr 60 Sely ao longo de R/W 684.63 ft Swly 320 ft NWLY 354 ft para POB sendo Tracts I & J of Unre Willow Hgts
Características Exteriores
Tamanho do Lote:
166177
Características do Lote:
Pavimentado
Beira-mar:
Não
Vagas de Estacionamento:
N/D
Estacionamento:
Outro
Telhado:
Telha
Piscina:
Não
Características da Piscina:
N/D
Características Interiores
Quartos:
5
Banheiros:
3
Aquecimento:
Central, Elétrica
Resfriamento:
Central Aérea
Eletrodomésticos:
Máquina de lavar louça, secadora, micro-ondas, fogão, geladeira, lavadora
Mobiliado:
Não
Andar:
Tapete, Linóleo
Níveis:
Um
Características Adicionais
Subtipo de Imóvel:
Casa fabricada
Estilo:
N/D
Ano de Construção:
2001
Tipo de Construção:
Outro
Vagas na Garagem:
Não
Vagas Cobertas:
N/D
Orientação da Fachada:
Nordeste
Animais Permitidos:
Sim
Condição Especial:
Nenhum
Características Adicionais:
Caixa de correio privada
Características Adicionais 2:
N/D
Mapa
  • Endereço
    4350 STATE ROAD 60 W
Fale com um profissional
Por Que Nos Escolher?
  • Comunicação e Transparência
  • Negociação Qualificada
  • Rede Profissional Robusta
  • Suporte Pós-Venda
Propriedades em Destaque

Imóveis relacionados

avt
Daniel Dourado
$ 299,000
avt
Daniel Dourado
$ 247,500
avt
Daniel Dourado
$ 315,000
avt
Daniel Dourado
$ 209,000
avt
Daniel Dourado
$ 225,000
avt
Daniel Dourado
$ 205,000
avt
Daniel Dourado
$ 230,000
avt
Daniel Dourado
$ 269,900
avt
Daniel Dourado
$ 245,000
avt
Daniel Dourado
$ 235,000
avt
Daniel Dourado
$ 229,900
avt
Daniel Dourado
$ 369,000