Active

$419,900

Características:
  • 5 Quartos
  • 3 Banheiros
  • 219 m²
Visão Geral
  • ID: MFRO6365987
  • Quartos: 5
  • Banheiros: 3
  • Tamanho: 219 m²
Detalhes do Imóvel
Observações
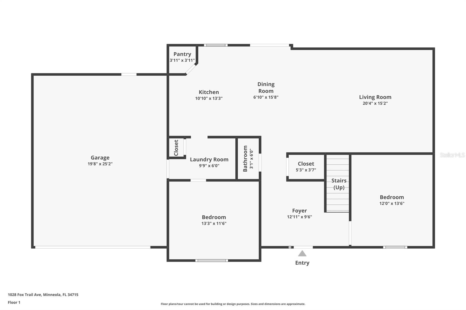
Bem-vindo à casa dos seus sonhos na 1028 Fox Trail Ave! Esta propriedade deslumbrante possui 5 quartos espaçosos e 2,5 banheiros, oferecendo amplo espaço para vida familiar e entretenimento. Além dos quartos, um cômodo extra oferece versatilidade, perfeito para home office ou hospedagem de hóspedes. Um telhado totalmente novo, substituído em 2021, proporciona tranquilidade e agrega valor à casa. O interior apresenta bancadas em granito e elegante piso laminado com aspecto de madeira, realçando o toque moderno em toda a casa. O design da cozinha aberta e da sala cria um ambiente acolhedor, ideal para reuniões e para o dia a dia. Com pouco menos de 2.400 pés quadrados de área útil, esta casa oferece conforto e espaço para crescer. Saia para desfrutar de um grande quintal cercado - perfeito para animais de estimação, atividades ao ar livre ou relaxar ao sol. Localizada no coração de Minneola, esta casa fica a uma curta caminhada da Grassy Lake Elementary e da Lake Minneola High School, bem como do Minneola Athletics Complex. O acesso conveniente à Turnpike fica a apenas 1,6 km de distância, com opções de compras e restaurantes nas proximidades. Além disso, os residentes terão fácil acesso ao próximo Crooked Can e à pitoresca Cadeia de Lagos de Clermont, juntamente com o Water Front Park, ambos a poucos minutos da sua porta. Não perca esta oportunidade de possuir uma linda casa em uma localização privilegiada! Agende uma exibição hoje!
Considerações Financeiras
Preço:
$419,900
Taxa de HOA:
45.5
Valor do Imposto:
$6363.81
Preço por m²:
$177.32
Descrição Legal do Imposto:
PINE BLUFF FASE II PB 50 PG 93-94 LOTE 157 ORB 2709 PG 1798
Características Exteriores
Tamanho do Lote:
11050
Características do Lote:
Montanhoso
Beira-mar:
Não
Vagas de Estacionamento:
N/D
Estacionamento:
N/D
Telhado:
Telha
Piscina:
Não
Características da Piscina:
N/D
Características Interiores
Quartos:
5
Banheiros:
3
Aquecimento:
Central
Resfriamento:
Central Aérea
Eletrodomésticos:
Máquina de lavar louça, aquecedor elétrico de água, micro-ondas, fogão, geladeira
Mobiliado:
Sim
Andar:
Carpete, Madeira, Laminado
Níveis:
Dois
Características Adicionais
Subtipo de Imóvel:
Residência Unifamiliar
Estilo:
N/D
Ano de Construção:
2004
Tipo de Construção:
Bloco, pedra, estuque, quadro
Vagas na Garagem:
Sim
Vagas Cobertas:
N/D
Orientação da Fachada:
Norte
Animais Permitidos:
Não
Condição Especial:
Nenhum
Características Adicionais:
Iluminação, Outros, Pátio Privado, Calçada
Características Adicionais 2:
VERIFIQUE COM HOA
Mapa
  • Endereço
    1028 FOX TRAIL AVE
Fale com um profissional
Por Que Nos Escolher?
  • Comunicação e Transparência
  • Negociação Qualificada
  • Rede Profissional Robusta
  • Suporte Pós-Venda
Propriedades em Destaque

Imóveis relacionados

avt
Daniel Dourado
$ 444,900
avt
Daniel Dourado
$ 455,000
avt
Daniel Dourado
$ 428,000
avt
Daniel Dourado
$ 367,000
avt
Daniel Dourado
$ 690,000
avt
Daniel Dourado
$ 299,900
avt
Daniel Dourado
$ 625,000
avt
Daniel Dourado
$ 789,900
avt
Daniel Dourado
$ 379,000