Active

$700,000

Características:
  • 4 Quartos
  • 3 Banheiros
  • 231 m²
Visão Geral
  • ID: MFRO6356569
  • Quartos: 4
  • Banheiros: 3
  • Tamanho: 231 m²
Detalhes do Imóvel
Observações
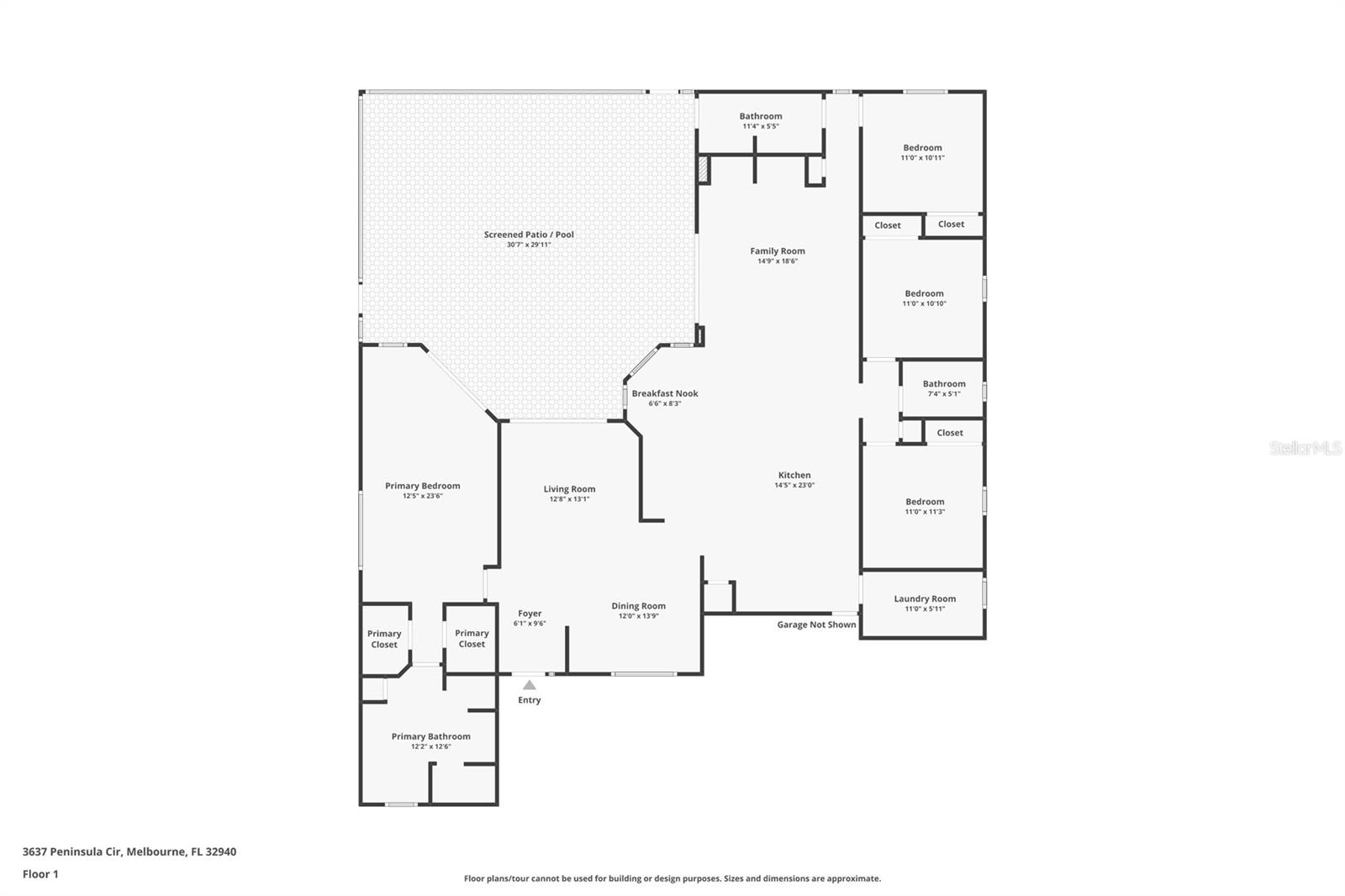
PRONTO PARA MUDANÇA | FRENTE AO LAGO DIRETO | 4 CAMAS | 3 BANHO | CASA PISCINA | GARAGEM PARA 3 CARROS Bem-vindo a esta casa com piscina à beira do lago, lindamente mantida, em um terreno enorme na tão procurada comunidade de Grand Haven. Projetada para conforto e entretenimento, esta planta aberta apresenta salas de estar e jantar formais com controles deslizantes que se abrem para a piscina e o pátio - enchendo a casa com luz natural e vistas serenas do lago. A espaçosa cozinha oferece uma grande ilha, mesa embutida e copa iluminada com vista para a água - tudo aberto para a sala familiar com embutidos personalizados. Os controles deslizantes de bolso estendem seu espaço ao ar livre para uma piscina de água salgada em estilo resort, completa com um gerador de cloro Pentair para fácil manutenção. Aproveite o estilo de vida perfeito da Flórida com iluminação LED que muda de cor para piscina e um sistema de som externo Sonos premium, tudo totalmente controlável pelo seu telefone. Esta casa de família bem conservada e cuidadosamente cuidada apresenta muitas atualizações atenciosas, incluindo um telhado de telha de alta qualidade (2021), entrada de CA (2022), compressor de CA (2020), pintura interna, externa e de pátio (2025), azulejos decorativos de piscina (2025), sprinklers embutidos e válvula de indexação (2025), aparelhos de última geração com fogão a gás de 5 bocas, carpete mais novo, iluminação personalizada, ventiladores de controle remoto, um sistema de água atualizado aquecedor e muito mais — tudo a apenas 8 minutos da praia! O quarto quarto inclui banheiro privativo, ideal para hóspedes ou suíte multigeracional. A suíte principal é um retiro relaxante com área de estar, dois closets e uma banheira inspirada em spa com pias duplas, box amplo e banheira de jardim. Os destaques adicionais incluem uma garagem para 3 carros, portas externas e portas de garagem resistentes a furacões e um grande terreno à beira do lago com vistas tranquilas. As atualizações recentes também incluem: Telhado (2020) Unidade interna HVAC (2022) / unidade externa (2018) Pintura externa (2023) / Pintura interna (2025) Aquecedor de água (2020) Porta e abridor de garagem (2022) Gerador Pentair de água salgada (2018) Luz LED para piscina (2019) Novas persianas (2018) Novo encanamento (2022) Utensílios de cozinha (2018) Iluminação externa (2025) Sistema de som externo (2019) Lavanderia atualizada (2025) As comodidades da comunidade incluem quadras de tênis, basquete e playground. Idealmente localizado a poucos minutos das praias, da Base da Força Espacial Patrick, de lojas, restaurantes e da I-95. Esta joia à beira do lago pronta para morar em Grand Haven combina perfeitamente conforto, estilo e o melhor da vida na Flórida - agende sua exibição privada hoje mesmo!
Considerações Financeiras
Preço:
$700,000
Taxa de HOA:
615
Valor do Imposto:
$4488.38
Preço por m²:
$281.35
Descrição Legal do Imposto:
GRAND HAVEN FASE SEIS A REPLAT DO TRATO 1 GRAND HAVEN FASE UM DE PB 46 PG 55 LOTE 19 BLOCO F
Características Exteriores
Tamanho do Lote:
11326
Características do Lote:
N/D
Beira-mar:
Sim
Vagas de Estacionamento:
N/D
Estacionamento:
N/D
Telhado:
Telha
Piscina:
Sim
Características da Piscina:
No chão
Características Interiores
Quartos:
4
Banheiros:
3
Aquecimento:
Central
Resfriamento:
Central Aérea
Eletrodomésticos:
Máquina de lavar louça, descarte, esquentador a gás, micro-ondas, fogão, geladeira
Mobiliado:
Não
Andar:
Tapete, Azulejo Cerâmico
Níveis:
Um
Características Adicionais
Subtipo de Imóvel:
Residência Unifamiliar
Estilo:
N/D
Ano de Construção:
2003
Tipo de Construção:
Bloco, Estuque
Vagas na Garagem:
Sim
Vagas Cobertas:
N/D
Orientação da Fachada:
Leste
Animais Permitidos:
Sim
Condição Especial:
Nenhum
Características Adicionais:
Calhas de chuva, calçada, portas de correr
Características Adicionais 2:
Verifique com HOA todas e quaisquer restrições.
Mapa
  • Endereço
    3637 PENINSULA CIR
Fale com um profissional
Por Que Nos Escolher?
  • Comunicação e Transparência
  • Negociação Qualificada
  • Rede Profissional Robusta
  • Suporte Pós-Venda
Propriedades em Destaque

Imóveis relacionados

avt
Daniel Dourado
$ 359,900
avt
Daniel Dourado
$ 249,900
avt
Daniel Dourado
$ 720,000
avt
Daniel Dourado
$ 375,000
avt
Daniel Dourado
$ 350,000
avt
Daniel Dourado
$ 425,000
avt
Daniel Dourado
$ 600,000