Active

$256,000

Características:
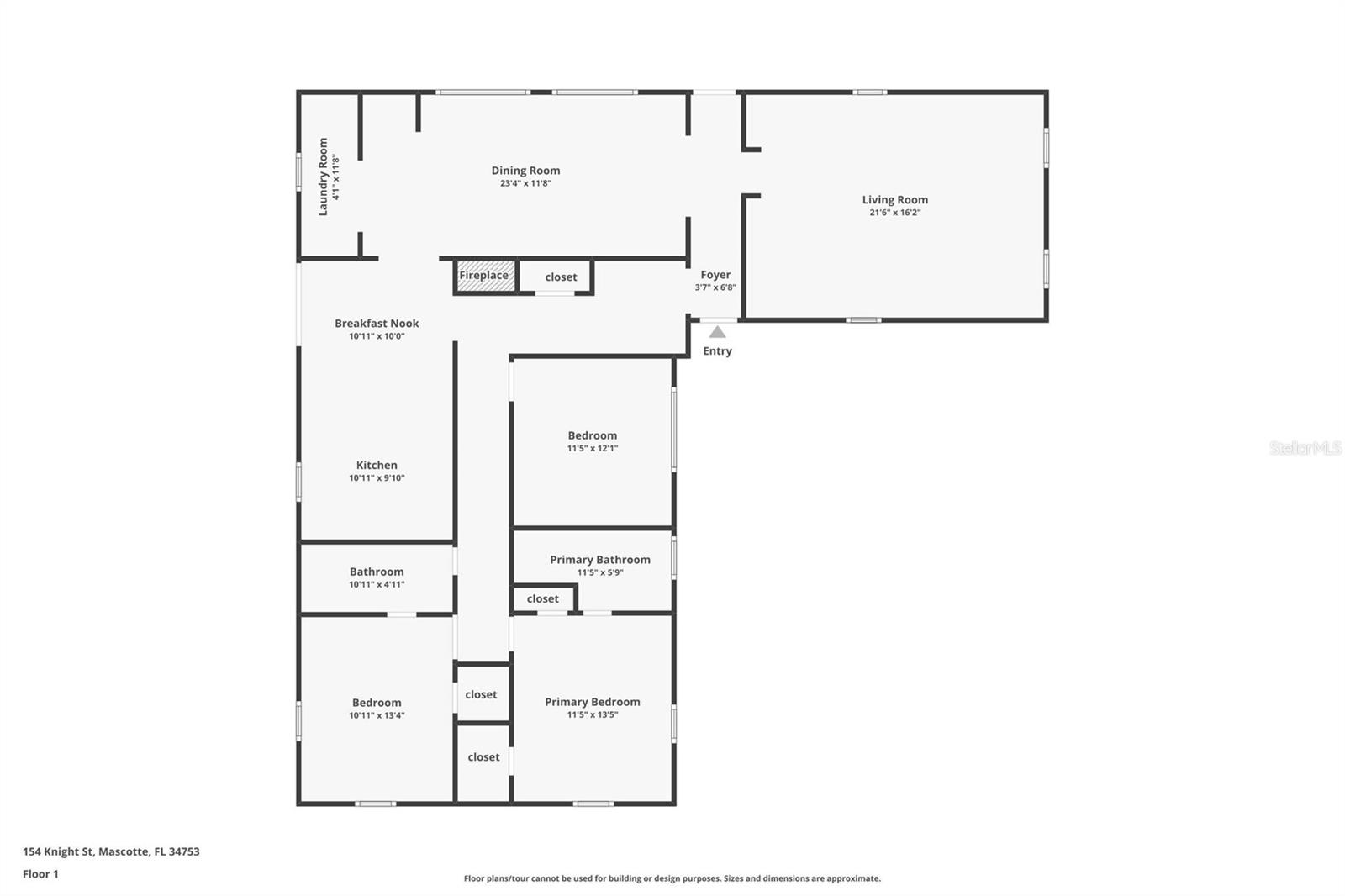
  • 3 Quartos
  • 2 Banheiros
  • 176 m²
Visão Geral
  • ID: MFRTB8411496
  • Quartos: 3
  • Banheiros: 2
  • Tamanho: 176 m²
Detalhes do Imóvel
Observações
Uma ou mais fotos foram praticamente encenadas. ENORME MELHORIA DE PREÇOS !! Charming 3/2 escondido no final de uma rua sem saída tranquila. Esta casa oferece espaço para brincar com um generoso quintal perfeito para diversão ao ar livre. No interior, uma grande lareira a lenha ancora o espaço com charme rústico, e a casa está apenas esperando seus retoques finais para torná -lo realmente seu. País pacífico vivendo com muito potencial.
Considerações Financeiras
Preço:
$256,000
Taxa de HOA:
N/D
Valor do Imposto:
$1915
Preço por m²:
$134.88
Descrição Legal do Imposto:
De Ne Cor de SEC Run S 769 pés ao lago St W no centro do lago St 878 pés E 156 pés 0-11-42 E 201.33 ft para POB Run N 88-33-59 E 75 FT S 0-02-29 E 160,88 ft W 75 FT N 0-11-42 W 158.6.6.6.6.6.6.6.6.6.60 Ft a 75 ft de 75 ft s 0-02-29 e 160,88 ft 75 ft N 0-11-42 W 158.6.6.6.6.6.6.6.6.6.6 e 16. De NE 1/4 com a linha S de Lake St Run E 203,50 pés S 360 pés para POB RUN E 75 FT S A UM PONTO 50 FT N DE S LINHA DE NE 1/4 de NE 1/4 W 75 FT N A POB ORB 3840 PG 2479
Características Exteriores
Tamanho do Lote:
19500
Características do Lote:
N/D
Beira-mar:
Não
Vagas de Estacionamento:
N/D
Estacionamento:
N/D
Telhado:
Telha
Piscina:
Não
Características da Piscina:
N/D
Características Interiores
Quartos:
3
Banheiros:
2
Aquecimento:
Central
Resfriamento:
Central Aérea
Eletrodomésticos:
Máquina de lavar louça, secadora, aquecedor elétrico de água, micro-ondas, fogão, geladeira, lavadora
Mobiliado:
Sim
Andar:
Laminado, Azulejo
Níveis:
Um
Características Adicionais
Subtipo de Imóvel:
Residência Unifamiliar
Estilo:
N/D
Ano de Construção:
1991
Tipo de Construção:
Bloquear
Vagas na Garagem:
Não
Vagas Cobertas:
N/D
Orientação da Fachada:
Sul
Animais Permitidos:
Não
Condição Especial:
Nenhum
Características Adicionais:
Caixa de correio privada, portas deslizantes
Características Adicionais 2:
Comprador deve verificar
Mapa
  • Endereço
    154 KNIGHT ST
Fale com um profissional
Por Que Nos Escolher?
  • Comunicação e Transparência
  • Negociação Qualificada
  • Rede Profissional Robusta
  • Suporte Pós-Venda
Propriedades em Destaque

Imóveis relacionados

avt
Daniel Dourado
$ 220,000
avt
Daniel Dourado
$ 660,000
avt
Daniel Dourado
$ 320,000
avt
Daniel Dourado
$ 419,000
avt
Daniel Dourado
$ 875,000
avt
Daniel Dourado
$ 429,900
avt
Daniel Dourado
$ 299,990
avt
Daniel Dourado
$ 439,990
avt
Daniel Dourado
$ 564,900
avt
Daniel Dourado
$ 404,990
avt
Daniel Dourado
$ 549,000
avt
Daniel Dourado
$ 309,990