Pending

$1,295,000

Características:
  • 3 Quartos
  • 3 Banheiros
  • 218 m²
Visão Geral
  • ID: MFRA4677827
  • Quartos: 3
  • Banheiros: 3
  • Tamanho: 218 m²
Detalhes do Imóvel
Observações
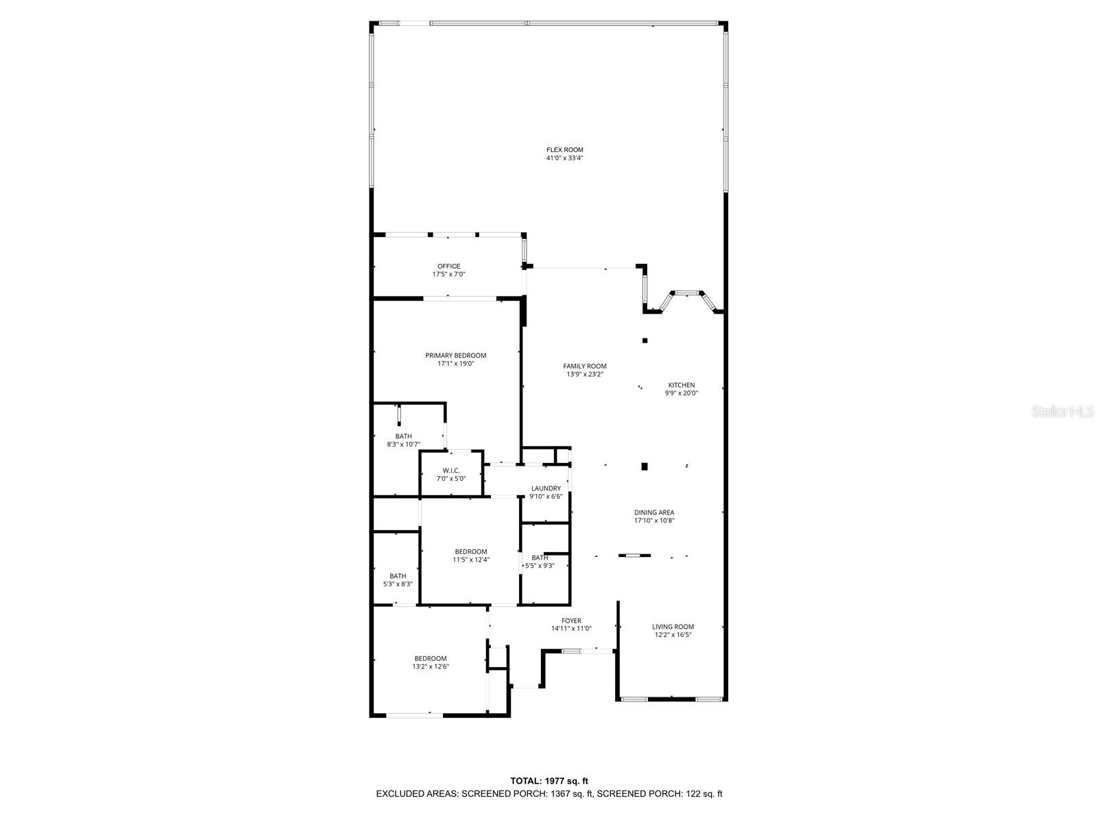
Sob ofertas de backup que aceitam contrato. Esta residência meticulosamente renovada e livre de manutenção está situada na estimada comunidade de Harbour Oaks, em Longboat Key, um enclave exclusivo em frente ao golfe, composto por 42 residências na seção Bay Isles. Esta residência no primeiro andar oferece um estilo de vida excepcional no golfe e na praia, apresentando três quartos e três banheiros, todos recentemente atualizados. A casa é oferecida totalmente mobiliada com uma coleção selecionada de móveis costeiros. O interior apresenta janelas e portas resistentes a impactos, novos pisos de madeira e mármore projetados, unidades de ar condicionado atualizadas, encanamentos atualizados e um novo tanque de água quente. Outras melhorias incluem tratamentos de janela personalizados e armários embutidos personalizados. A cozinha contemporânea é equipada com armários de madeira brancos personalizados, bancadas de quartzo, azulejos backsplash de design, eletrodomésticos de última geração e iluminação de inspiração costeira. As áreas de estar distintas abrangem um home office dedicado ou uma sala bônus com vista para o campo de golfe, uma espaçosa área de jantar, uma sala de estar formal e uma grande sala que faz uma transição perfeita para a varanda com tela. A suíte principal serve como um santuário sereno, com guarda-roupas embutidos de proporções generosas, closet, ar-condicionado dedicado e banheira tipo spa com belos acabamentos em mármore. Cada quarto possui um banheiro privativo reformado completo com pias atualizadas, azulejos de mármore e encanamentos em ouro escovado. Uma ampla varanda pavimentada com travertino oferece mais de 600 pés quadrados de espaço de entretenimento adicional, com uma tela panorâmica com vista para os fairways do campo de golfe Longboat Key Club e oferece vistas deslumbrantes do pôr do sol tropical. As comodidades adicionais incluem uma lavanderia com lavadora e secadora de tamanho normal e um sótão dedicado para armazenamento suplementar. A garagem para dois carros é equipada com piso de epóxi, armários personalizados, armazenamento superior e sistema de armazenamento de parede. Convenientemente localizada, a piscina comunitária e o spa ficam a poucos passos da porta da frente. A residência também beneficia de telhado novo e pintura exterior. Bay Isles promove um estilo de vida luxuoso com dois portões de segurança 24 horas e um clube de praia privado e fechado em frente ao Golfo. O clube de praia oferece pavilhão coberto, áreas para piquenique, banheiros, guarda-cadeiras, churrasqueiras e amplo estacionamento. A política para animais de estimação em Harbor Oaks permite um cão de até 50 libras e um gato. Esta localização oferece acesso conveniente a compras de supermercado, uma variedade de restaurantes, instalações bancárias, academias de ginástica, quadras de tênis e pickleball, marinas e campos de golfe. A poucos minutos de distância, os moradores podem explorar St. Armands Circle, conhecido por suas boutiques e experiências gastronômicas sofisticadas, com mais de 130 boutiques, lojas especializadas, galerias e restaurantes. Além disso, o distinto cenário artístico cultural de Sarasota, restaurantes sofisticados e vida noturna vibrante são facilmente acessíveis. Sarasota, muitas vezes chamada de Costa Cultural da Flórida, oferece uma variedade diversificada e dinâmica de galerias, teatros e museus. Esta residência oferece a oportunidade de experimentar o auge da vida costeira sofisticada em Longboat Key.
Considerações Financeiras
Preço:
$1,295,000
Taxa de HOA:
N/D
Valor do Imposto:
$9255.74
Preço por m²:
$550.6
Descrição Legal do Imposto:
UNIDADE 903 BLDG 9 HARBOR OAKS NO LONGBOAT KEY CLUB
Características Exteriores
Tamanho do Lote:
0
Características do Lote:
Seguro contra inundações obrigatório, em campo de golfe, pavimentado, privado
Beira-mar:
Não
Vagas de Estacionamento:
N/D
Estacionamento:
Entrada de automóveis, abridor de porta de garagem
Telhado:
Telha
Piscina:
Não
Características da Piscina:
N/D
Características Interiores
Quartos:
3
Banheiros:
3
Aquecimento:
Central, Elétrica
Resfriamento:
Ar Central, Unidade(s) Mini-Split
Eletrodomésticos:
Forno de convecção, lava-louças, descarte, secadora, esquentador elétrico, micro-ondas, fogão, geladeira, lavadora
Mobiliado:
Sim
Andar:
Madeira nobre, Mármore
Níveis:
Um
Características Adicionais
Subtipo de Imóvel:
Condomínio
Estilo:
N/D
Ano de Construção:
1984
Tipo de Construção:
Bloco, Estuque
Vagas na Garagem:
Sim
Vagas Cobertas:
N/D
Orientação da Fachada:
Leste
Animais Permitidos:
Não
Condição Especial:
Nenhum
Características Adicionais:
Caixa de correio privada
Características Adicionais 2:
Contate o gerente da propriedade
Mapa
  • Endereço
    2123 HARBOURSIDE DR #903
Fale com um profissional
Por Que Nos Escolher?
  • Comunicação e Transparência
  • Negociação Qualificada
  • Rede Profissional Robusta
  • Suporte Pós-Venda
Propriedades em Destaque

Imóveis relacionados

avt
Daniel Dourado
$ 247,900
img
  • Featured
  • Active
Condominium

7521 LAUREATE BLVD #5308

  • 2
  • 2
  • 134 m²
avt
Daniel Dourado
$ 349,000
avt
Daniel Dourado
$ 3,295,000
avt
Daniel Dourado
$ 405,000
avt
Daniel Dourado
$ 919,000
avt
Daniel Dourado
$ 200,000
img
  • Featured
  • Active
Condominium

6775 HUNTINGTON LAKES CIR #202

  • 2
  • 2
  • 185 m²
avt
Daniel Dourado
$ 479,000
avt
Daniel Dourado
$ 220,000
avt
Daniel Dourado
$ 244,000
img
  • Featured
  • Active
Condominium

4211 CHATHAM OAK CT #123

  • 2
  • 2
  • 91 m²
avt
Daniel Dourado
$ 215,000
avt
Daniel Dourado
$ 349,000
avt
Daniel Dourado
$ 549,000