Active

$340,000

Características:
  • 4 Quartos
  • 2 Banheiros
  • 201 m²
Visão Geral
  • ID: MFRG5096774
  • Quartos: 4
  • Banheiros: 2
  • Tamanho: 201 m²
Detalhes do Imóvel
Observações
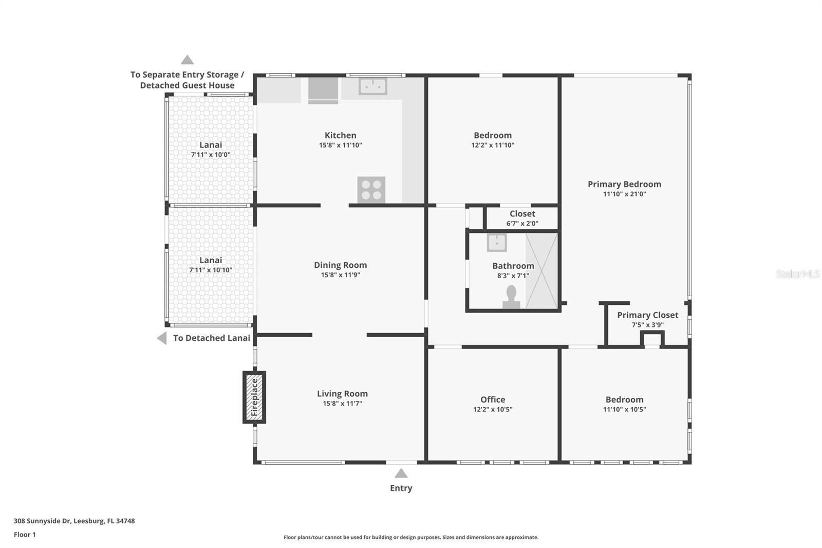
Os compradores não conseguiram se pré-formar, então esta propriedade única de 4 quartos está de volta ao mercado. onde a arquitetura mediterrânea e toques modernos se combinam para criar um oásis privado. Situada em terrenos paisagísticos, esta propriedade única oferece um refúgio sereno com comodidades excepcionais. A partir do momento em que você chega, você é recebido por caminhos que serpenteiam por jardins floridos e levam a plantas e árvores vibrantes – uma experiência sensorial em todas as estações. A residência principal apresenta 1.450 pés quadrados com ricas paredes de estuque, áreas de estar espaçosas e lareira na sala de estar. A sala de jantar formal oferece ambientes ideais para noites tranquilas e grandes entretenimentos, com portas francesas que vão para uma varanda com tela. Na suíte principal há um conjunto de portas de vidro deslizantes que levam à sua banheira de hidromassagem privativa cercada por plantas tropicais. Saia e desfrute do seu próprio resort privado: uma piscina cintilante cercada por uma parede de privacidade e uma cabana personalizada, perfeita para relaxar ou jantar privado. Os hóspedes se sentirão mimados na pousada independente de 718 pés quadrados, completa com sua própria cozinha compacta e banheiro completo com box amplo...oferecendo conforto, privacidade e estilo. Esteja você explorando as trilhas do jardim ou organizando encontros inesquecíveis sob as estrelas, esta casa excepcional é mais do que uma residência: é um estilo de vida. Novas atualizações elétricas, incluindo caixa de disjuntor, aquecedor de água sem tanque e tomadas GFCI.
Considerações Financeiras
Preço:
$340,000
Taxa de HOA:
N/D
Valor do Imposto:
$1690
Preço por m²:
$156.83
Descrição Legal do Imposto:
Lotes do Parque Sunset 9 a 16 Incllk B Lotes 1 2 Blk C PB 5 PG 48 ORB 576 PG 532 ORB 6105 PG 2120
Características Exteriores
Tamanho do Lote:
31818
Características do Lote:
Desobstruído, no condado, lote irregular, paisagístico, nivelado, lote grande, pavimentado
Beira-mar:
Não
Vagas de Estacionamento:
N/D
Estacionamento:
Gradejas circulares, garagem, acesso ao trailer/estacionamento
Telhado:
Outro
Piscina:
Sim
Características da Piscina:
No chão
Características Interiores
Quartos:
4
Banheiros:
2
Aquecimento:
Central, Elétrica
Resfriamento:
Central Aérea
Eletrodomésticos:
Secadora, aquecedor elétrico de água, fogão, geladeira, lavadora
Mobiliado:
Sim
Andar:
Laminado, Madeira
Níveis:
Um
Características Adicionais
Subtipo de Imóvel:
Residência Unifamiliar
Estilo:
N/D
Ano de Construção:
1940
Tipo de Construção:
Bloco, tijolo, estuque, quadro
Vagas na Garagem:
Não
Vagas Cobertas:
N/D
Orientação da Fachada:
Sul
Animais Permitidos:
Não
Condição Especial:
Nenhum
Características Adicionais:
Jardim, Caixa de Correio Privada, Pátio Privado
Características Adicionais 2:
N/D
Mapa
  • Endereço
    308 SUNNYSIDE DR
Fale com um profissional
Por Que Nos Escolher?
  • Comunicação e Transparência
  • Negociação Qualificada
  • Rede Profissional Robusta
  • Suporte Pós-Venda
Propriedades em Destaque

Imóveis relacionados

avt
Daniel Dourado
$ 869,900
avt
Daniel Dourado
$ 575,000
avt
Daniel Dourado
$ 360,000
avt
Daniel Dourado
$ 399,900
avt
Daniel Dourado
$ 259,999
avt
Daniel Dourado
$ 369,000
avt
Daniel Dourado
$ 240,000
avt
Daniel Dourado
$ 729,000