Active

$399,000

Características:
  • 4 Quartos
  • 3 Banheiros
  • 191 m²
Visão Geral
  • ID: MFROM684308
  • Quartos: 4
  • Banheiros: 3
  • Tamanho: 191 m²
Detalhes do Imóvel
Observações
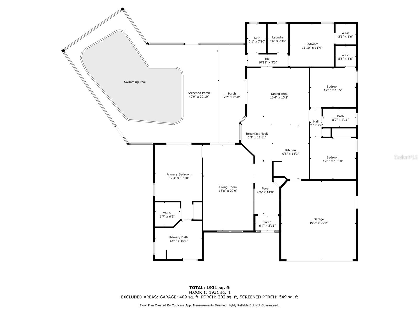
Piscina espaçosa em casa com potencial sem fim em bloqueio fechado! Dê vida à sua visão nesta casa de 4 quartos e 3 banheiros, oferecendo mais de 2.000 pés quadrados de espaço em um lote de grandes dimensões na comunidade fechada procurada de Heather Ridge em Crystal Oaks. Com um layout fantástico e ótimos ossos, esta casa está pronta para o seu toque pessoal para restaurá -lo em todo o seu potencial. No interior, a planta aberta oferece muito espaço para se espalhar, com espaços definidos que podem ser transformados para se adequar ao seu estilo. O quintal apresenta uma piscina brilhante, destinada a criar um retiro ao ar livre. Com um pouco de TLC, esta casa pode realmente brilhar! Localizado em um bairro fechado, você desfrutará de paz de espírito e um forte senso de comunidade, enquanto estava a poucos minutos das compras, refeições e a beleza natural da costa natural da Flórida. Não perca esta oportunidade de tornar este próprio lar espaçoso - faça uma exibição hoje e imagine as possibilidades!
Considerações Financeiras
Preço:
$399,000
Taxa de HOA:
438
Valor do Imposto:
$3947.66
Preço por m²:
$193.41
Descrição Legal do Imposto:
HEATHER RIDGE, também conhecido como CRYSTAL OAKS FIFTH ADD PB 16 PG 15 LOTE 194
Características Exteriores
Tamanho do Lote:
18366
Características do Lote:
Paisagístico, Pavimentado
Beira-mar:
Não
Vagas de Estacionamento:
N/D
Estacionamento:
N/D
Telhado:
Telha
Piscina:
Sim
Características da Piscina:
Gunite, no solo, gabinete de tela
Características Interiores
Quartos:
4
Banheiros:
3
Aquecimento:
Bomba de calor
Resfriamento:
Central Aérea
Eletrodomésticos:
Cooktop, Aquecedor Elétrico de Água, Microondas, Fogão, Geladeira
Mobiliado:
Sim
Andar:
Azulejo cerâmico, vinil luxuoso
Níveis:
Um
Características Adicionais
Subtipo de Imóvel:
Residência Unifamiliar
Estilo:
N/D
Ano de Construção:
1997
Tipo de Construção:
Bloco, concreto, estuque
Vagas na Garagem:
Sim
Vagas Cobertas:
N/D
Orientação da Fachada:
Sul
Animais Permitidos:
Sim
Condição Especial:
Nenhum
Características Adicionais:
Portas deslizantes
Características Adicionais 2:
N/D
Mapa
  • Endereço
    5381 W HEATHER RIDGE PATH
Fale com um profissional
Por Que Nos Escolher?
  • Comunicação e Transparência
  • Negociação Qualificada
  • Rede Profissional Robusta
  • Suporte Pós-Venda
Propriedades em Destaque

Imóveis relacionados

avt
Daniel Dourado
$ 395,000
avt
Daniel Dourado
$ 549,990
avt
Daniel Dourado
$ 379,900
avt
Daniel Dourado
$ 575,000
avt
Daniel Dourado
$ 400,000
avt
Daniel Dourado
$ 359,000
avt
Daniel Dourado
$ 535,000
avt
Daniel Dourado
$ 2,091,600