Active

$415,000

Características:
  • 3 Quartos
  • 2 Banheiros
  • 157 m²
Visão Geral
  • ID: MFRTB8486435
  • Quartos: 3
  • Banheiros: 2
  • Tamanho: 157 m²
Detalhes do Imóvel
Observações
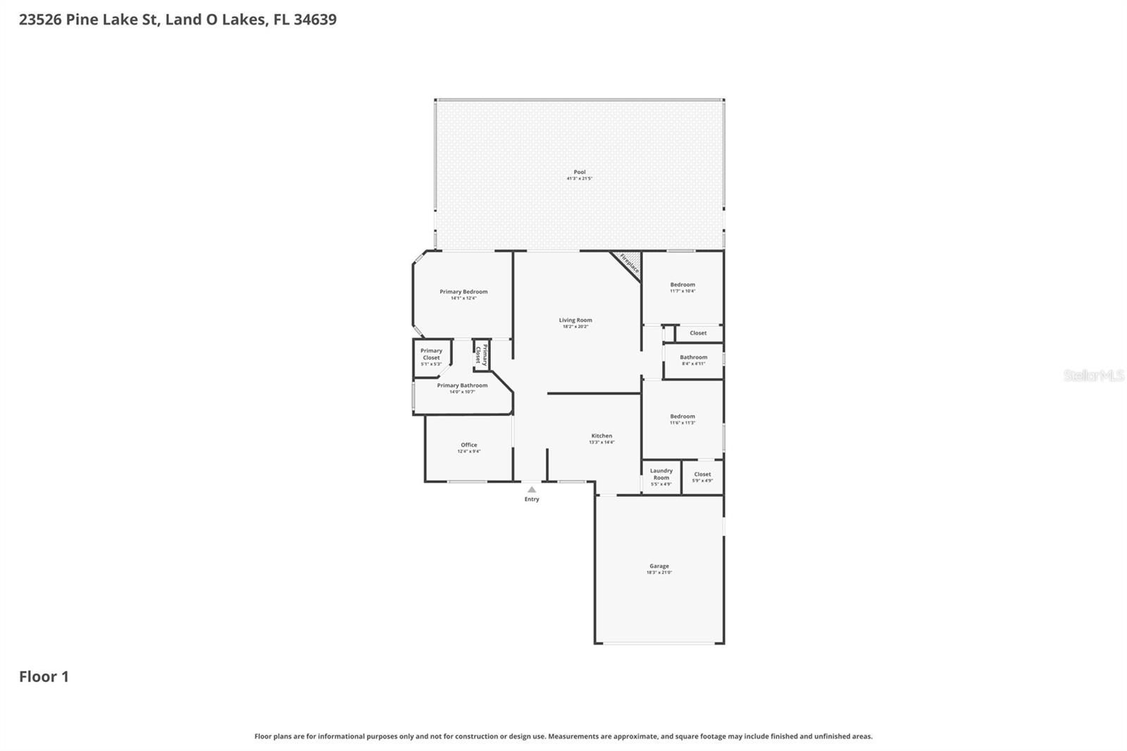
Casa com piscina de água salgada • Painéis solares quitados • Novo telhado 2023 • Sem CDD • Quintal cercado com portão duplo Casa com piscina de 3 quartos e 2 banheiros, oferecendo aproximadamente 1.690 pés quadrados na comunidade de Lake Padgett East, em Land O 'Lakes. Esta casa térrea apresenta uma planta dividida em quartos e um layout aberto conectando as áreas de cozinha, sala de estar e jantar, proporcionando espaço funcional para a vida cotidiana e entretenimento. A cozinha inclui bancada em granito, eletrodomésticos em inox, abundantes armários e um forno novo (2023), com saída direta para a sala principal. Uma área de jantar flexível com porta de celeiro pode funcionar como escritório doméstico, escritório ou área de estar adicional. A suíte principal inclui banheiro privativo e acesso direto à área da piscina. As características externas incluem uma piscina de água salgada com nova bomba (2024), quintal cercado com portão duplo para acesso ou armazenamento adicional e paisagismo atualizado com novo gramado Zoysia (2025) e cobertura morta e casca renovadas. As comodidades adicionais incluem lavanderia interna e garagem para 2 carros. As principais atualizações incluem um novo telhado (2023), sistema AC (2021) e painéis solares pagos (instalados em 2018, reinstalados em 2023), contribuindo para a eficiência energética e redução dos custos de serviços públicos. Sem CDD. Os residentes de Lake Padgett East têm acesso a um centro comunitário com piscina estilo resort, quadras de tênis, quadras de basquete, academia, playground e um bar de bairro com bebidas com desconto. HOA fornece acesso a essas comodidades. Localizado a menos de 3 km do Complexo Recreativo Land O’ Lakes, do Plantation Palms Golf Club (campo público) e do Crunch Fitness. O Supermercado Publix em Collier Commons fica a aproximadamente 4,8 km de distância e inclui Starbucks, Walgreens, Moe's Southwest Grill e Chili's. O acesso conveniente à SR-54 e US-41 fornece conectividade às áreas vizinhas. A Escola Primária Pine View fica nas proximidades. Tour 3D disponível. COMODIDADES PRÓXIMAS Complexo Recreativo Land O’ Lakes – <2 milhas Plantation Palms Golf Club (público) – <2 milhas Crunch Fitness – ~2 milhas Supermercado Publix em Collier Commons – ~3 milhas Starbucks – ~3 milhas Walgreens – ~3 milhas Moe’s Southwest Grill – ~3 milhas Chili’s Grill & Bar – ~3 milhas Pine View Elementary School – nearby SR-54 – ~3–5 milhas US-41 – ~5–7 milhas
Considerações Financeiras
Preço:
$415,000
Taxa de HOA:
60
Valor do Imposto:
$1483.14
Preço por m²:
$245.56
Descrição Legal do Imposto:
PINE LAKE FASE 3 PB 28 PGS 11-13 LOTE 4 BLOCO 1 OU 9143 PG 2598
Características Exteriores
Tamanho do Lote:
9600
Características do Lote:
N/D
Beira-mar:
Não
Vagas de Estacionamento:
N/D
Estacionamento:
N/D
Telhado:
Telha
Piscina:
Sim
Características da Piscina:
No chão
Características Interiores
Quartos:
3
Banheiros:
2
Aquecimento:
Central
Resfriamento:
Central Aérea
Eletrodomésticos:
Máquina de lavar louça, descarte, aquecedor elétrico de água, micro-ondas, fogão, geladeira
Mobiliado:
Sim
Andar:
Madeira nobre, azulejo
Níveis:
Um
Características Adicionais
Subtipo de Imóvel:
Residência Unifamiliar
Estilo:
N/D
Ano de Construção:
1990
Tipo de Construção:
Bloco, Estuque
Vagas na Garagem:
Sim
Vagas Cobertas:
N/D
Orientação da Fachada:
Oeste
Animais Permitidos:
Não
Condição Especial:
Nenhum
Características Adicionais:
Calhas de chuva, portas deslizantes
Características Adicionais 2:
Por favor, verifique com HOA.
Mapa
  • Endereço
    23526 PINE LAKE ST
Fale com um profissional
Por Que Nos Escolher?
  • Comunicação e Transparência
  • Negociação Qualificada
  • Rede Profissional Robusta
  • Suporte Pós-Venda
Propriedades em Destaque

Imóveis relacionados

avt
Daniel Dourado
$ 399,000
avt
Daniel Dourado
$ 874,900
avt
Daniel Dourado
$ 369,900
avt
Daniel Dourado
$ 345,538
avt
Daniel Dourado
$ 491,940
avt
Daniel Dourado
$ 395,051
avt
Daniel Dourado
$ 545,000
avt
Daniel Dourado
$ 469,900
avt
Daniel Dourado
$ 340,000
avt
Daniel Dourado
$ 332,818