Active

$290,000

Características:
  • 2 Quartos
  • 3 Banheiros
  • 143 m²
Visão Geral
  • ID: MFRTB8342333
  • Quartos: 2
  • Banheiros: 3
  • Tamanho: 143 m²
Detalhes do Imóvel
Observações
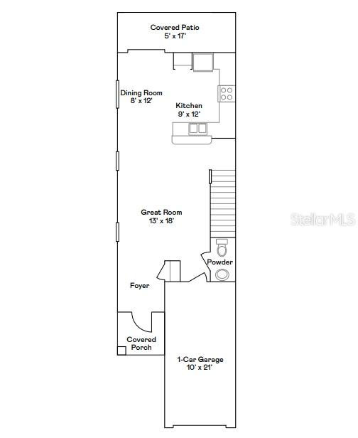
6090 Acara Lane Land o Lagos FL 34638 - Townes no Lago Thomas Nova unidade de esquina 2024 - 2 camas 2.5 Townhome de banho com hóspedes em suíte para venda em condomínio fechado. Apresenta piscina no estilo resort e parque de cães. Esta é uma casa na cidade livre de manutenção, com o HOA mantendo o gramado e os exteriores. Esta unidade final oferece boa ventilação com janelas para baixo escadas, juntamente com o quintal e o quintal. Inclui aparelhos de aço inoxidável novos, pátio coberto com malha para maior segurança, loft espaçoso para o escritório em casa no segundo andar. A localização é próxima de muitas escolas de primeira classificação, incluindo Sanders Elementary, Country Side Montessori e Pineview Elementary/Middle School, Land O Lakes High School, além de restaurantes e lojas.
Considerações Financeiras
Preço:
$290,000
Taxa de HOA:
322
Valor do Imposto:
$222
Preço por m²:
$188.19
Descrição Legal do Imposto:
Os Townes no Lago Thomas - Fase 1 PB 90 pg 001 lote 99
Características Exteriores
Tamanho do Lote:
2777
Características do Lote:
N/D
Beira-mar:
Não
Vagas de Estacionamento:
N/D
Estacionamento:
N/D
Telhado:
Telha
Piscina:
Não
Características da Piscina:
N/D
Características Interiores
Quartos:
2
Banheiros:
3
Aquecimento:
Elétrico
Resfriamento:
Central Aérea
Eletrodomésticos:
Forno de convecção, cozinheira, lava -louças, secador, aquecedor de água elétrica, exaustor, fabricante de gelo, microondas, geladeira
Mobiliado:
Não
Andar:
Tapete, Azulejo Cerâmico
Níveis:
Dois
Características Adicionais
Subtipo de Imóvel:
Moradia
Estilo:
N/D
Ano de Construção:
2024
Tipo de Construção:
Estuque
Vagas na Garagem:
Sim
Vagas Cobertas:
N/D
Orientação da Fachada:
Nordeste
Animais Permitidos:
Não
Condição Especial:
Nenhum
Características Adicionais:
Varanda, Sistema de Rega
Características Adicionais 2:
N/D
Mapa
  • Endereço
    6090 ACARA LN
Fale com um profissional
Por Que Nos Escolher?
  • Comunicação e Transparência
  • Negociação Qualificada
  • Rede Profissional Robusta
  • Suporte Pós-Venda
Propriedades em Destaque

Imóveis relacionados

avt
Daniel Dourado
$ 340,000
avt
Daniel Dourado
$ 395,000
img
  • Featured
  • Active
Townhouse

4167 HARBOUR PALM DR

  • 3
  • 3
  • 133 m²
avt
Daniel Dourado
$ 299,900
img
  • Featured
  • Active
Townhouse

1836 N CRYSTAL LAKE DR

  • 2
  • 3
  • 137 m²
avt
Daniel Dourado
$ 220,000
img
  • Featured
  • Active
Townhouse

8522 CANYON CREEK TRL

  • 3
  • 3
  • 169 m²
avt
Daniel Dourado
$ 274,000
img
  • Featured
  • Active
Townhouse

5685 NEW INDEPENDENCE PKWY

  • 3
  • 3
  • 162 m²
avt
Daniel Dourado
$ 475,000
avt
Daniel Dourado
$ 373,439
avt
Daniel Dourado
$ 320,000
img
  • Featured
  • Active
Townhouse

5246 HAMPTON BEACH PL

  • 2
  • 2
  • 114 m²
avt
Daniel Dourado
$ 425,000
avt
Daniel Dourado
$ 275,000
avt
Daniel Dourado
$ 307,490
avt
Daniel Dourado
$ 415,000