Active

$364,000

Características:
  • 4 Quartos
  • 3 Banheiros
  • 201 m²
Visão Geral
  • ID: MFRO6356655
  • Quartos: 4
  • Banheiros: 3
  • Tamanho: 201 m²
Detalhes do Imóvel
Observações
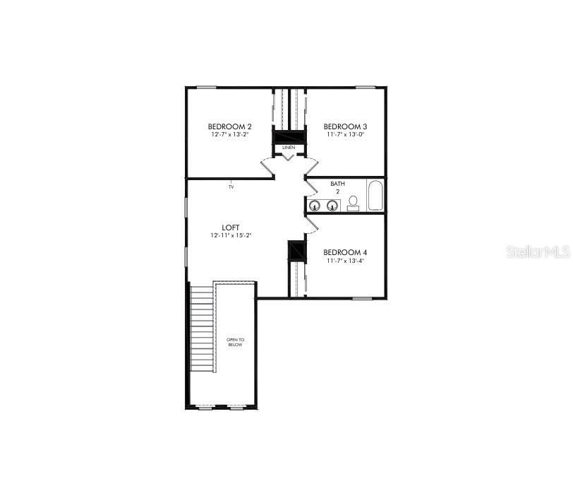
Uma ou mais fotos foram virtualmente encenadas. Nova construção de 2 andares pronta para mudança em Lady Lake - Reserva em Hammock Oaks Bem-vindo à casa dos seus sonhos na Reserva em Hammock Oaks, uma nova e vibrante comunidade de construção em Lady Lake, Flórida, a poucos minutos de The Villages e de restaurantes, lojas e golfe de primeira linha. Esta casa com certificação Energy Star oferece 2.168 pés quadrados de espaço cuidadosamente projetado com 4 quartos, 2,5 banheiros e uma garagem para 2 carros - perfeita para a vida moderna na Flórida. Recursos iniciais • 2.168 pés quadrados, 4 quartos, 2,5 banheiros, garagem para 2 carros • Suíte principal no primeiro andar com closet espaçoso • Armários de madeira escura com sancas para um acabamento rico e elegante • Bancadas de quartzo branco na cozinha e em todos os banheiros • Piso de cerâmica de grande formato em todas as principais áreas de estar • Carpete macio em todos os quartos e no loft no andar de cima • Utensílios de cozinha em aço inoxidável incluídos: geladeira, fogão, micro-ondas e lava-louças • Lavadora, secadora e persianas incluídas – realmente pronta para morar! ??? Vida de conceito aberto Desfrute de entretenimento sem esforço no layout de cozinha de conceito aberto, sala de jantar e sala familiar. A ilha de cozinha com assentos de balcão na altura do balcão é perfeita para refeições casuais ou para receber convidados. Um hall de entrada de dois andares acrescenta um toque dramático, enquanto a pia da cozinha tem vista para o quintal e a área de estar, mantendo você conectado a cada momento. Retiro no andar de cima No andar de cima, você encontrará um loft espaçoso - ideal para sala de mídia, sala de jogos ou home office - além de três quartos adicionais e um banheiro completo com pia dupla, oferecendo conforto e privacidade para familiares ou convidados. ?? Eficiência energética e bem-estar Esta casa é certificada pela Energy Star, apresentando: • Isolamento de espuma em spray para maior conforto e economia de energia • Sistema de entrada de ar fresco para reduzir alérgenos e melhorar a qualidade do ar interno • Um ambiente doméstico mais silencioso, saudável e eficiente Comodidades Comunitárias Viva o estilo de vida da Flórida com acesso a: • Piscina comunitária em estilo resort • Quadras de pickleball • Parque infantil • Espaços verdes abertos para recreação e relaxamento Destaques de localização Situada no coração de Lady Lake, esta casa oferece acesso rápido a The Villages, Lake Sumter Landing e uma variedade de restaurantes, lojas e centros médicos - tudo isso enquanto desfruta da paz de uma comunidade planejada.
Considerações Financeiras
Preço:
$364,000
Taxa de HOA:
404
Valor do Imposto:
$3456
Preço por m²:
$167.9
Descrição Legal do Imposto:
RESERVAS EM HAMMOCK OAKS FASE 1A PB 85 PG 69-73 LOTE 128 ORB 6550 PG 162
Características Exteriores
Tamanho do Lote:
4800
Características do Lote:
Ajardinado, Nível, Calçada, Pavimentado
Beira-mar:
Não
Vagas de Estacionamento:
N/D
Estacionamento:
Entrada de automóveis, abridor de porta de garagem
Telhado:
Telha
Piscina:
Não
Características da Piscina:
N/D
Características Interiores
Quartos:
4
Banheiros:
3
Aquecimento:
Central, Elétrica, Exaustor, Bomba de Calor
Resfriamento:
Ar Central, Controle de Umidade
Eletrodomésticos:
Máquina de lavar louça, descarte, secadora, esquentador elétrico, exaustor, micro-ondas, fogão, geladeira, lavadora
Mobiliado:
Sim
Andar:
Tapete, Azulejo
Níveis:
Dois
Características Adicionais
Subtipo de Imóvel:
Residência Unifamiliar
Estilo:
N/D
Ano de Construção:
2025
Tipo de Construção:
Bloco, tipo hardiplank, estuque, quadro
Vagas na Garagem:
Sim
Vagas Cobertas:
N/D
Orientação da Fachada:
Noroeste
Animais Permitidos:
Sim
Condição Especial:
Nenhum
Características Adicionais:
Iluminação, calçada, portas de correr
Características Adicionais 2:
nenhum
Mapa
  • Endereço
    827 SUNSHOWER DR
Fale com um profissional
Por Que Nos Escolher?
  • Comunicação e Transparência
  • Negociação Qualificada
  • Rede Profissional Robusta
  • Suporte Pós-Venda
Propriedades em Destaque

Imóveis relacionados

avt
Daniel Dourado
$ 439,900
avt
Daniel Dourado
$ 949,900
avt
Daniel Dourado
$ 465,000
avt
Daniel Dourado
$ 315,000
avt
Daniel Dourado
$ 379,900
avt
Daniel Dourado
$ 689,900
avt
Daniel Dourado
$ 262,000
avt
Daniel Dourado
$ 500,000
avt
Daniel Dourado
$ 419,000
avt
Daniel Dourado
$ 599,000