Active

$449,900

Características:
  • 4 Quartos
  • 3 Banheiros
  • 195 m²
Visão Geral
  • ID: MFRS5131479
  • Quartos: 4
  • Banheiros: 3
  • Tamanho: 195 m²
Detalhes do Imóvel
Observações
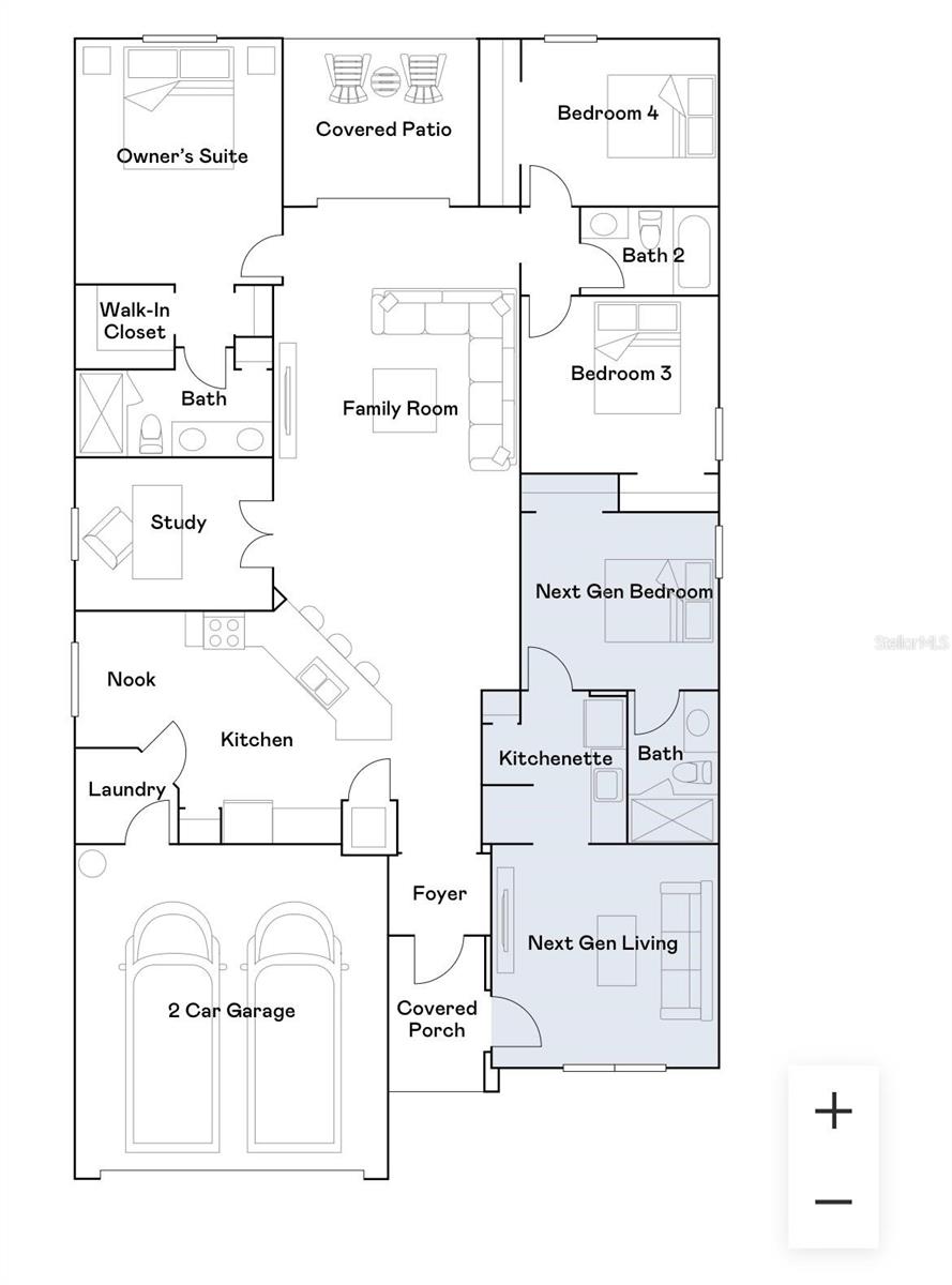
Este belo novo espaço moderno para casa unifamiliar de construção, tudo em um nível. Garagem de 2 carros, acabamentos contemporâneos e um layout inteligente, esta casa é ideal para uma vida ou entretenimento multigeracional. A área de estar principal de conceito aberto possui aparelhos de aço inoxidável, bancadas em granito, uma grande ilha e muito espaço no armário, perfeito para cozinhar e divertir. The home also includes a dedicated laundry room and energy-efficient systems, including solar panels for added savings.Located in the amenity-rich Storey Creek community, residents enjoy access to a clubhouse, fitness center, resort-style pool, dog park, sports courts, playground, and walking trails, all with low HOA fees.Just minutes from major highways, shopping, dining, and world-class attractions, this home offers the perfect balance of comfort, convenience, e comunidade.
Considerações Financeiras
Preço:
$449,900
Taxa de HOA:
168
Valor do Imposto:
$2617
Preço por m²:
$213.32
Descrição Legal do Imposto:
Storey Creek Ph 6 PB 34 PGs 21-24 lote 869
Características Exteriores
Tamanho do Lote:
6098
Características do Lote:
N/D
Beira-mar:
Não
Vagas de Estacionamento:
N/D
Estacionamento:
N/D
Telhado:
Telha
Piscina:
Não
Características da Piscina:
N/D
Características Interiores
Quartos:
4
Banheiros:
3
Aquecimento:
Elétrico
Resfriamento:
Central Aérea
Eletrodomésticos:
Máquina de lavar louça, aquecedor elétrico de água, micro-ondas, geladeira
Mobiliado:
Não
Andar:
Tapete, Azulejo Cerâmico
Níveis:
Um
Características Adicionais
Subtipo de Imóvel:
Residência Unifamiliar
Estilo:
N/D
Ano de Construção:
2024
Tipo de Construção:
Estuque
Vagas na Garagem:
Sim
Vagas Cobertas:
N/D
Orientação da Fachada:
Sudoeste
Animais Permitidos:
Sim
Condição Especial:
Nenhum
Características Adicionais:
Jardim
Características Adicionais 2:
N/D
Mapa
  • Endereço
    2281 POCKY WAY
Fale com um profissional
Por Que Nos Escolher?
  • Comunicação e Transparência
  • Negociação Qualificada
  • Rede Profissional Robusta
  • Suporte Pós-Venda
Propriedades em Destaque

Imóveis relacionados

avt
Daniel Dourado
$ 330,000
avt
Daniel Dourado
$ 365,000
avt
Daniel Dourado
$ 500,000
avt
Daniel Dourado
$ 1,575,000
avt
Daniel Dourado
$ 360,000
avt
Daniel Dourado
$ 509,990
avt
Daniel Dourado
$ 320,000
avt
Daniel Dourado
$ 240,000
avt
Daniel Dourado
$ 345,000
avt
Daniel Dourado
$ 519,900
avt
Daniel Dourado
$ 469,900