Active

$647,572

Características:
  • 4 Quartos
  • 3 Banheiros
  • 225 m²
Visão Geral
  • ID: MFRO6367351
  • Quartos: 4
  • Banheiros: 3
  • Tamanho: 225 m²
Detalhes do Imóvel
Observações
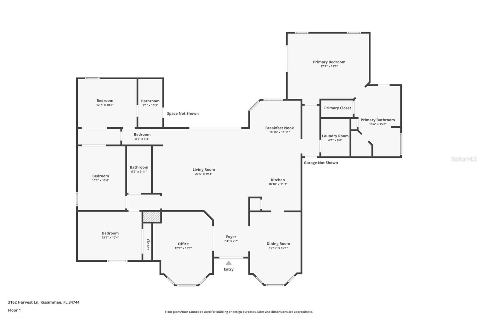
Descubra o seu retiro ideal na Flórida nesta bela casa térrea com piscina, situada em mais de meio acre no bairro tranquilo e arborizado de Rustic Acres - convenientemente perto da vibrante área do Lago Nona. Passe pelas impressionantes portas duplas da frente para um espaço iluminado e arejado, com tetos altos de 3 metros e grandes janelas que permitem a entrada de bastante luz do sol. O layout inteligente de quartos divididos é perfeito para a vida cotidiana e para receber hóspedes, com uma cozinha amigável ao chef equipada com fornos duplos, bancadas de granito, armários de madeira real atualizados e um belo respingo traseiro. Os controles deslizantes dobráveis ​​abrem-se amplamente para combinar espaços internos e externos sem esforço. Vá para a ampla varanda com tela, onde você encontrará uma piscina refrescante e um spa relaxante, além de uma prática banheira de piscina - tudo emoldurado por árvores estabelecidas e paisagismo para uma camada extra de isolamento e encanto natural. Esta casa de 4 quartos e 3 banheiros inclui um escritório dedicado, impressionantes pisos de tábuas cinza com aparência de madeira, uma prática lavanderia interna com pia e uma garagem enorme para 3 carros. A longa entrada acomoda facilmente vários veículos, portanto o estacionamento nunca é um problema. Abundam as atualizações práticas: água de poço particular, painéis solares economizadores de energia (PAGOS gratuitos e transparentes), proteções de janelas contra furacões Storm Stopper de alto impacto (avaliadas até 145 mph), um telhado substituído em 2020 e um aquecedor de água a partir de 2023. A localização privilegiada significa acesso rápido às lojas, restaurantes e centros da Medical City de Lake Nona, como o Orlando VA Hospital, o Nemours Children's Hospital e, claro, a UCF College of Medicine. Fácil acesso à State Road 417, Aeroporto Internacional de Orlando, Disney World, Universal Studios, SeaWorld, Gatorland e Nona Adventure Park. As praias e o Centro Espacial Kennedy ficam a apenas uma hora de distância, então este é realmente um local ideal. Se você está procurando uma mistura de privacidade descontraída e fácil acesso a tudo o que a Flórida Central oferece, esta joia de Rustic Acres está chamando seu nome - você vai adorar chamá-la de lar!
Considerações Financeiras
Preço:
$647,572
Taxa de HOA:
125
Valor do Imposto:
$3353.22
Preço por m²:
$266.93
Descrição Legal do Imposto:
Unidade rústica acres 3 pb 8 pg 55 lote 82
Características Exteriores
Tamanho do Lote:
22825
Características do Lote:
No condado, paisagístico, nivelado, lote grande, pavimentado
Beira-mar:
Não
Vagas de Estacionamento:
N/D
Estacionamento:
Entrada de automóveis, garagem voltada para o lado, grande
Telhado:
Telha
Piscina:
Sim
Características da Piscina:
Gunite, no solo, gabinete de tela, autolimpante
Características Interiores
Quartos:
4
Banheiros:
3
Aquecimento:
Central, Elétrica
Resfriamento:
Central Aérea
Eletrodomésticos:
Máquina de lavar louça, descarte, aquecedor elétrico de água, fogão
Mobiliado:
Sim
Andar:
Tapete, Azulejo Cerâmico
Níveis:
Um
Características Adicionais
Subtipo de Imóvel:
Residência Unifamiliar
Estilo:
N/D
Ano de Construção:
1999
Tipo de Construção:
Bloco, Estuque
Vagas na Garagem:
Sim
Vagas Cobertas:
N/D
Orientação da Fachada:
Norte
Animais Permitidos:
Não
Condição Especial:
Nenhum
Características Adicionais:
Iluminação, Caixa de Correio Privada, Calhas de Chuva, Portas de Correr, Arrumação
Características Adicionais 2:
N/D
Mapa
  • Endereço
    3162 HARVEST LN
Fale com um profissional
Por Que Nos Escolher?
  • Comunicação e Transparência
  • Negociação Qualificada
  • Rede Profissional Robusta
  • Suporte Pós-Venda
Propriedades em Destaque

Imóveis relacionados

avt
Daniel Dourado
$ 5,749,900
avt
Daniel Dourado
$ 1,390,000
avt
Daniel Dourado
$ 1,675,000
avt
Daniel Dourado
$ 595,500
avt
Daniel Dourado
$ 309,000
avt
Daniel Dourado
$ 1,200,000
avt
Daniel Dourado
$ 1,100,000