Active

$475,000

Características:
  • 4 Quartos
  • 3 Banheiros
  • 154 m²
Visão Geral
  • ID: MFRO6217684
  • Quartos: 4
  • Banheiros: 3
  • Tamanho: 154 m²
Detalhes do Imóvel
Observações
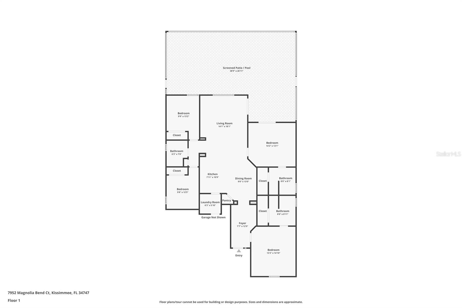
Oportunidade fantástica para o proprietário ou investidor em propriedades de rolling hills! Localização, localização, localização! Esta bela casa está situada na subdivisão de propriedades rolantes altamente procuradas. Com sua localização privilegiada, você passará a poucos minutos da Disney, Interstate 4 e do 429, garantindo fácil acesso a Orlando, Winter Garden e todas as principais atrações. Propriedade versátil: Se você está procurando um aluguel de curto prazo, um aluguel de longo prazo ou uma maravilhosa residência particular, essa propriedade se encaixa perfeitamente na conta. Entrada convidativa: Entre na entrada da galeria de arte acolhedora que define o tom para esta bela casa. Área de jantar e cozinha: além da entrada, a área de jantar oferece um local perfeito para conversar com os hóspedes ou se misturar com o cozinheiro na cozinha anexada, com utensílios de aço inoxidável atualizados, uma barra de café da manhã e uma sala de utilidade anexada por conveniência. 2 suítes master: a suíte master aguarda, completa com um banheiro privativo, onde você pode relaxar e relaxar na banheira após um longo dia. Sala de estar espaçosa: na sua frente, a espaçosa sala de estar formal oferece uma bela vista da piscina, perfeita para relaxar e divertir. Quartos adicionais: À esquerda da sala de estar, um salão leva a quartos espaçosos adicionais e banheiros completos, proporcionando amplo espaço para a família ou os hóspedes. Oásis ao ar livre: Aproveite o ensolarado clima da Flórida no pátio traseiro, com uma piscina exibida e uma área de estar de pátio, ideal para o prazer ao ar livre. Novo telhado: junho de 2024 Grande bairro: Rolling Hills Estates é conhecida por sua fantástica atmosfera comunitária. Não perca esta oportunidade excepcional!
Considerações Financeiras
Preço:
$475,000
Taxa de HOA:
600
Valor do Imposto:
$5808.32
Preço por m²:
$285.8
Descrição Legal do Imposto:
ROLLING HILLS ESTATES UNIDADE 2 PB 10 PG 71-72 EM FORMOSA GARDENS LOTE 62
Características Exteriores
Tamanho do Lote:
9060
Características do Lote:
N/D
Beira-mar:
Não
Vagas de Estacionamento:
N/D
Estacionamento:
N/D
Telhado:
Telha
Piscina:
Sim
Características da Piscina:
No chão
Características Interiores
Quartos:
4
Banheiros:
3
Aquecimento:
Central
Resfriamento:
Central Aérea
Eletrodomésticos:
Máquina de lavar louça, micro-ondas, fogão, geladeira
Mobiliado:
Não
Andar:
Vinil de luxo
Níveis:
Um
Características Adicionais
Subtipo de Imóvel:
Residência Unifamiliar
Estilo:
N/D
Ano de Construção:
1999
Tipo de Construção:
Bloquear
Vagas na Garagem:
Sim
Vagas Cobertas:
N/D
Orientação da Fachada:
Sudoeste
Animais Permitidos:
Sim
Condição Especial:
Nenhum
Características Adicionais:
Calçada, portas de correr
Características Adicionais 2:
Verifique com HOA quaisquer restrições.
Mapa
  • Endereço
    7952 MAGNOLIA BEND CT
Fale com um profissional
Por Que Nos Escolher?
  • Comunicação e Transparência
  • Negociação Qualificada
  • Rede Profissional Robusta
  • Suporte Pós-Venda
Propriedades em Destaque

Imóveis relacionados

avt
Daniel Dourado
$ 289,900
avt
Daniel Dourado
$ 840,000
avt
Daniel Dourado
$ 659,000
avt
Daniel Dourado
$ 320,000
avt
Daniel Dourado
$ 415,000
avt
Daniel Dourado
$ 319,900
avt
Daniel Dourado
$ 285,000
avt
Daniel Dourado
$ 550,000