Active

$995,000

Características:
  • 3 Quartos
  • 3 Banheiros
  • 168 m²
Visão Geral
  • ID: MFRTB8447000
  • Quartos: 3
  • Banheiros: 3
  • Tamanho: 168 m²
Detalhes do Imóvel
Observações
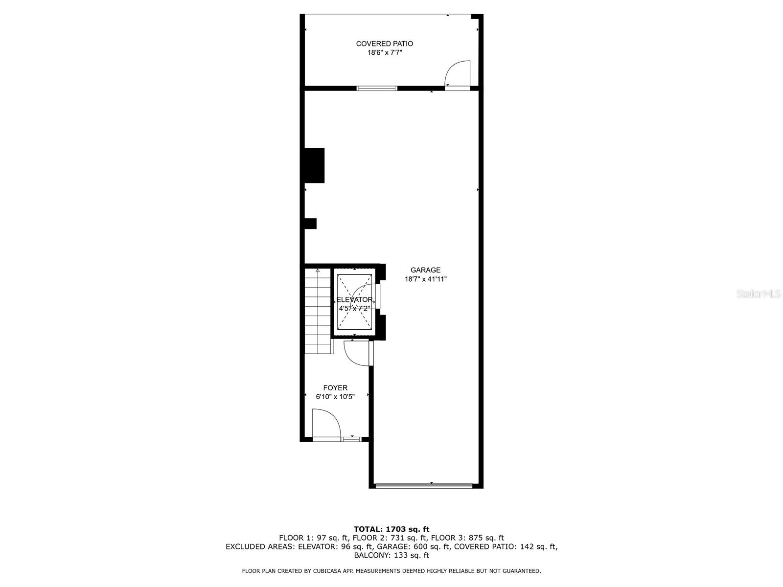
Viva o estilo de vida dos sonhos costeiros da Flórida nesta residência urbana elevada de 3 quartos e 2,5 banheiros construída em 2017, completa com um ancoradouro privativo de 35' e acesso direto ao canal para a Intracoastal Waterway - a poucos minutos do Golfo. Quer você seja velejador, banhista ou ambos, você vai adorar a localização privilegiada, a apenas cinco minutos a pé da praia e perto de restaurantes, lojas e entretenimento locais. Construída sólida em blocos, esta casa de três andares oferece uma planta espaçosa com piso de madeira projetado em todas as áreas de estar principais, elevador privativo e vista para o mar a partir da varanda e do pátio coberto. A cozinha possui bancada em granito, armários de madeira, eletrodomésticos em aço inoxidável e balcão que se abre para as áreas de estar e jantar. No andar de cima, a suíte principal inclui vista para o mar, área de estar/recanto de escritório, closet e banheiro privativo amplo com pias duplas e box amplo. A enorme garagem tandem de 40 pés de profundidade oferece estacionamento para dois carros e muito espaço de armazenamento extra para seus equipamentos de praia e brinquedos. Depois de um dia na água, faça uma curta caminhada até a praia para ver o pôr do sol ou pegue o Jolly Trolley, nas proximidades, para sair à noite. Esta é uma área à beira-mar de baixa manutenção que vive no seu melhor em um dos locais mais desejáveis ​​de Indian Rocks Beach.
Considerações Financeiras
Preço:
$995,000
Taxa de HOA:
2400
Valor do Imposto:
$9780.79
Preço por m²:
$549.12
Descrição Legal do Imposto:
Aterrissagem em Windrush, a unidade 1 do condomínio 1
Características Exteriores
Tamanho do Lote:
12037
Características do Lote:
N/D
Beira-mar:
Sim
Vagas de Estacionamento:
N/D
Estacionamento:
N/D
Telhado:
Telha
Piscina:
Não
Características da Piscina:
N/D
Características Interiores
Quartos:
3
Banheiros:
3
Aquecimento:
Central
Resfriamento:
Central Aérea
Eletrodomésticos:
Secadora, Microondas, Fogão, Geladeira, Lavadora
Mobiliado:
Não
Andar:
Azulejo, Madeira
Níveis:
Dois
Características Adicionais
Subtipo de Imóvel:
Moradia
Estilo:
N/D
Ano de Construção:
2017
Tipo de Construção:
Bloquear
Vagas na Garagem:
Sim
Vagas Cobertas:
N/D
Orientação da Fachada:
Sul
Animais Permitidos:
Não
Condição Especial:
Nenhum
Características Adicionais:
Sacada
Características Adicionais 2:
Todas as restrições de arrendamento a serem verificadas pelo comprador e pelo agente dos compradores.
Mapa
  • Endereço
    100 WINDRUSH BLVD #1
Fale com um profissional
Por Que Nos Escolher?
  • Comunicação e Transparência
  • Negociação Qualificada
  • Rede Profissional Robusta
  • Suporte Pós-Venda
Propriedades em Destaque

Imóveis relacionados

img
  • Featured
  • Active
Townhouse

2967 BAYSHORE POINTE DR

  • 3
  • 4
  • 185 m²
avt
Daniel Dourado
$ 454,900
avt
Daniel Dourado
$ 300,000
avt
Daniel Dourado
$ 300,000
img
  • Featured
  • Active
Townhouse

3609 BAL HARBOR BLVD #3

  • 3
  • 3
  • 139 m²
avt
Daniel Dourado
$ 475,000
img
  • Featured
  • Active
Townhouse

3609 BAL HARBOR BLVD #1

  • 3
  • 3
  • 139 m²
avt
Daniel Dourado
$ 485,000
avt
Daniel Dourado
$ 429,290
avt
Daniel Dourado
$ 384,490
avt
Daniel Dourado
$ 395,000
img
  • Featured
  • Active
Townhouse

1206 PINEYWOOD FIELD DR

  • 3
  • 3
  • 155 m²
avt
Daniel Dourado
$ 295,990
img
  • Featured
  • Active
Townhouse

23217 WILLOW GLEN WAY

  • 3
  • 3
  • 151 m²
avt
Daniel Dourado
$ 290,000
avt
Daniel Dourado
$ 279,990
img
  • Featured
  • Active
Townhouse

2510 MIDDLETON GROVE DR

  • 3
  • 4
  • 198 m²
avt
Daniel Dourado
$ 300,000