Active

$1,100,000

Características:
  • 4 Quartos
  • 5 Banheiros
  • 337 m²
Visão Geral
  • ID: MFRO6376303
  • Quartos: 4
  • Banheiros: 5
  • Tamanho: 337 m²
Detalhes do Imóvel
Observações
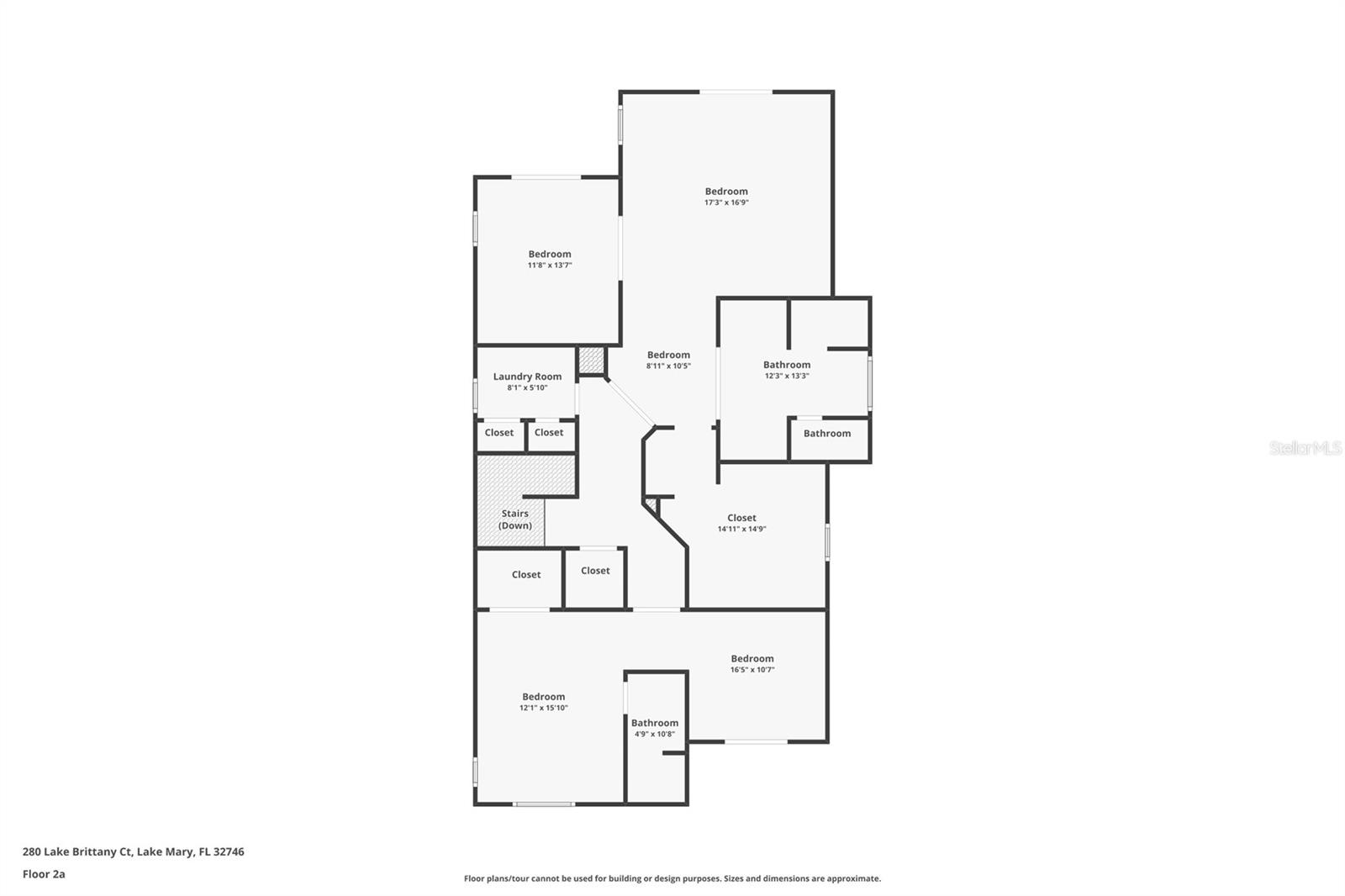
Uma rara oportunidade de possuir uma vila verdadeiramente personalizada em estilo europeu em um dos enclaves mais estabelecidos de Heathrow. Escondida em um beco sem saída privado, esta villa excepcional de estilo europeu oferece uma rara mistura de caráter arquitetônico e luxo livre de manutenção, um retiro ideal para quem procura uma residência principal refinada ou uma segunda casa elegante. Perfeitamente posicionada no 5º buraco com vistas deslumbrantes do campo de golfe e do lago, a casa recebe você através de uma entrada dramática no pátio com lareira a gás e um tranquilo lago de carpas com cachoeira. Através das portas francesas de vidro, você é recebido com uma área de estar repleta de luz natural e aprimorada por piso de travertino, tetos altos de 3 metros, marcenaria personalizada, paredes pintadas à mão e detalhes atemporais. Melhorias recentes incluem interior recém-pintado, nova iluminação de designer e carpete recém-limpo, criando um ambiente de vida claro e pronto para morar. Projetada para uma vida confortável e sem esforço, a residência inclui acesso por elevador ao segundo andar, duas lareiras a gás, portas francesas por toda parte e uma abundância de armazenamento embutido. A cozinha do chef é refinada e funcional, com fogão a gás Dacor de 5 bocas, forno de parede profissional Thermador e gaveta de aquecimento, lava-louças Café de duas gavetas, bancadas de granito, armários personalizados, despensa e fluxo contínuo para entretenimento. A suíte principal no andar de cima serve como um santuário privado com vista panorâmica do golfe, área de estar ou escritório, varanda privativa, teto falso, closet personalizado e banheiro inspirado em spa com banheira de hidromassagem e chuveiro grande. Um quarto adicional no andar de cima oferece banheiro privativo, sala de estar e varanda privativa, enquanto um quarto privativo no térreo oferece flexibilidade para os hóspedes. Uma suíte privada separada para sogros, ideal como retiro para hóspedes, estúdio artístico ou zona de entretenimento, possui entrada própria, banheiro privativo, luz natural abundante e armazenamento. Construída para proporcionar tranquilidade, a casa inclui um gerador Generac para toda a casa, sala segura contra furacões com teto de cimento e paredes de blocos preenchidos com cimento, zonas duplas de ar condicionado com controle climático, sistema de aspiração central, isolamento aprimorado do sótão e um novo aquecedor de água quente. Um sistema de filtragem de água e um sistema de amaciante para toda a casa fornecem água limpa e de alta qualidade em toda a casa. O cuidado do gramado está incluído no HOA, permitindo uma vida com baixa manutenção. A vida ao ar livre é igualmente serena, com um pátio coberto com jardim com vista para o campo, perfeito para o café da manhã e o vinho à noite. A fachada de pedra, a porta da garagem em estilo de carruagem, a pavimentação de tijolos e a iluminação paisagística completam a presença de uma propriedade da casa. Heathrow é um condomínio único e fechado, com belas ruas arborizadas, bairros pitorescos e estilo de vida excepcional de clube de campo. Os moradores desfrutam de segurança 24 horas, um campo de golfe profissional de 18 buracos projetado por Ron Garl, dois clubes com espaços gastronômicos e sociais, quadras de tênis, academia de ginástica, piscina, trilhas para caminhada, playground, campos de beisebol e futebol, quadras de basquete, parques e espaços verdes. Idealmente localizado a uma curta caminhada ou passeio de carrinho de golfe até o clube de campo, com acesso conveniente às melhores escolas, lojas, restaurantes e principais estradas do condado de Seminole. Casas deste calibre, que oferecem acesso por elevador, acomodação privada para sogros, vista frontal para o golfe e vida livre de manutenção, raramente chegam ao mercado. Esta é uma oportunidade única e insubstituível dentro de um dos condomínios fechados mais estabelecidos da Flórida Central!
Considerações Financeiras
Preço:
$1,100,000
Taxa de HOA:
800
Valor do Imposto:
$8043.93
Preço por m²:
$303.2
Descrição Legal do Imposto:
Lote 16 Clubside em Heathrow PB 54 PGs 89 e 90
Características Exteriores
Tamanho do Lote:
6372
Características do Lote:
Beco sem saída, paisagístico, em campo de golfe, privado, calçada, pavimentado
Beira-mar:
Não
Vagas de Estacionamento:
N/D
Estacionamento:
Entrada de automóveis, abridor de porta de garagem
Telhado:
Telha
Piscina:
Não
Características da Piscina:
N/D
Características Interiores
Quartos:
4
Banheiros:
5
Aquecimento:
Central, Gás Natural
Resfriamento:
Central Aérea
Eletrodomésticos:
Forno de convecção, máquina de lavar louça, descarte, secadora, exaustor, aquecedor de água a gás, máquina de fazer gelo, micro-ondas, fogão, exaustor, geladeira, lavadora, sistema de filtragem de água, amaciante de água
Mobiliado:
Sim
Andar:
Carpete, madeira, mármore, azulejo, travertino
Níveis:
Dois
Características Adicionais
Subtipo de Imóvel:
Residência Unifamiliar
Estilo:
N/D
Ano de Construção:
2005
Tipo de Construção:
Bloco, Estuque
Vagas na Garagem:
Sim
Vagas Cobertas:
N/D
Orientação da Fachada:
Noroeste
Animais Permitidos:
Não
Condição Especial:
Nenhum
Características Adicionais:
Varanda, Pátio, Portas Francesas, Jardim, Iluminação, Entrada Privada, Caixa de Correio Privada, Calhas de Chuva, Calçada, Sprinkler Medido
Características Adicionais 2:
O comprador e o agente do comprador deverão verificar de forma independente todas as informações HOA, incluindo, mas não se limitando a taxas, regras e restrições.
Mapa
  • Endereço
    280 LAKE BRITTANY CT
Fale com um profissional
Por Que Nos Escolher?
  • Comunicação e Transparência
  • Negociação Qualificada
  • Rede Profissional Robusta
  • Suporte Pós-Venda
Propriedades em Destaque

Imóveis relacionados

avt
Daniel Dourado
$ 289,900
avt
Daniel Dourado
$ 4,680,000
avt
Daniel Dourado
$ 249,000
avt
Daniel Dourado
$ 1,499,000
avt
Daniel Dourado
$ 425,000
avt
Daniel Dourado
$ 799,000
avt
Daniel Dourado
$ 874,999
avt
Daniel Dourado
$ 334,900
avt
Daniel Dourado
$ 400,000
avt
Daniel Dourado
$ 365,000