Active

$749,000

Características:
  • 4 Quartos
  • 3 Banheiros
  • 276 m²
Visão Geral
  • ID: MFRO6348988
  • Quartos: 4
  • Banheiros: 3
  • Tamanho: 276 m²
Detalhes do Imóvel
Observações
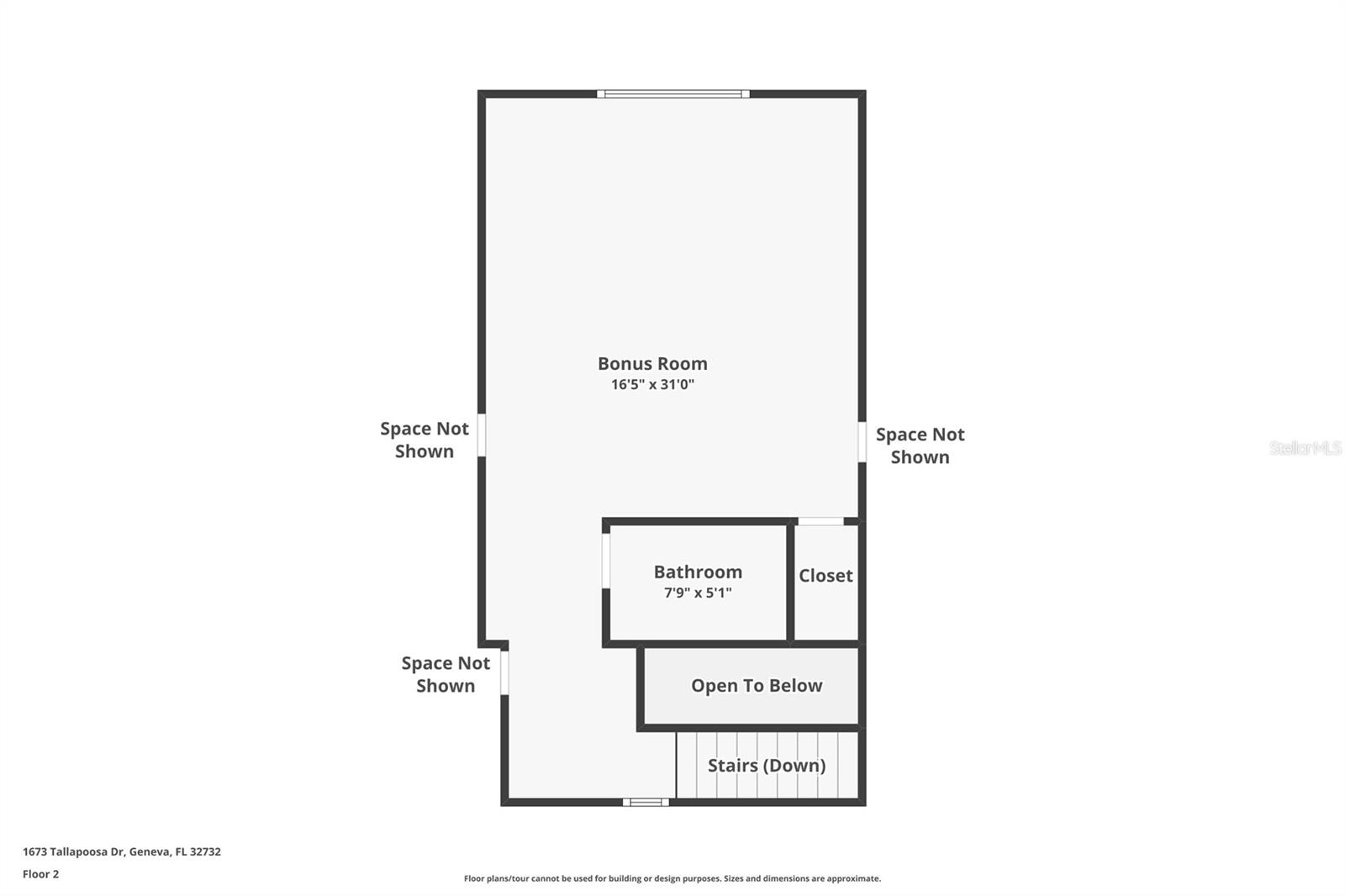
Uma ou mais fotos foram praticamente encenadas. ** Genebra Gem ** Bem-vindo ao Seminole Woods, uma comunidade equestre de mão de guarda que abrange 1.550 acres de beleza arborizada. Esta casa de 4 quartos e três banheiros fica em pouco mais de 5 acres e oferece uma planta baixa com uma sala de família, jantar formal, lavanderia grande e uma sala de bônus/escritório flexível. Uma adição de segundo andar (2005) apresenta uma espaçosa sala de bônus com pisos de carvalho de verdade, um banho completo e uma tela de filme pendurada-perfeita para um espaço de entretenimento adicional. Aproveite o ar livre com duas varandas cobertas de exibição, incluindo uma na suíte master e uma na sala da família. Seminole Woods é uma comunidade rara de 262 propriedades de cinco acres, dando-lhe verdadeira privacidade. Os moradores podem desfrutar de quilômetros de trilhas particulares de pilotagem e caminhada, vida selvagem abundante e um belo parque à beira do lago em Buck Lake com uma rampa de barco particular, píer de pesca, playground e muito mais. Os eventos comunitários e de férias reúnem vizinhos, enquanto as escolas de seminole de primeira linha e as compras/refeições locais estão a poucos minutos. Traga sua visão e inspiração de design-esta propriedade está pronta para ser reimaginada em uma propriedade única. Com ossos sólidos e espaços generosos, esta casa oferece a oportunidade perfeita para personalizar e agregar valor por meio de atualizações. Crie o estilo de vida com o qual você sonha em Seminole Woods. Não espere: agende sua exibição particular hoje!
Considerações Financeiras
Preço:
$749,000
Taxa de HOA:
1932
Valor do Imposto:
$3986
Preço por m²:
$252.02
Descrição Legal do Imposto:
SEC 20 TWP 20S RGE 32E BEG 810,24 FT S DE W 1/4 COR RUN N 88 DEG 49 MIN 3 SEC E 598.92 FT S 170 FT Sly na curva 200 pés W 628.11 ft N 364.55 ft para implorar (5,076 AC)
Características Exteriores
Tamanho do Lote:
221088
Características do Lote:
N/D
Beira-mar:
Não
Vagas de Estacionamento:
N/D
Estacionamento:
N/D
Telhado:
Telha
Piscina:
Não
Características da Piscina:
N/D
Características Interiores
Quartos:
4
Banheiros:
3
Aquecimento:
Central
Resfriamento:
Central Aérea
Eletrodomésticos:
Máquina de lavar louça, secadora, aquecedor elétrico de água, fogão, geladeira, lavadora
Mobiliado:
Não
Andar:
Tapete, azulejo, madeira
Níveis:
Dois
Características Adicionais
Subtipo de Imóvel:
Residência Unifamiliar
Estilo:
N/D
Ano de Construção:
1994
Tipo de Construção:
Bloco, Estuque
Vagas na Garagem:
Sim
Vagas Cobertas:
N/D
Orientação da Fachada:
Leste
Animais Permitidos:
Sim
Condição Especial:
Nenhum
Características Adicionais:
Caixa de correio privada, calhas de chuva
Características Adicionais 2:
Comprador (s) para verificar as restrições de arrendamento com o HOA, City, County e/ou todos os municípios.
Mapa
  • Endereço
    1673 TALLAPOOSA DR
Fale com um profissional
Por Que Nos Escolher?
  • Comunicação e Transparência
  • Negociação Qualificada
  • Rede Profissional Robusta
  • Suporte Pós-Venda
Propriedades em Destaque

Imóveis relacionados

avt
Daniel Dourado
$ 320,000
avt
Daniel Dourado
$ 369,900
avt
Daniel Dourado
$ 1,425,000
avt
Daniel Dourado
$ 439,000
avt
Daniel Dourado
$ 1,595,000
avt
Daniel Dourado
$ 290,000
avt
Daniel Dourado
$ 265,000