Active

$203,000

Características:
  • 2 Quartos
  • 2 Banheiros
  • 104 m²
Visão Geral
  • ID: MFRGC528645
  • Quartos: 2
  • Banheiros: 2
  • Tamanho: 104 m²
Detalhes do Imóvel
Observações
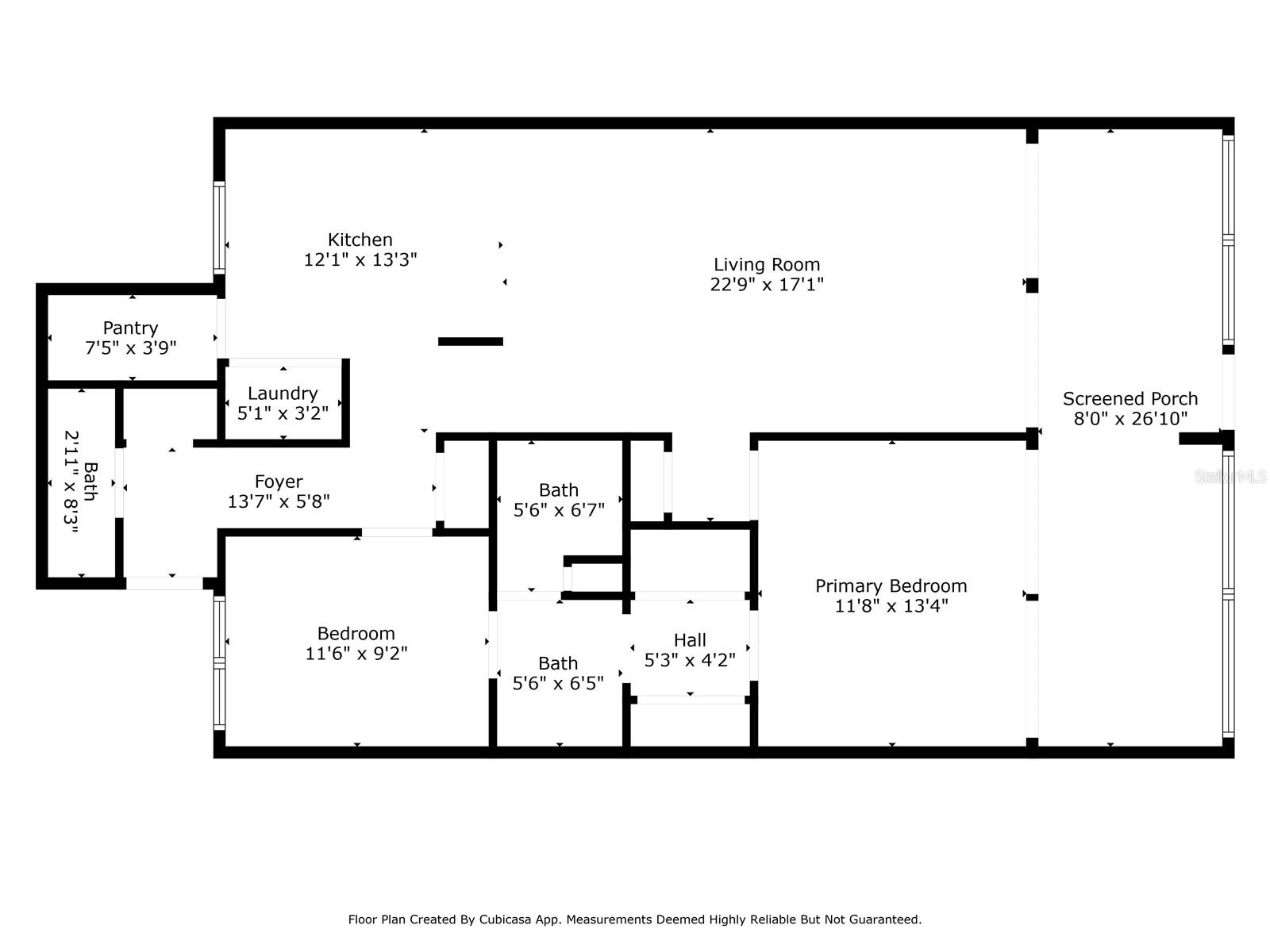
Espaçoso e brilhante piso térreo 2 quartos 1.5 Condomínio em Somerset Village. A unidade possui uma cozinha atualizada equipada com utensílios de aço inoxidável, incluindo geladeira, microondas, lava -louças, forno de convecção, bancadas em granito e armários de madeira. Interior do armário de utilidade com lavadora e secadora. Caminhe até Shands, a escola de medicina, a escola veterinária e o VA! Convenientemente localizado a apenas uma quadra do Hospital Shands e do Hospital VA e aproximadamente 1,5 quarteirões ao sul da UF. A proximidade de Somerset com a UF o torna um local ideal para estudantes de graduação e graduados; Da mesma forma, estar ao lado do Hospital Shands e dos complexos médicos da VA o torna moradia conveniente para pessoal médico, enfermeiros e técnicos viajantes. Há uma parada de ônibus RTS por perto. Perfeito para um ocupante do proprietário ou para uso como uma propriedade de aluguel. Venha e veja esta oportunidade excepcional hoje!
Considerações Financeiras
Preço:
$203,000
Taxa de HOA:
365
Valor do Imposto:
$3416.09
Preço por m²:
$181.25
Descrição Legal do Imposto:
Condomínio da vila de Somerset ou 1444/3 Unidade 1614 & .02381% int em elementos comuns ou 3325/1414
Características Exteriores
Tamanho do Lote:
N/D
Características do Lote:
N/D
Beira-mar:
Não
Vagas de Estacionamento:
N/D
Estacionamento:
Designado, hóspede, fora da rua, estacionamento
Telhado:
Telha
Piscina:
Não
Características da Piscina:
N/D
Características Interiores
Quartos:
2
Banheiros:
2
Aquecimento:
Central, Elétrica
Resfriamento:
Central Aérea
Eletrodomésticos:
Máquina de lavar louça, descarte, secadora, aquecedor elétrico de água, micro-ondas, fogão, geladeira, lavadora
Mobiliado:
Sim
Andar:
Carpete, Outro, Azulejo
Níveis:
Um
Características Adicionais
Subtipo de Imóvel:
Condomínio
Estilo:
N/D
Ano de Construção:
1982
Tipo de Construção:
Bloco, concreto, outro, estuque, tapume de madeira
Vagas na Garagem:
Não
Vagas Cobertas:
N/D
Orientação da Fachada:
Sul
Animais Permitidos:
Não
Condição Especial:
Nenhum
Características Adicionais:
Iluminação, Outros, Portas de correr
Características Adicionais 2:
Recomenda -se que uma comunidade de revisão de um comprador DOCS para verificar a precisão de quaisquer restrições e detalhes específicos sobre restrições de animais de estimação/ arrendamento. Acredita -se que as informações de listagem nesta seção sejam precisas, mas não são garantidas. Entre em contato com o HOA.
Mapa
  • Endereço
    1614 SW 16TH ST #1614
Fale com um profissional
Por Que Nos Escolher?
  • Comunicação e Transparência
  • Negociação Qualificada
  • Rede Profissional Robusta
  • Suporte Pós-Venda
Propriedades em Destaque

Imóveis relacionados

img
  • Featured
  • Active
Condominium

5100 BURCHETTE RD #4102

  • 2
  • 3
  • 110 m²
avt
Daniel Dourado
$ 219,000
avt
Daniel Dourado
$ 509,000
avt
Daniel Dourado
$ 1,400,000
img
  • Featured
  • Active
Condominium

2525 MAITLAND CROSSING WAY #305

  • 2
  • 2
  • 93 m²
avt
Daniel Dourado
$ 215,000
avt
Daniel Dourado
$ 255,000
avt
Daniel Dourado
$ 550,000
avt
Daniel Dourado
$ 599,000
avt
Daniel Dourado
$ 482,500
img
  • Featured
  • Active
Condominium

6750 GULF OF MEXICO DR #154

  • 2
  • 2
  • 133 m²
avt
Daniel Dourado
$ 569,000
avt
Daniel Dourado
$ 450,000
avt
Daniel Dourado
$ 280,000
avt
Daniel Dourado
$ 1,150,000