Active

$499,000

Características:
  • 2 Quartos
  • 1 Banheiros
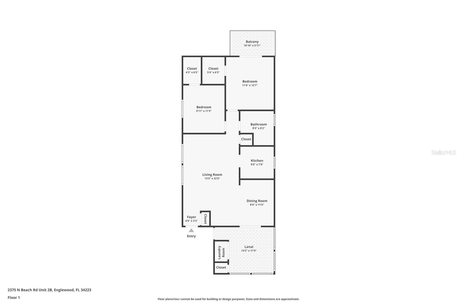
  • 102 m²
Visão Geral
  • ID: MFRD6146576
  • Quartos: 2
  • Banheiros: 1
  • Tamanho: 102 m²
Detalhes do Imóvel
Observações
ALERTA A INVESTIDORES - Unidade TURN KEY altamente ocupada com gerente de propriedade disponível E LISTAGEM 5 ESTRELAS COM AVALIAÇÕES RAVE pronta para transferência para RENDA IMEDIATA. 75 movimentações em 2025 com MAIS de US$ 83.000 em receita bruta!!! ACOMODA 6! Apresentando uma PISCINA COMUNITÁRIA AQUECIDA, DOCA COMUNITÁRIA e ACESSO À PRAIA ESCRITA, essas unidades são PROPRIEDADES DE PRODUÇÃO DE RENDA PRINCIPAL, SEM RESTRIÇÕES DE ALUGUEL. Esta propriedade MOBILIADA CHAVE NA MÃO apresenta PISOS, ARMÁRIOS e BANCADAS ATUALIZADOS, APARELHOS MAIS NOVOS, TINTA FRESCA, NOVO HVAC e um AQUECEDOR DE ÁGUA QUENTE MAIS NOVO, todos complementados por VISTAS DESLUMBRANTES da piscina e da hidrovia intracoastal. Projetado com PLANTA ABERTA e JANELAS ABUNDANTES, o espaço é repleto de LUZ NATURAL e oferece áreas confortáveis ​​para relaxar e se divertir. A cozinha da cozinha inclui tudo o que você precisa para uma estadia perfeita, com um BAR DE CAFÉ DA MANHÃ com vista para a área de jantar, sala de estar e LANAI GRANDE, além de um armário privativo para lavadora/secadora. O QUARTO PRIMÁRIO possui colchão Sealy KING, o quarto de hóspedes oferece um QUEEN e a sala de estar inclui um sofá-cama QUEEN, acomodando confortavelmente seis pessoas. MÓVEIS E ROUPA DE CAMA FORAM COMPRADOS RECENTEMENTE, com vários conjuntos incluídos para facilitar o giro do aluguel, e reservas futuras podem ser transferidas para o próximo proprietário. Localizado em Manasota Key, em Englewood, este charmoso destino insular oferece marinas próximas, campos de golfe, aluguel de barcos e jet ski, passeios guiados de caiaque e muito mais. Devine’s Turtle Bay é uma associação de condomínio boutique de apenas quatro edifícios e oito unidades, e AS TAXAS DE CONDOMÍNIO INCLUEM SEGURO DE EDIFÍCIO E CONTRA INUNDAÇÕES. Situado próximo ao Magnolia's on the Bay e a uma curta distância a pé de restaurantes, música ao vivo, lojas e da praia pública, este é realmente um LOCAL SUPERIOR PARA LOCATÁRIOS DE FÉRIAS. Ligue para obter detalhes antes que esta oportunidade desapareça. TOUR DE VÍDEO DISPONÍVEL AQUI: https://www.dropbox.com/scl/fi/6apqjtj323o8myl54ucgr/2375-N-Beach-Rd-2B-unbrandedVIDEO.mp4?rlkey=0gykjey7o5tu9s4ff9dqaaugh&st=e6x3ysce&dl=0
Considerações Financeiras
Preço:
$499,000
Taxa de HOA:
N/D
Valor do Imposto:
$5727.25
Preço por m²:
$450.36
Descrição Legal do Imposto:
DTB 000 0000 002B DEVINES TURTLE BAY UN 2-B 793/1707 1845/537 3722/1293 4980/75 3312372 3314659
Características Exteriores
Tamanho do Lote:
0
Características do Lote:
N/D
Beira-mar:
Sim
Vagas de Estacionamento:
N/D
Estacionamento:
N/D
Telhado:
Metal
Piscina:
Não
Características da Piscina:
N/D
Características Interiores
Quartos:
2
Banheiros:
1
Aquecimento:
Central
Resfriamento:
Central Aérea
Eletrodomésticos:
Máquina de lavar louça, secadora
Mobiliado:
Sim
Andar:
Azulejo cerâmico, vinil luxuoso
Níveis:
Um
Características Adicionais
Subtipo de Imóvel:
Condomínio
Estilo:
N/D
Ano de Construção:
1984
Tipo de Construção:
Quadro
Vagas na Garagem:
Não
Vagas Cobertas:
N/D
Orientação da Fachada:
Oeste
Animais Permitidos:
Não
Condição Especial:
Nenhum
Características Adicionais:
Varanda, Iluminação, Churrasqueira Exterior, Portas de Correr, Arrecadação
Características Adicionais 2:
Consulte as Regras e Regulamentos para obter informações sobre a política de animais de estimação. Os animais de estimação proprietários devem ser aprovados pela associação. Arrendatários, convidados e visitantes - não são permitidos animais de estimação.
Mapa
  • Endereço
    2375 N BEACH RD #2B
Fale com um profissional
Por Que Nos Escolher?
  • Comunicação e Transparência
  • Negociação Qualificada
  • Rede Profissional Robusta
  • Suporte Pós-Venda
Propriedades em Destaque

Imóveis relacionados

avt
Daniel Dourado
$ 315,000
avt
Daniel Dourado
$ 975,000
avt
Daniel Dourado
$ 225,000
avt
Daniel Dourado
$ 749,000
img
  • Featured
  • Active
Condominium

14800 WALSINGHAM RD #1203

  • 2
  • 2
  • 96 m²
avt
Daniel Dourado
$ 399,000
img
  • Featured
  • Active
Condominium

5055 GULF OF MEXICO DR #421

  • 2
  • 2
  • 137 m²
avt
Daniel Dourado
$ 575,000
img
  • Featured
  • Active
Condominium

8105 COCONUT PALM WAY #305

  • 3
  • 2
  • 117 m²
avt
Daniel Dourado
$ 220,000
avt
Daniel Dourado
$ 530,000
avt
Daniel Dourado
$ 245,000
avt
Daniel Dourado
$ 550,000
avt
Daniel Dourado
$ 725,000
avt
Daniel Dourado
$ 215,000