Active

$619,900

Características:
  • 4 Quartos
  • 3 Banheiros
  • 198 m²
Visão Geral
  • ID: MFRO6214769
  • Quartos: 4
  • Banheiros: 3
  • Tamanho: 198 m²
Detalhes do Imóvel
Observações
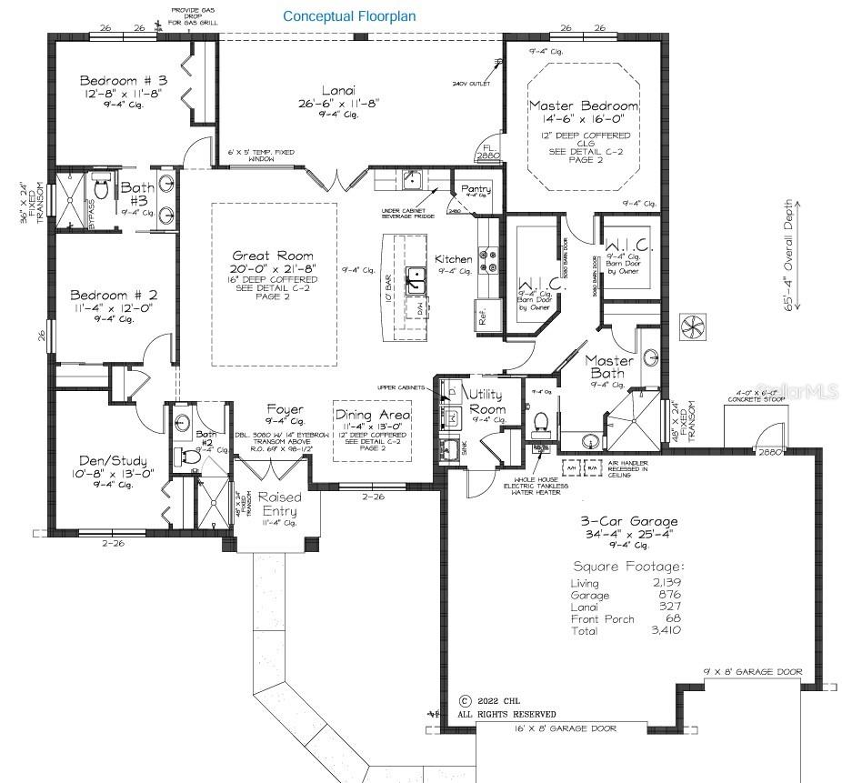
Vendedor motivado reduziu o preço novamente! O que é não amar? Esta é uma nova construção personalizada com uma excelente planta baixa na comunidade de campos de golfe par 72, Juliette Falls. A casa personalizada recém-construída tem toques e atualizações de designer atenciosos. Construído pensando no proprietário para conforto, fluidez e conveniência. Os tetos são altos com portas de 8'. As portas frontais decoradas com portas duplas levam a uma grande sala grande com lareira moderna. Isso leva à varanda enorme com uma nova banheira de hidromassagem Master Spa esperando por sua diversão. A Suíte Master possui armários espaçosos na entrada da porta do celeiro, penteadeiras, chuveiros duplos e nichos. A cozinha é espaçosa com uma enorme ilha elevada com armários envolventes. A grande despensa de canto com prateleiras sólidas e o bar com pia e geladeira para bebidas oferecem muito espaço para a família e entretenimento. As bancadas, azulejos e backsplash são impressionantes. Um aquecedor de água quente sem tanque para toda a casa atende a casa, e o sistema de sprinklers compartilha um poço de irrigação. A grande entrada pavimentada leva a uma garagem enorme para 3 carros. Imperdível!
Considerações Financeiras
Preço:
$619,900
Taxa de HOA:
110
Valor do Imposto:
$838
Preço por m²:
$289.81
Descrição Legal do Imposto:
SEC 05 TWP 16 RGE 19 PLAT BOOK 011 PÁGINA 111 JULIETTE FALLS SEGUNDO REPLAT LOTE 149
Características Exteriores
Tamanho do Lote:
13504
Características do Lote:
N/D
Beira-mar:
Não
Vagas de Estacionamento:
N/D
Estacionamento:
Entrada de automóveis, grandes dimensões, garagem dividida
Telhado:
Telha
Piscina:
Não
Características da Piscina:
N/D
Características Interiores
Quartos:
4
Banheiros:
3
Aquecimento:
Elétrico
Resfriamento:
Central Aérea
Eletrodomésticos:
Geladeira, forno de convecção, cooktop, lava-louças, descarte, micro-ondas, aquecedor de água sem tanque, lavadora
Mobiliado:
Não
Andar:
Vinil de luxo, azulejo
Níveis:
Um
Características Adicionais
Subtipo de Imóvel:
Residência Unifamiliar
Estilo:
N/D
Ano de Construção:
2024
Tipo de Construção:
Bloco, Estuque
Vagas na Garagem:
Sim
Vagas Cobertas:
N/D
Orientação da Fachada:
Sudeste
Animais Permitidos:
Não
Condição Especial:
Nenhum
Características Adicionais:
Iluminação
Características Adicionais 2:
Outro
Mapa
  • Endereço
    17841 SW 72ND STREET RD
Fale com um profissional
Por Que Nos Escolher?
  • Comunicação e Transparência
  • Negociação Qualificada
  • Rede Profissional Robusta
  • Suporte Pós-Venda
Propriedades em Destaque

Imóveis relacionados

avt
Daniel Dourado
$ 275,000
avt
Daniel Dourado
$ 748,500
avt
Daniel Dourado
$ 679,900
avt
Daniel Dourado
$ 349,000
avt
Daniel Dourado
$ 1,423,600
avt
Daniel Dourado
$ 411,990
avt
Daniel Dourado
$ 555,000
avt
Daniel Dourado
$ 538,500
avt
Daniel Dourado
$ 310,000
avt
Daniel Dourado
$ 325,000