Sold

$239,900

Características:
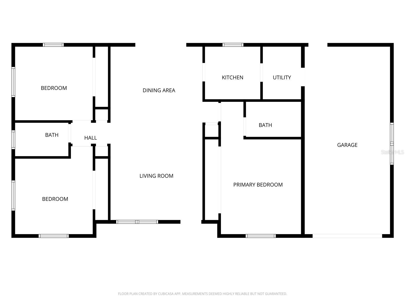
  • 3 Quartos
  • 2 Banheiros
  • 109 m²
Visão Geral
  • ID: MFRO6388137
  • Quartos: 3
  • Banheiros: 2
  • Tamanho: 109 m²
Detalhes do Imóvel
Observações
Bem-vindo a esta encantadora casa de 3 quartos e 2 banheiros com garagem para 1 carro localizada na Avenida Sable em Deltona. Esta casa possui uma planta de quartos divididos, oferecendo privacidade entre a suíte principal e os quartos secundários. A cozinha atualizada em estilo galera está equipada com bancadas de quartzo, fogão a gás e acabamentos modernos, tornando-a elegante e funcional para a cozinha do dia a dia. As espaçosas áreas de estar e jantar fluem perfeitamente para o grande pátio traseiro, criando o espaço perfeito para relaxar ou se divertir. O telhado foi substituído em 2021 Saia para desfrutar do espaçoso quintal, que oferece muito espaço para atividades ao ar livre, animais de estimação ou futuro espaço de jardim. Convenientemente localizada perto de lojas, restaurantes, parques e principais rodovias, esta casa oferece conforto, praticidade e excelente espaço ao ar livre. Ligue para sua exibição privada hoje, esta não vai durar.
Considerações Financeiras
Preço:
$239,900
Taxa de HOA:
N/D
Valor do Imposto:
$546.75
Preço por m²:
$208.97
Descrição Legal do Imposto:
LOTE 13 BLK 1894 DELTONA LAKES UNIDADE 74 MB 29 PGS 28-44 INC PER OU 4508 PG 1033 PER OU 5690 PG 4317 PER OU 7211 PGS 2685-2688 INC PER OU 8523 PG 1941
Características Exteriores
Tamanho do Lote:
9375
Características do Lote:
N/D
Beira-mar:
Não
Vagas de Estacionamento:
N/D
Estacionamento:
N/D
Telhado:
Telha
Piscina:
Não
Características da Piscina:
N/D
Características Interiores
Quartos:
3
Banheiros:
2
Aquecimento:
Central
Resfriamento:
Central Aérea
Eletrodomésticos:
Secadora, fogão, geladeira, lavadora
Mobiliado:
Sim
Andar:
Vinil de luxo, azulejo
Níveis:
Um
Características Adicionais
Subtipo de Imóvel:
Residência Unifamiliar
Estilo:
N/D
Ano de Construção:
1980
Tipo de Construção:
Bloquear
Vagas na Garagem:
Sim
Vagas Cobertas:
N/D
Orientação da Fachada:
Sudeste
Animais Permitidos:
Não
Condição Especial:
Nenhum
Características Adicionais:
Iluminação, calhas de chuva, portas de correr
Características Adicionais 2:
N/D
Mapa
  • Endereço
    2442 SABLE AVE
Fale com um profissional
Por Que Nos Escolher?
  • Comunicação e Transparência
  • Negociação Qualificada
  • Rede Profissional Robusta
  • Suporte Pós-Venda
Propriedades em Destaque

Imóveis relacionados

avt
Daniel Dourado
$ 338,090
avt
Daniel Dourado
$ 895,000
avt
Daniel Dourado
$ 400,000
avt
Daniel Dourado
$ 375,000
avt
Daniel Dourado
$ 300,000
avt
Daniel Dourado
$ 389,900
avt
Daniel Dourado
$ 439,000
avt
Daniel Dourado
$ 830,000
avt
Daniel Dourado
$ 369,990
avt
Daniel Dourado
$ 539,000
avt
Daniel Dourado
$ 824,900