Active

$300,000

Características:
  • 3 Quartos
  • 2 Banheiros
  • 199 m²
Visão Geral
  • ID: MFRO6307392
  • Quartos: 3
  • Banheiros: 2
  • Tamanho: 199 m²
Detalhes do Imóvel
Observações
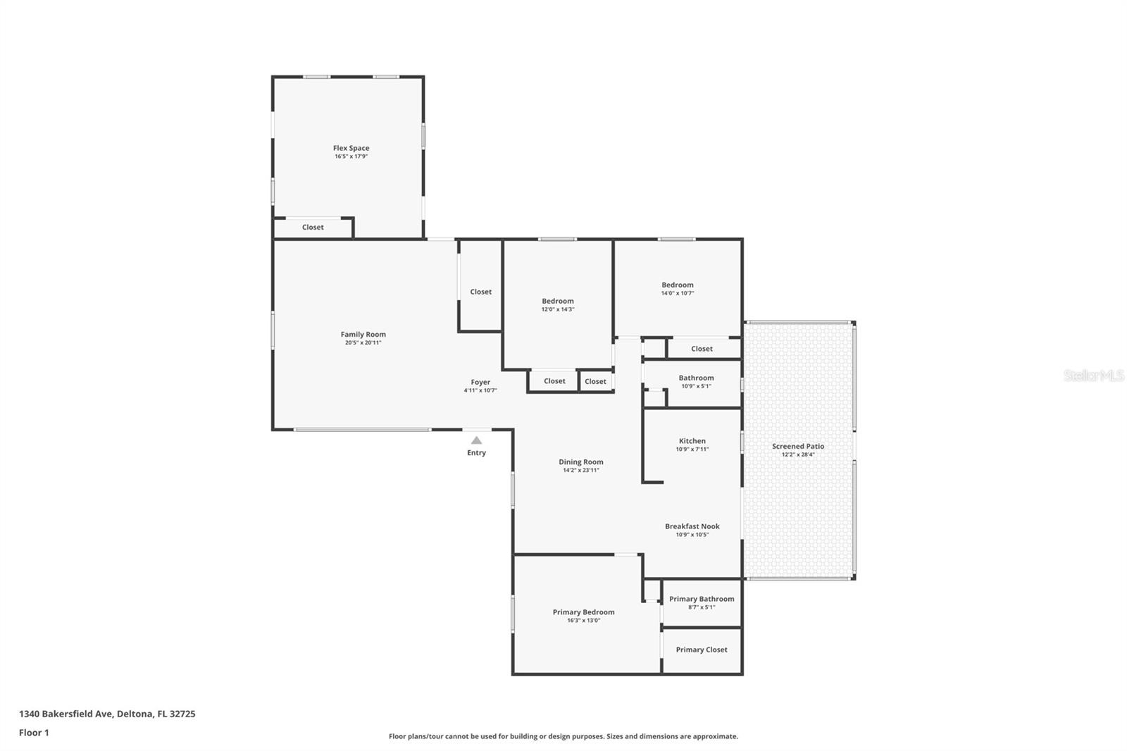
Situada em um bairro tranquilo de Deltona, esta casa de 3 quartos e 2 banheiros lindamente conservada oferece conforto, estilo e versatilidade. Com um layout versátil e atualizações cuidadosas, esta propriedade oferece conforto, funcionalidade e espaço para crescer. Entre para encontrar uma área de estar aberta e iluminada com piso de cerâmica em quase toda a casa - exceto na área de jantar, que adiciona um toque de calor e personalidade. O coração da casa inclui uma espaçosa sala de estar e uma área de jantar dedicada, perfeita para refeições em família ou para receber convidados. Uma característica de destaque é a grande sala de bônus com entrada privativa, que oferece infinitas possibilidades - ideal para home office, suíte de sogros, academia ou estúdio criativo. Ambas as casas de banho foram recentemente renovadas com acabamentos frescos e elegantes que oferecem um toque limpo e moderno. Desfrute de conforto durante todo o ano com uma unidade de ar condicionado mais recente instalada em março de 2024, proporcionando controle climático com eficiência energética. O telhado foi concluído em novembro de 2015, a fossa séptica e o novo Drainfield em março de 2019. A pintura interna e externa fresca faz com que a casa pareça nítida e pronta para morar. Ao ar livre, o quintal totalmente cercado oferece privacidade e espaço para animais de estimação, brincar ou relaxar nos fins de semana. Um prático galpão de armazenamento oferece espaço extra para ferramentas, equipamentos ou hobbies. Situada em uma comunidade estabelecida com acesso conveniente a escolas locais, parques, lojas e rotas de transporte regional, esta casa verifica todas as caixas em termos de espaço, atualizações e valor. Não perca a oportunidade de personalizar esta casa bem cuidada!
Considerações Financeiras
Preço:
$300,000
Taxa de HOA:
N/D
Valor do Imposto:
$4862
Preço por m²:
$139.41
Descrição Legal do Imposto:
Lote 23 e s 12 pés lote 24 blk 284 unidade de lagos Deltona 7 mb 25 pgs 149-162 inc por 4856 pg 1216 por ou 7168 pg 3969 por ou 7292 pg 1242 por ou 7328 pg 0525
Características Exteriores
Tamanho do Lote:
11500
Características do Lote:
N/D
Beira-mar:
Não
Vagas de Estacionamento:
N/D
Estacionamento:
N/D
Telhado:
Telha
Piscina:
Não
Características da Piscina:
N/D
Características Interiores
Quartos:
3
Banheiros:
2
Aquecimento:
Elétrico
Resfriamento:
Central Aérea
Eletrodomésticos:
Máquina de lavar louça, micro-ondas, fogão, geladeira
Mobiliado:
Não
Andar:
Azulejo Cerâmico, Laminado
Níveis:
Um
Características Adicionais
Subtipo de Imóvel:
Residência Unifamiliar
Estilo:
N/D
Ano de Construção:
1974
Tipo de Construção:
Bloquear
Vagas na Garagem:
Não
Vagas Cobertas:
N/D
Orientação da Fachada:
Norte
Animais Permitidos:
Não
Condição Especial:
Nenhum
Características Adicionais:
Outro
Características Adicionais 2:
N/D
Mapa
  • Endereço
    1340 BAKERSFIELD AVE
Fale com um profissional
Por Que Nos Escolher?
  • Comunicação e Transparência
  • Negociação Qualificada
  • Rede Profissional Robusta
  • Suporte Pós-Venda
Propriedades em Destaque

Imóveis relacionados

avt
Daniel Dourado
$ 327,000
avt
Daniel Dourado
$ 289,000
avt
Daniel Dourado
$ 399,900
avt
Daniel Dourado
$ 1,050,000
avt
Daniel Dourado
$ 299,500
avt
Daniel Dourado
$ 18,500,000
avt
Daniel Dourado
$ 624,990
avt
Daniel Dourado
$ 975,000