Active

$305,000

Características:
  • 2 Quartos
  • 2 Banheiros
  • 117 m²
Visão Geral
  • ID: MFRNS1082661
  • Quartos: 2
  • Banheiros: 2
  • Tamanho: 117 m²
Detalhes do Imóvel
Observações
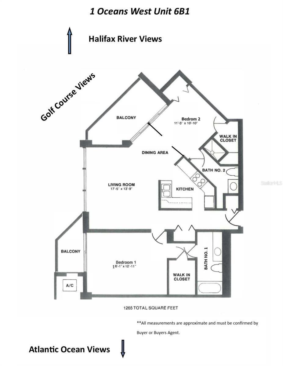
Redução de preços! Bem -vindo à sua nova vista espetacular! O vendedor pagou a taxa de avaliação atual para 2024! Este condomínio bonito e atualizado possui vistas desobstruídas ao sul e sudoeste do rio Halifax até a entrada de Ponce. E fica com vista para o seu campo de golfe par-3 privado, com vistas de pico-a-boo do Oceano Atlântico! Janelas e portas de tempestades do chão ao teto melhoram o pôr do sol noturno e o nascer do sol da manhã com duas varandas particulares para desfrutar. Esta unidade é oferecida totalmente mobiliada com decoração de bom gosto e moderna. Novos utensílios de cozinha, bancadas de Corian e banheiros atualizados fazem desta unidade um se destacar dos outros! Características da comunidade; Parque de cachorro, parque, playground e tênis. Carrinhos de golfe estão ok! As taxas do HOA incluem cabo, internet, impostos sobre a área comum, seguro, fundo de reserva, comodidades da associação externa de manutenção incluem cabo, clube, elevador, academia, campo de golfe, lavanderia (em todos os andares), manutenção, sauna, piscina, shuffleboard. Os animais de estimação são permitidos e # devem ser confirmados com HOA. A poucos passos de Lula M McElroy Park e da praia mais famosa do mundo, Daytona Beach. Venha e veja por si mesmo e faça deste o seu novo lar! Todas as informações são assumidas precisas, mas não garantidas. As medições são aproximadas. Os compradores e seus agentes devem verificar todas as informações que são importantes para eles
Considerações Financeiras
Preço:
$305,000
Taxa de HOA:
829.56
Valor do Imposto:
$3402
Preço por m²:
$241.11
Descrição Legal do Imposto:
UNIDADE 6B1 OCEANS WEST UM CONDOMÍNIO POR OU 2453 PG 929 MB 38 PGS 66 A 71 INC PER OU 4314 PG 1470 PER OU 6716 PG 0563 PER OU 8198 PG 1602
Características Exteriores
Tamanho do Lote:
1157882
Características do Lote:
N/D
Beira-mar:
Não
Vagas de Estacionamento:
N/D
Estacionamento:
N/D
Telhado:
Outro
Piscina:
Não
Características da Piscina:
No chão
Características Interiores
Quartos:
2
Banheiros:
2
Aquecimento:
Central, Elétrica
Resfriamento:
Central Aérea
Eletrodomésticos:
Máquina de lavar louça, descarte, micro-ondas, fogão, geladeira
Mobiliado:
Sim
Andar:
Azulejo, Madeira
Níveis:
Um
Características Adicionais
Subtipo de Imóvel:
Condomínio
Estilo:
N/D
Ano de Construção:
1983
Tipo de Construção:
Outro
Vagas na Garagem:
Sim
Vagas Cobertas:
N/D
Orientação da Fachada:
Sul
Animais Permitidos:
Não
Condição Especial:
Nenhum
Características Adicionais:
Varanda, Sauna
Características Adicionais 2:
Por favor, confirme os requisitos de aluguel com HOA.
Mapa
  • Endereço
    1 OCEANS WEST BLVD #6B1
Fale com um profissional
Por Que Nos Escolher?
  • Comunicação e Transparência
  • Negociação Qualificada
  • Rede Profissional Robusta
  • Suporte Pós-Venda
Propriedades em Destaque

Imóveis relacionados

avt
Daniel Dourado
$ 700,000
avt
Daniel Dourado
$ 625,000
img
  • Featured
  • Active
Condominium

120 HIBISCUS WOODS CT #3B

  • 2
  • 2
  • 98 m²
avt
Daniel Dourado
$ 200,000
avt
Daniel Dourado
$ 349,000
img
  • Featured
  • Active
Condominium

557 PINELLAS BAYWAY S #311

  • 3
  • 2
  • 215 m²
avt
Daniel Dourado
$ 765,000
img
  • Featured
  • Active
Condominium

10101 SAILWINDS BLVD S #203

  • 2
  • 2
  • 94 m²
avt
Daniel Dourado
$ 209,000
avt
Daniel Dourado
$ 499,000
avt
Daniel Dourado
$ 225,000
img
  • Featured
  • Active
Condominium

5554 METROWEST BLVD #4-310

  • 2
  • 2
  • 111 m²
avt
Daniel Dourado
$ 209,900
avt
Daniel Dourado
$ 1,250,000
avt
Daniel Dourado
$ 369,900
img
  • Featured
  • Active
Condominium

13828 TIMBERBROOKE DR #101

  • 3
  • 2
  • 107 m²
avt
Daniel Dourado
$ 249,900