Active

$540,000

Características:
  • Quartos
  • 0 Banheiros
  • 267 m²
Visão Geral
  • ID: MFRTB8305324
  • Quartos:
  • Banheiros: 0
  • Tamanho: 267 m²
Detalhes do Imóvel
Observações
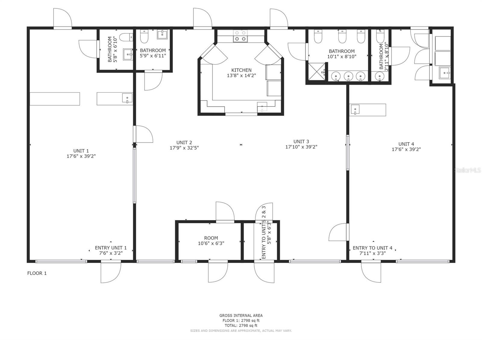
Cansado da inundação de localização dos negócios do Crystal River? Este edifício não conseguiu água dentro de Helene !!! Pare de reconstruir e desperdiçar seu dinheiro suado. Realize -se para um local no centro da cidade, sem as preocupações da inundação. Localizado nos arredores dos limites da cidade de Crystal River (impostos mais baixos), perto de Heritage Village, compras, restaurantes e passeios de barco. GNC zoneado com água pública e esgoto. O edifício 2880 pés quadrados, anteriormente operado como um centro de aprendizado pré -escolar. Pode ser facilmente convertido em 2 unidades únicas e 1 unidade dupla ou com apenas um pouco mais de esforço 4 unidades completamente separadas. Quintal cercado. Estacionamento de asfalto com 14 vagas de estacionamento. O edifício fica em 0,85 de um hectare, a listagem também inclui um lote adicional de 0,85 acres adjacente ao lado sul, para um total de 1,70 acres mol. O telhado foi feito em 2015. As janelas da moldura na frente foram substituídas por janelas de vinil e panela dupla. 2 novos HVACs foram instalados. Todas as portas traseiras externas, assim como portas internas, foram substituídas. Todos os banheiros foram substituídos por modelos de baixo fluxo.
Considerações Financeiras
Preço:
$540,000
Taxa de HOA:
N/D
Valor do Imposto:
$4645.42
Preço por m²:
$187.5
Descrição Legal do Imposto:
MUNICÍPIO DE CRYSTAL PARK PB 1 PG 2 LOTE 436 & N1/2 DO LOTE 434 E MUNICÍPIO DE CRYSTAL PARK LOTE 435 & S1/2 DO LOTE 434
Características Exteriores
Tamanho do Lote:
37000
Características do Lote:
FloodZone, Pavimentada
Beira-mar:
Não
Vagas de Estacionamento:
N/D
Estacionamento:
Vagas de Estacionamento - 13 a 18, Iluminadas
Telhado:
Telha
Piscina:
Não
Características da Piscina:
N/D
Características Interiores
Quartos:
Banheiros:
0
Aquecimento:
Bomba de calor
Resfriamento:
Ar central, sem duto
Eletrodomésticos:
N/D
Mobiliado:
Não
Andar:
Tapete, Vinil Luxo
Níveis:
N/D
Características Adicionais
Subtipo de Imóvel:
Negócios
Estilo:
N/D
Ano de Construção:
1991
Tipo de Construção:
Bloco, concreto, estuque
Vagas na Garagem:
Não
Vagas Cobertas:
N/D
Orientação da Fachada:
Leste
Animais Permitidos:
Não
Condição Especial:
Nenhum
Características Adicionais:
N/D
Características Adicionais 2:
N/D
Mapa
  • Endereço
    3370 N CITRUS AVE
Fale com um profissional
Por Que Nos Escolher?
  • Comunicação e Transparência
  • Negociação Qualificada
  • Rede Profissional Robusta
  • Suporte Pós-Venda
Propriedades em Destaque

Imóveis relacionados

avt
Daniel Dourado
$ 980,000
avt
Daniel Dourado
$ 225,000
avt
Daniel Dourado
$ 225,000
avt
Daniel Dourado
$ 500,000
avt
Daniel Dourado
$ 300,000
img
  • Featured
  • Active
Business

15050 NE US HIGHWAY 301

  • 0
  • 142 m²
avt
Daniel Dourado
$ 250,000
avt
Daniel Dourado
$ 675,000
avt
Daniel Dourado
$ 850,000
avt
Daniel Dourado
$ 750,000
avt
Daniel Dourado
$ 10,200,000
img
  • Featured
  • Active
Business

2222 E DR MARTIN LUTHER KING JR BLVD

  • 0
  • 267 m²
avt
Daniel Dourado
$ 525,000
img
  • Featured
  • Active
Business

3302 E DR MARTIN LUTHER KING JR BLVD

  • 0
  • 256 m²
avt
Daniel Dourado
$ 900,000