Active

$1,500,000

Características:
  • 5 Quartos
  • 5 Banheiros
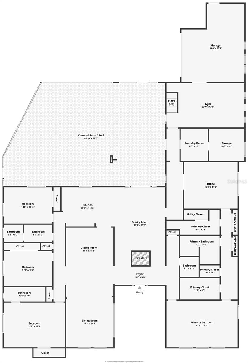
  • 432 m²
Visão Geral
  • ID: MFRTB8416699
  • Quartos: 5
  • Banheiros: 5
  • Tamanho: 432 m²
Detalhes do Imóvel
Observações
Estado de luxo excepcional em ¾ acre na prestigiada localização da Belleair Road, a apenas 15 minutos de Clearwater Beach e Belleair Beach, 10 minutos para o centro de Clearwater, 25 minutos para o centro de São Petersburgo, 30 minutos para o centro de Tampa e 25 minutos para o Aeroporto Internacional de Tampa. Perto de todas as lojas e restaurantes, este bairro muito seguro e altamente desejável não oferece restrições de aluguel - perfeitas para investimento ou vida familiar. Esta casa apresenta duas suítes master espaçosas, uma grande suíte de sogro com varanda privada e entrada separada, além de uma planta aberta ideal para entretenimento. A piscina de água salgada remodelada com gabinete tela cria um retiro externo perfeito. Desfrute de uma sala de arcade/jogo dedicada, garagem de 2 carros, garagem de 3 carros e estacionamento para jet skis ou motocicletas. Os recursos inteligentes modernos incluem termostatos Honeywell, bloqueios inteligentes, câmeras de segurança Arlo e um sistema de garagem inteligente. Destaques adicionais: Novo telhado (2020) • HVAC atualizado com termostatos inteligentes (2022) • Piscina de água salgada com acabamento e aquecedor Pebbletech (2021) • RECREVENDO DO CAGA DE POLA (2025) • Novo calhas e cerca de US $ 28k (2025) • Novo aquecedor de água (2021) • A forte história de renda do ar. Anteriormente de propriedade do boxeador do World Campeão Keith Thurman Jr., esse imóvel meticulosamente mantinha a propriedade de luxo, tecnologia inteligente e potencial de investimento no bairro mais procurado de Tampa Bay.
Considerações Financeiras
Preço:
$1,500,000
Taxa de HOA:
N/D
Valor do Imposto:
$15109
Preço por m²:
$322.51
Descrição Legal do Imposto:
Belleair grove 1st add lote 6
Características Exteriores
Tamanho do Lote:
32369
Características do Lote:
Canal de drenagem, no condado, paisagístico, perto de campo de golfe, lote grande de tamanho, calçada, pavimentada, não incorporada
Beira-mar:
Não
Vagas de Estacionamento:
N/D
Estacionamento:
Barco, garagem circular, coberta, garagem, abridor de porta de garagem, garagem rosta traseira, nível de solo, aberto, estacionamento
Telhado:
Agite, telha
Piscina:
Sim
Características da Piscina:
Gunite, aquecido, no solo, água salgada, gabinete de tela, azulejo
Características Interiores
Quartos:
5
Banheiros:
5
Aquecimento:
Central, Elétrica, Exaustor
Resfriamento:
Central Aérea
Eletrodomésticos:
Cooktop, lava-louças, secadora, micro-ondas, geladeira, lavadora, sistema de filtragem de água
Mobiliado:
Sim
Andar:
Azulejo Cerâmico, Madeira
Níveis:
Dois
Características Adicionais
Subtipo de Imóvel:
Residência Unifamiliar
Estilo:
N/D
Ano de Construção:
1970
Tipo de Construção:
Bloco, Estuque
Vagas na Garagem:
Sim
Vagas Cobertas:
N/D
Orientação da Fachada:
Sul
Animais Permitidos:
Não
Condição Especial:
Nenhum
Características Adicionais:
Varanda, Iluminação, Caixa de Correio Privada, Calhas de Chuva
Características Adicionais 2:
N/D
Mapa
  • Endereço
    1948 BELLEAIR RD
Fale com um profissional
Por Que Nos Escolher?
  • Comunicação e Transparência
  • Negociação Qualificada
  • Rede Profissional Robusta
  • Suporte Pós-Venda
Propriedades em Destaque

Imóveis relacionados

avt
Daniel Dourado
$ 285,000
avt
Daniel Dourado
$ 378,710
avt
Daniel Dourado
$ 549,000
avt
Daniel Dourado
$ 425,000
avt
Daniel Dourado
$ 595,000
avt
Daniel Dourado
$ 365,990
avt
Daniel Dourado
$ 675,000
avt
Daniel Dourado
$ 289,900
avt
Daniel Dourado
$ 302,900
avt
Daniel Dourado
$ 299,000