Active

$1,999,000

Características:
  • 4 Quartos
  • 4 Banheiros
  • 372 m²
Visão Geral
  • ID: MFRO6344192
  • Quartos: 4
  • Banheiros: 4
  • Tamanho: 372 m²
Detalhes do Imóvel
Observações
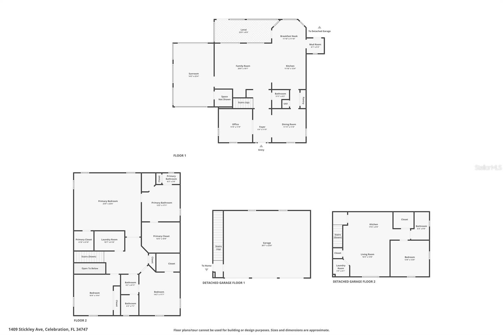
Bem -vindo para casa na elegância clássica do sul no cobiçado parque artesanal de comemoração. Descubra a arquitetura atemporal e o conforto moderno neste modelo de "Caldwell", impecavelmente mantidos, em um raro homesite de meio hectare que recua em uma preservação de águia protegida. O sol da manhã toma banho o vasto quintal expansivo e totalmente cercado - ideal para uma piscina futura, cozinha de verão ou retiro elegante no jardim - enquanto o paisagismo maduro garante privacidade e um cenário sereno natural. No interior, todos os detalhes falam de artesanato e cuidado. Pisos largos de madeira de 5 polegadas de 5 polegadas, tetos altos lisos, molduras de coroa, placas de interruptor de porcelana e persianas de plantações criam uma estética refinada por toda parte. O nível principal oferece espaços graciosos e divertidos, incluindo uma sala familiar cheia de sol, uma marquise de vidro e um escritório particular atrás das portas francesas. A cozinha gourmet possui armários de 42 polegadas, balcões de granito, utensílios de aço inoxidável, uma barra de café da manhã e um recanto alegre para refeições casuais. No andar de cima, a suíte dos proprietários é um santuário com dois armários-incluindo um armário de "dela" de grandes dimensões-e luxuosos carpete de lã esculpida. Quartos adicionais, uma lavanderia bem equipada e iluminação de grife completam o nível superior. Uma garagem de três carros é complementada por um apartamento destacado lindamente acabado, com sua própria cozinha, área de estar, quarto, banheiro e lavanderia-perfeita para hóspedes ou potencial de renda. Desde 2016, a residência se beneficiou de amplas aprimoramentos e atualizações atenciosas: um novo teto, quatro novas unidades de A/C, tinta interior e externa fresca, um aquecedor de água sem tanque para a casa de hóspedes, novos aparelhos de aço inoxidável (incluindo um combo de parede e um gabinete), um teto de designer, fanteados atualizados em toda a água, uma nova árvore. Concebido pela Disney como uma cidade modelo onde a natureza e a comunidade se misturam perfeitamente, a celebração é conhecida por suas pitorescas paisagens de ruas, parques à beira do lago e vibrante centro com compras de boutique, refeições requintadas e eventos durante todo o ano. Os moradores desfrutam de mais de 26 quilômetros de trilhas cênicas de caminhada e ciclismo, o renomado clube de golfe de celebração e acesso conveniente à I-4, SR-417, assistência médica de classe mundial e todas as atrações do Walt Disney World. O Artisan Park eleva esse estilo de vida com associação exclusiva ao The Artisan Club-oferecendo um restaurante e bar privado, piscina em estilo resort, centro de fitness de última geração e um grande clube para reuniões sociais. Uma oportunidade excepcional aguarda você, pois esta casa combina graça clássica do sul com o luxo moderno e as comodidades incomparáveis ​​do principal bairro da Celebration. Está realmente pronto para o comprador mais exigente que busca privacidade, sofisticação e um modo de vida célebre.
Considerações Financeiras
Preço:
$1,999,000
Taxa de HOA:
413.77
Valor do Imposto:
$7549.19
Preço por m²:
$498.5
Descrição Legal do Imposto:
Área de celebração 5 PB 15 PGs 44-98 Lote 131 19-25-28
Características Exteriores
Tamanho do Lote:
16683
Características do Lote:
Área de Conservação, Ajardinada, Nível, Lote Extragrande, Calçada, Pavimentada
Beira-mar:
Não
Vagas de Estacionamento:
N/D
Estacionamento:
Abridor de porta de garagem, garagem voltada traseira, rostos de garagem lateral, grande tamanho, pórtico
Telhado:
Telha
Piscina:
Não
Características da Piscina:
N/D
Características Interiores
Quartos:
4
Banheiros:
4
Aquecimento:
Central, Elétrica, Zoneada
Resfriamento:
Central Aérea
Eletrodomésticos:
Forno embutido, lava-louças, descarte, secadora, esquentador elétrico, exaustor, micro-ondas, fogão, exaustor, geladeira, lavadora
Mobiliado:
Não
Andar:
Carpete, azulejo de cerâmica, mármore, terrazzo, madeira
Níveis:
Dois
Características Adicionais
Subtipo de Imóvel:
Residência Unifamiliar
Estilo:
N/D
Ano de Construção:
2005
Tipo de Construção:
Bloco, estuque, quadro
Vagas na Garagem:
Sim
Vagas Cobertas:
N/D
Orientação da Fachada:
Oeste
Animais Permitidos:
Sim
Condição Especial:
Nenhum
Características Adicionais:
Iluminação, calhas de chuva, portas de correr, sprinklers medidos
Características Adicionais 2:
Consulte os acordos comunitários para restrições de arrendamento
Mapa
  • Endereço
    1409 STICKLEY AVE
Fale com um profissional
Por Que Nos Escolher?
  • Comunicação e Transparência
  • Negociação Qualificada
  • Rede Profissional Robusta
  • Suporte Pós-Venda
Propriedades em Destaque

Imóveis relacionados

avt
Daniel Dourado
$ 459,000
avt
Daniel Dourado
$ 259,900
avt
Daniel Dourado
$ 429,900
avt
Daniel Dourado
$ 399,000
avt
Daniel Dourado
$ 1,050,000
avt
Daniel Dourado
$ 549,900
avt
Daniel Dourado
$ 1,199,000
avt
Daniel Dourado
$ 343,000
avt
Daniel Dourado
$ 325,000