Active

$255,000

Características:
  • 5 Quartos
  • 3 Banheiros
  • 226 m²
Visão Geral
  • ID: MFRPR9115660
  • Quartos: 5
  • Banheiros: 3
  • Tamanho: 226 m²
Detalhes do Imóvel
Observações
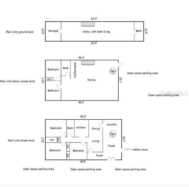
Residência espaçosa de 3 andares com excelente layout: 5 quartos no total. 3 banheiros completos. Residência de 3 andares: Primeiro nível: 3 quartos e 1 banheiro. Segundo nível: 2 quartos e 1 banheiro. Terceiro nível: 1 banheiro adicional e um espaço grande e flexível a ser usado de acordo com suas necessidades e imaginação. Localização privilegiada - Na bela paisagem de Quebrada Arriba e Culebras DeBajo, quilômetro 20.4 da cidade de Cayey. - Fazenda com aproximadamente 4.235 m² de terra. - cercado pela natureza, ar fresco e vistas espetaculares. - Perto de bons restaurantes e empresas locais. Na impressionante cidade de Cayey, onde você tem tudo o que precisa sem sair da área: - Shopping Centers com um cinema e uma variedade de lojas. - Uma ampla variedade de restaurantes e supermercados. - Escritórios médicos e hospitais. - Escolas e serviços essenciais Aproveite o campo com todas as comodidades. Esta residência combina a tranquilidade do ambiente natural com amplos espaços que você pode se adaptar ao seu estilo de vida. Cada membro da família pode ter seu próprio espaço, um refúgio de paz que nunca imaginou. Ele também representa uma excelente oportunidade de investimento ou o local ideal para desenvolver o negócio dos seus sonhos. Uma ótima oportunidade de investimento em Cayey, onde a natureza e a conveniência da vida moderna se reúnem em um só lugar!
Considerações Financeiras
Preço:
$255,000
Taxa de HOA:
N/D
Valor do Imposto:
$N/D
Preço por m²:
$104.55
Descrição Legal do Imposto:
N/D
Características Exteriores
Tamanho do Lote:
4235
Características do Lote:
N/D
Beira-mar:
Não
Vagas de Estacionamento:
N/D
Estacionamento:
N/D
Telhado:
Concreto
Piscina:
Não
Características da Piscina:
N/D
Características Interiores
Quartos:
5
Banheiros:
3
Aquecimento:
Nenhum
Resfriamento:
Nenhum
Eletrodomésticos:
Aquecedor elétrico de água, fogão, geladeira
Mobiliado:
Não
Andar:
Concreto
Níveis:
Três ou mais
Características Adicionais
Subtipo de Imóvel:
Residência Unifamiliar
Estilo:
N/D
Ano de Construção:
1980
Tipo de Construção:
Concreto
Vagas na Garagem:
Não
Vagas Cobertas:
N/D
Orientação da Fachada:
Sul
Animais Permitidos:
Não
Condição Especial:
Nenhum
Características Adicionais:
Varanda, Pátio, Arrecadação
Características Adicionais 2:
N/D
Mapa
  • Endereço
    Sr 15 km 20.4 QUEBRADA ARRIBA AND CULEBRAS DEBAJO
Fale com um profissional
Por Que Nos Escolher?
  • Comunicação e Transparência
  • Negociação Qualificada
  • Rede Profissional Robusta
  • Suporte Pós-Venda
Propriedades em Destaque

Imóveis relacionados

avt
Daniel Dourado
$ 385,000
avt
Daniel Dourado
$ 365,000
avt
Daniel Dourado
$ 355,000
avt
Daniel Dourado
$ 389,000
avt
Daniel Dourado
$ 325,000
avt
Daniel Dourado
$ 289,000
avt
Daniel Dourado
$ 1,489,900
avt
Daniel Dourado
$ 749,000
avt
Daniel Dourado
$ 240,000
avt
Daniel Dourado
$ 225,000
avt
Daniel Dourado
$ 215,000