Active

$369,900

Características:
  • 3 Quartos
  • 2 Banheiros
  • 112 m²
Visão Geral
  • ID: MFRPR9116963
  • Quartos: 3
  • Banheiros: 2
  • Tamanho: 112 m²
Detalhes do Imóvel
Observações
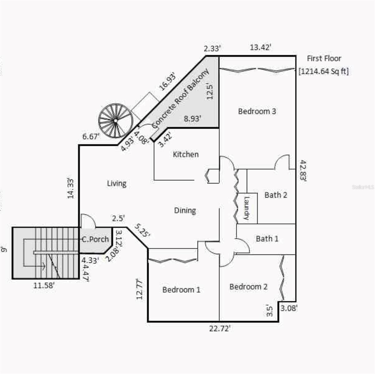
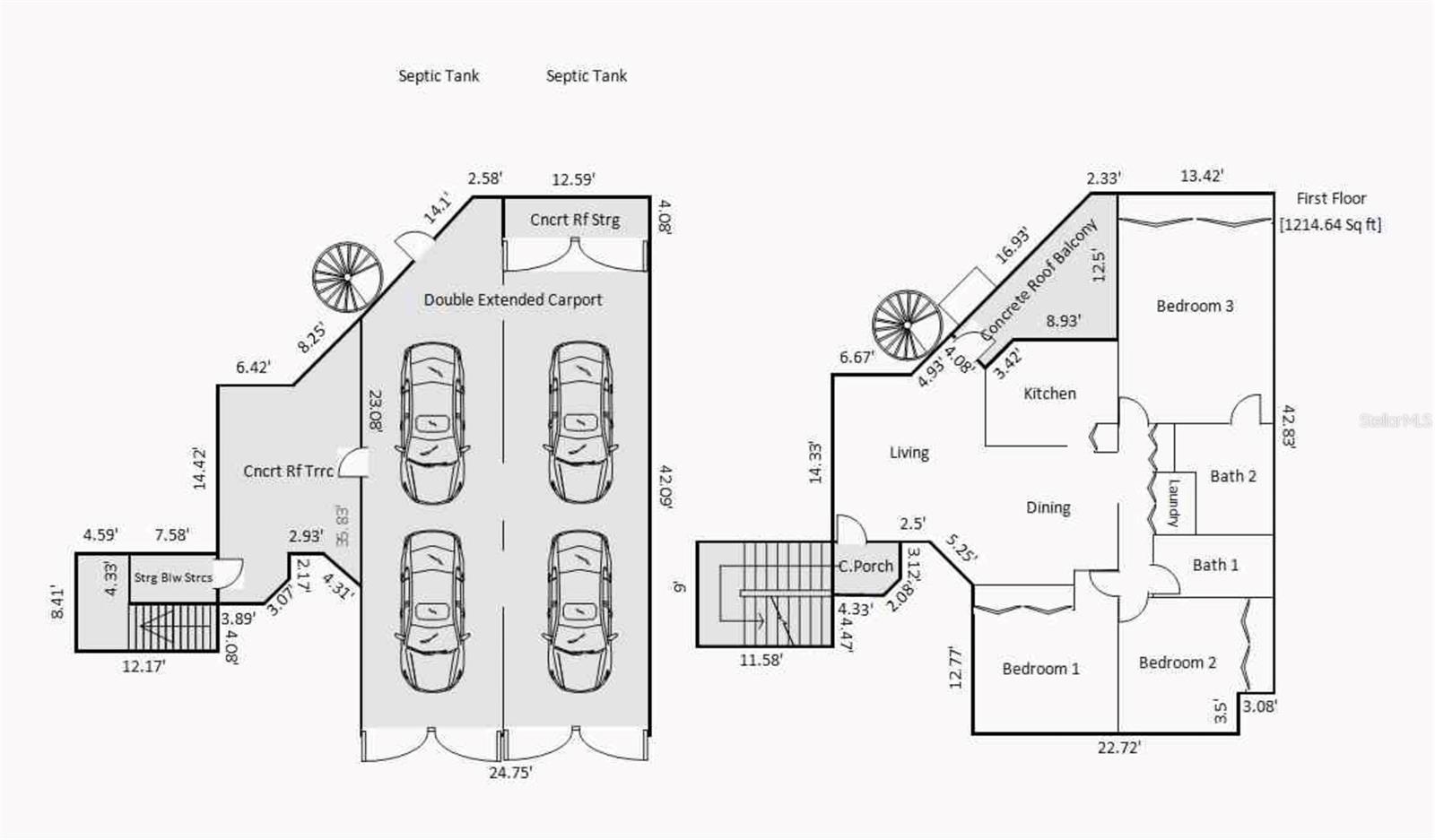
Residência unifamiliar de dois andares localizada no condomínio fechado Bello Horizonte Development em Cabo Rojo, Porto Rico. Esta propriedade oferece uma combinação harmoniosa de conforto, privacidade e conveniência numa das áreas residenciais mais desejadas da costa sudoeste da ilha. A casa está implantada em um lote interno de 589 metros quadrados, com configuração retangular e topografia plana, com construção em concreto e área bruta habitacional de aproximadamente 1.215 pés quadrados. Projetada para uma vida tropical, a casa inclui seis ambientes, três quartos e dois banheiros completos, oferecendo um layout confortável e funcional. O interior apresenta piso cerâmico, paredes de concreto e acabamentos modernos em todas as áreas de estar, jantar e cozinha. Cada espaço apresenta condições médias a boas, refletindo manutenção adequada e sinais normais de desgaste. A umidade foi observada em áreas limitadas com um custo mínimo estimado para cura de aproximadamente US$ 1.000. As comodidades ao ar livre melhoram o apelo e a funcionalidade da propriedade, incluindo um alpendre, varanda, garagem dupla estendida com espaço para até quatro veículos, duas unidades de armazenamento de concreto, um espaçoso terraço de concreto e áreas pavimentadas cercadas. A casa também inclui uma escada em espiral que leva à cobertura, proporcionando vistas ao ar livre do entorno residencial. Um gerador a diesel está localizado no local, mas é considerado propriedade pessoal e excluído da avaliação. O local está localizado na Zona de Inundação X (Mapa FEMA 72000C1545J, datado de 18/11/2009), o que significa que está fora da Área Especial de Risco de Inundação. O zoneamento é classificado como RT-I (Residencial Turístico Intermediário), permitindo uma ampla gama de usos residenciais e representando excelente potencial tanto para ocupação primária como para investimento de longo prazo. Os serviços públicos incluem PREPA para eletricidade e PRASA para água, com sistema de fossa séptica privada localizado na parte traseira da propriedade. O avaliador observa uma suposição extraordinária de que a fossa séptica está em conformidade com os códigos de construção e ambientais aplicáveis. O Empreendimento Bello Horizonte é um bairro tranquilo e com acesso controlado, com estradas asfaltadas, calçadas de concreto, meio-fio e sarjetas. A área mantém uma taxa de crescimento estável e oferta e procura equilibradas no seu mercado imobiliário, com prazos típicos de comercialização entre 3 a 6 meses. As comodidades próximas incluem escolas, supermercados, estações de serviço, restaurantes e áreas de lazer. O acesso à principal rodovia regional PR-307 oferece fácil conectividade ao centro de Cabo Rojo, à praia de Boquerón e às pitorescas rotas costeiras que levam a Joyuda e El Combate. Os dados de mercado reflectem uma forte estabilidade residencial neste sector. As vendas comparáveis ​​em empreendimentos semelhantes variaram entre US$ 335.000 e US$ 420.000, apoiando uma conclusão de valor de mercado de US$ 364.000 em 27 de agosto de 2025. A propriedade estava ocupada por inquilinos no momento da inspeção, gerando uma receita de aluguel de aproximadamente US$ 650 por mês (serviços públicos não incluídos). Esta propriedade representa uma oportunidade sólida de possuir uma casa bem conservada em um dos condomínios fechados mais procurados de Cabo Rojo - ideal para quem procura um ambiente residencial tranquilo perto das mais belas praias, reservas naturais e estilo de vida costeiro vibrante de Porto Rico.
Considerações Financeiras
Preço:
$369,900
Taxa de HOA:
125
Valor do Imposto:
$N/D
Preço por m²:
$304.44
Descrição Legal do Imposto:
N/D
Características Exteriores
Tamanho do Lote:
6339
Características do Lote:
N/D
Beira-mar:
Não
Vagas de Estacionamento:
N/D
Estacionamento:
N/D
Telhado:
Concreto
Piscina:
Não
Características da Piscina:
N/D
Características Interiores
Quartos:
3
Banheiros:
2
Aquecimento:
Nenhum
Resfriamento:
Nenhum
Eletrodomésticos:
Nenhum
Mobiliado:
Não
Andar:
Azulejo Cerâmico
Níveis:
Dois
Características Adicionais
Subtipo de Imóvel:
Residência Unifamiliar
Estilo:
N/D
Ano de Construção:
1985
Tipo de Construção:
Concreto
Vagas na Garagem:
Sim
Vagas Cobertas:
N/D
Orientação da Fachada:
Oeste
Animais Permitidos:
Não
Condição Especial:
Nenhum
Características Adicionais:
Outro
Características Adicionais 2:
N/D
Mapa
  • Endereço
    SR-307 KM-7 URB BELLO HORIZONTE #LOT 11
Fale com um profissional
Por Que Nos Escolher?
  • Comunicação e Transparência
  • Negociação Qualificada
  • Rede Profissional Robusta
  • Suporte Pós-Venda
Propriedades em Destaque

Imóveis relacionados

avt
Daniel Dourado
$ 299,900
avt
Daniel Dourado
$ 209,900
avt
Daniel Dourado
$ 254,000
avt
Daniel Dourado
$ 290,000
avt
Daniel Dourado
$ 889,000
avt
Daniel Dourado
$ 264,000
avt
Daniel Dourado
$ 415,000
avt
Daniel Dourado
$ 370,000
avt
Daniel Dourado
$ 495,000
avt
Daniel Dourado
$ 450,000