Active

$299,990

Características:
  • 3 Quartos
  • 2 Banheiros
  • 149 m²
Visão Geral
  • ID: MFRFC312855
  • Quartos: 3
  • Banheiros: 2
  • Tamanho: 149 m²
Detalhes do Imóvel
Observações
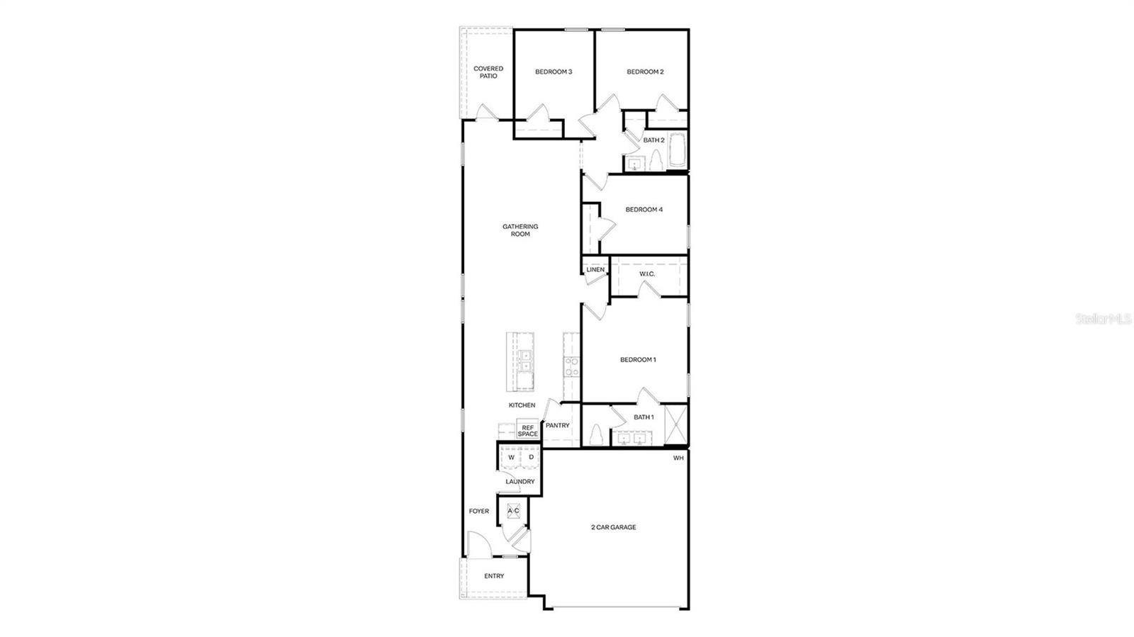
Em construção. Bem-vindo à Grand Reserve, uma comunidade de campos de golfe públicos, esta casa tem a planta Harper, 4 quartos e 2 banheiros com a quantidade certa de espaço. Ótimo terreno de esquina com garagem para 2 carros. Aproveite o conforto e a eficiência de cozinhar a gás e de um aquecedor de água sem tanque a gás para obter água quente infinita - recursos que você não encontrará em novas comunidades próximas. Suba no seu carrinho de golfe e vá até o centro de comodidades em estilo resort com piscina, academia, quadras de pickleball e muito mais - tudo com taxas acessíveis e um preço imbatível para a região.
Considerações Financeiras
Preço:
$299,990
Taxa de HOA:
56
Valor do Imposto:
$0
Preço por m²:
$186.44
Descrição Legal do Imposto:
Grand Reserve Fase 5 MB 42 PG 89 Lote 305
Características Exteriores
Tamanho do Lote:
9389
Características do Lote:
N/D
Beira-mar:
Não
Vagas de Estacionamento:
N/D
Estacionamento:
N/D
Telhado:
Telha
Piscina:
Não
Características da Piscina:
Outro
Características Interiores
Quartos:
3
Banheiros:
2
Aquecimento:
Central, Gás Natural
Resfriamento:
Central Aérea
Eletrodomésticos:
Máquina de lavar louça, descarte, micro-ondas, fogão
Mobiliado:
Sim
Andar:
Carpete, Linóleo, Outros, Vinil
Níveis:
Um
Características Adicionais
Subtipo de Imóvel:
Residência Unifamiliar
Estilo:
N/D
Ano de Construção:
2025
Tipo de Construção:
Quadro
Vagas na Garagem:
Sim
Vagas Cobertas:
N/D
Orientação da Fachada:
Sudeste
Animais Permitidos:
Sim
Condição Especial:
Nenhum
Características Adicionais:
Outro
Características Adicionais 2:
N/D
Mapa
  • Endereço
    1 MULLIGAN WAY
Fale com um profissional
Por Que Nos Escolher?
  • Comunicação e Transparência
  • Negociação Qualificada
  • Rede Profissional Robusta
  • Suporte Pós-Venda
Propriedades em Destaque

Imóveis relacionados

avt
Daniel Dourado
$ 204,900
avt
Daniel Dourado
$ 648,000
avt
Daniel Dourado
$ 324,900
avt
Daniel Dourado
$ 372,000
avt
Daniel Dourado
$ 415,000
avt
Daniel Dourado
$ 375,000
avt
Daniel Dourado
$ 548,000
avt
Daniel Dourado
$ 410,000
avt
Daniel Dourado
$ 390,000
avt
Daniel Dourado
$ 515,000