Active

$547,400

Características:
  • 3 Quartos
  • 2 Banheiros
  • 170 m²
Visão Geral
  • ID: MFRFC309279
  • Quartos: 3
  • Banheiros: 2
  • Tamanho: 170 m²
Detalhes do Imóvel
Observações
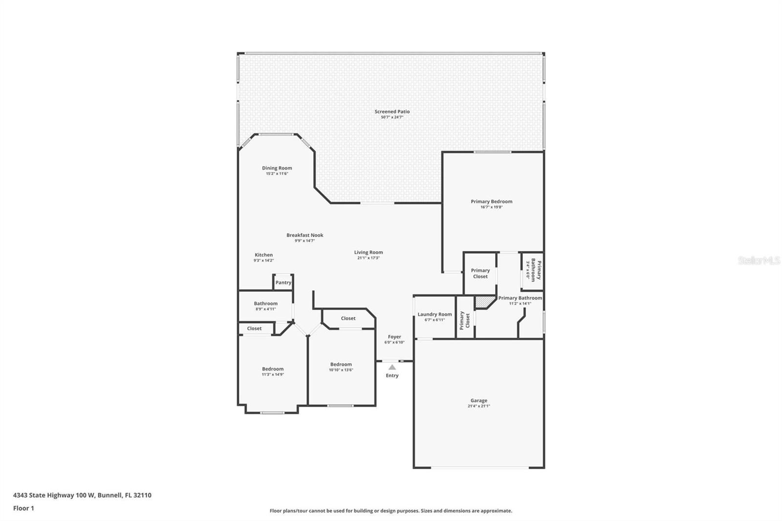
Cace, pesque ou atire em sua propriedade privada de 6 acres! Descubra a Essência da Elegância Rural! Bem-vindo ao retiro dos seus sonhos, onde a vida na cidade e no campo convergem perfeitamente. Situada em amplos 5,8 acres, esta deslumbrante casa construída pela Seagate, construída em 2017, oferece a combinação perfeita de espaço e conforto moderno. Uma residência de bloco sólido com três quartos espaçosos e dois banheiros. O coração da casa possui uma planta aberta, acentuada por portas francesas que levam você a um vasto pátio coberto - ideal para entreter ou simplesmente desfrutar do ambiente sereno. Seu oásis ao ar livre inclui uma área cercada segura, perfeita para animais de estimação e crianças brincarem livremente. Experimente o luxo de um sistema de água privado, completo com uma configuração de osmose reversa de última geração para toda a casa, disjuntor de ferro e condicionador de água. Cultive seu polegar verde com um jardim estabelecido e utilize o galpão conveniente para abrigar seu sistema de água e ferramentas de jardinagem. Esta propriedade única é um achado raro para quem procura espaço, tranquilidade e acessibilidade às conveniências modernas. Não perca a chance de abraçar um estilo de vida repleto de oportunidades e belezas naturais! Há um pequeno lago nos fundos da propriedade e os vendedores acabaram de construir uma pequena berma de tiro. Zoneado Agrícola, você pode ter cavalos, ou qualquer outro gado vivo. Muito espaço para construir um celeiro. VENDEDORES MOTIVADOS
Considerações Financeiras
Preço:
$547,400
Taxa de HOA:
N/D
Valor do Imposto:
$3407
Preço por m²:
$297.82
Descrição Legal do Imposto:
Lote 16, Campbell Ridge Estates, uma replata, de acordo com o seu Plat, conforme registrado no Livro Plat 34, páginas 50 e 51, dos registros públicos do Condado de Flagler, Flórida
Características Exteriores
Tamanho do Lote:
252728
Características do Lote:
N/D
Beira-mar:
Não
Vagas de Estacionamento:
N/D
Estacionamento:
N/D
Telhado:
Telha
Piscina:
Não
Características da Piscina:
N/D
Características Interiores
Quartos:
3
Banheiros:
2
Aquecimento:
Central, Elétrica, Bomba de Calor
Resfriamento:
Central Aérea
Eletrodomésticos:
Máquina de lavar louça, aquecedor elétrico de água, micro-ondas, fogão, geladeira
Mobiliado:
Não
Andar:
Tapete, Azulejo Cerâmico
Níveis:
Um
Características Adicionais
Subtipo de Imóvel:
Residência Unifamiliar
Estilo:
N/D
Ano de Construção:
2017
Tipo de Construção:
Bloquear
Vagas na Garagem:
Sim
Vagas Cobertas:
N/D
Orientação da Fachada:
Norte
Animais Permitidos:
Não
Condição Especial:
Nenhum
Características Adicionais:
Jardim, Outro, Caixa de Correio Privada
Características Adicionais 2:
N/D
Mapa
  • Endereço
    4343 W STATE HIGHWAY 100
Fale com um profissional
Por Que Nos Escolher?
  • Comunicação e Transparência
  • Negociação Qualificada
  • Rede Profissional Robusta
  • Suporte Pós-Venda
Propriedades em Destaque

Imóveis relacionados

avt
Daniel Dourado
$ 380,850
avt
Daniel Dourado
$ 379,990
avt
Daniel Dourado
$ 2,750,000
avt
Daniel Dourado
$ 328,990
avt
Daniel Dourado
$ 495,000
avt
Daniel Dourado
$ 249,900
avt
Daniel Dourado
$ 429,900
avt
Daniel Dourado
$ 269,900
avt
Daniel Dourado
$ 265,000
avt
Daniel Dourado
$ 569,000