Active

$770,000

Características:
  • 3 Quartos
  • 3 Banheiros
  • 218 m²
Visão Geral
  • ID: MFRA4678955
  • Quartos: 3
  • Banheiros: 3
  • Tamanho: 218 m²
Detalhes do Imóvel
Observações
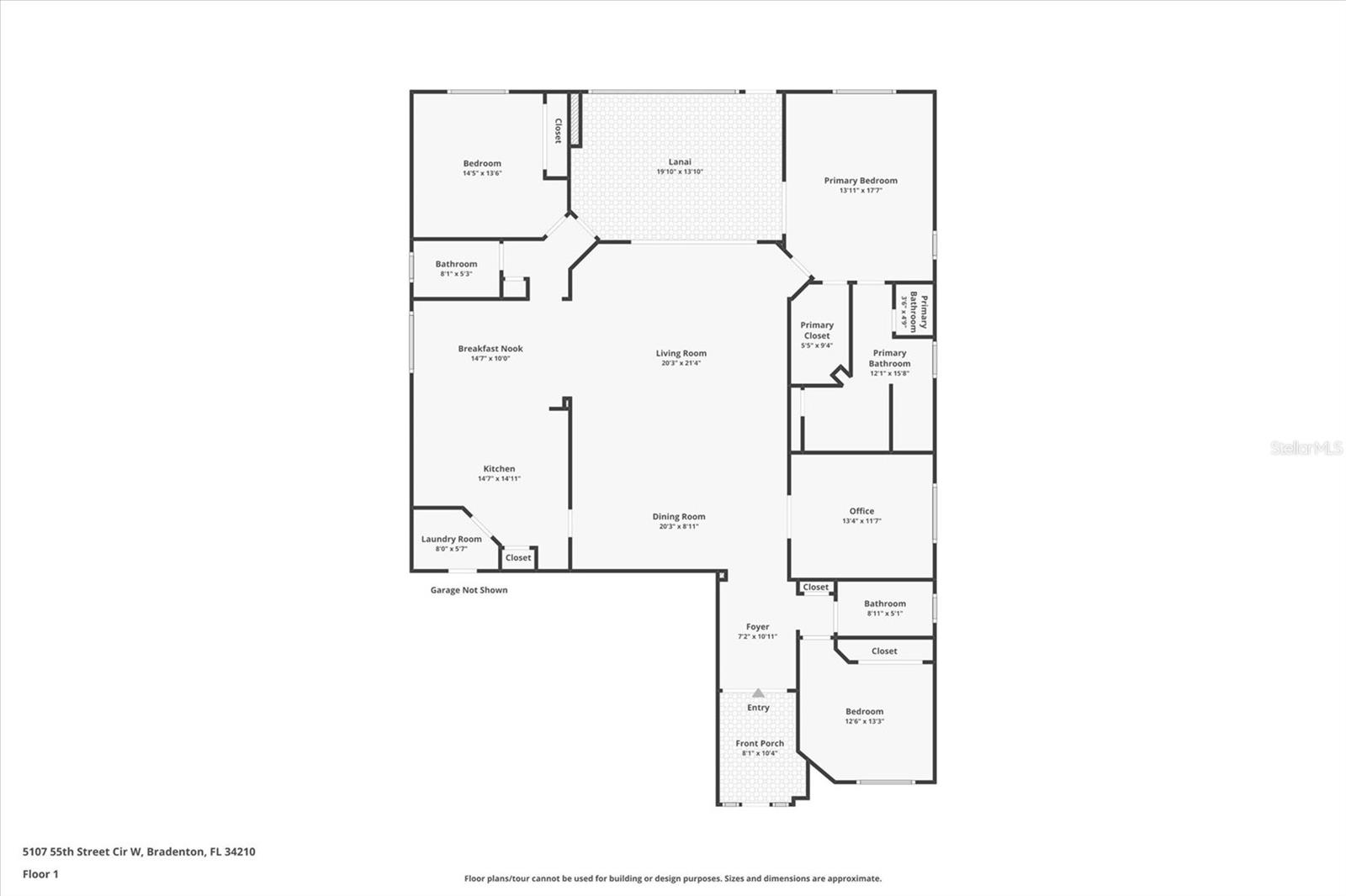
Bem-vindo a esta residência de 3 quartos e 3 banheiros, sala de jantar formal e copa localizada em Estates at Glenn Lakes. Planta de divisão de quartos com quartos posicionados em cantos separados da casa e um layout central de sala excelente. Área total de aproximadamente 2.348 pés quadrados. As principais melhorias e atualizações incluem piso totalmente novo (2023), cozinha remodelada com novos eletrodomésticos (2023), novo pátio pavimentado (2023), novo abridor de porta de garagem (2023) e ventiladores de teto e iluminação atualizados. Um sistema de filtragem de água para toda a casa e isolamento de controle de pragas do sótão qualificado pela Energy Star foram adicionados em outubro de 2024. O exterior da casa foi pintado recentemente em junho de 2025. O banheiro principal foi atualizado em setembro de 2025 com um grande box amplo, chuveiro sem porta com bancada embutida. Os recursos de furacão e energia incluem janelas de impacto com classificação Miami-Dade, portas da frente e venezianas de garagem, e uma veneziana elétrica retrátil na varanda. A casa está equipada com um gerador movido a gás, apoiado por um tanque de propano subterrâneo de 250 galões. Os recursos adicionais incluem um telhado mais recente (2015), sistema de ar condicionado (2020), aquecedor de água (2018), entrada frontal e varanda traseira com tela e iluminação externa em plantadores. A parte traseira da propriedade tem vista para um lago com vista parcial para o campo de golfe. A garagem para 3 carros inclui piso de epóxi, armários de armazenamento adicionais e uma calçada pavimentada instalada. Os eletrodomésticos incluem uma geladeira/freezer LG 2023 de porta dupla e uma lavadora e secadora LG 2023. The Estates at Glenn Lakes é uma comunidade com escritura restrita. A taxa HOA mensal inclui manutenção do gramado e irrigação. Parque comunitário localizado nas proximidades. Acesso conveniente às praias, aeroporto SRQ, centro da cidade e Academia IMG.
Considerações Financeiras
Preço:
$770,000
Taxa de HOA:
209
Valor do Imposto:
$7195
Preço por m²:
$327.94
Descrição Legal do Imposto:
LOTE 39 BLK M GLENN LAKES FASE 6 PI#51885.6995/9
Características Exteriores
Tamanho do Lote:
8873
Características do Lote:
No condado, calçada
Beira-mar:
Não
Vagas de Estacionamento:
N/D
Estacionamento:
Entrada de automóveis, abridor de porta de garagem
Telhado:
Telha
Piscina:
Não
Características da Piscina:
N/D
Características Interiores
Quartos:
3
Banheiros:
3
Aquecimento:
Central, Elétrica
Resfriamento:
Central Aérea
Eletrodomésticos:
Descarte, secadora, micro-ondas, fogão, geladeira, lavadora
Mobiliado:
Sim
Andar:
Azulejo Cerâmico, Vinil
Níveis:
Um
Características Adicionais
Subtipo de Imóvel:
Residência Unifamiliar
Estilo:
N/D
Ano de Construção:
2000
Tipo de Construção:
Bloco, Estuque
Vagas na Garagem:
Sim
Vagas Cobertas:
N/D
Orientação da Fachada:
Sudoeste
Animais Permitidos:
Não
Condição Especial:
Nenhum
Características Adicionais:
Calçada, portas de correr
Características Adicionais 2:
Consulte os documentos da comunidade para obter informações sobre restrições/diretrizes de locação
Mapa
  • Endereço
    5107 55TH STREET CIR W
Fale com um profissional
Por Que Nos Escolher?
  • Comunicação e Transparência
  • Negociação Qualificada
  • Rede Profissional Robusta
  • Suporte Pós-Venda
Propriedades em Destaque

Imóveis relacionados

avt
Daniel Dourado
$ 2,500,000
avt
Daniel Dourado
$ 525,000
avt
Daniel Dourado
$ 2,195,000
avt
Daniel Dourado
$ 279,500
avt
Daniel Dourado
$ 529,000
avt
Daniel Dourado
$ 719,000
avt
Daniel Dourado
$ 389,000
avt
Daniel Dourado
$ 879,000
avt
Daniel Dourado
$ 285,000