Active

$405,000

Características:
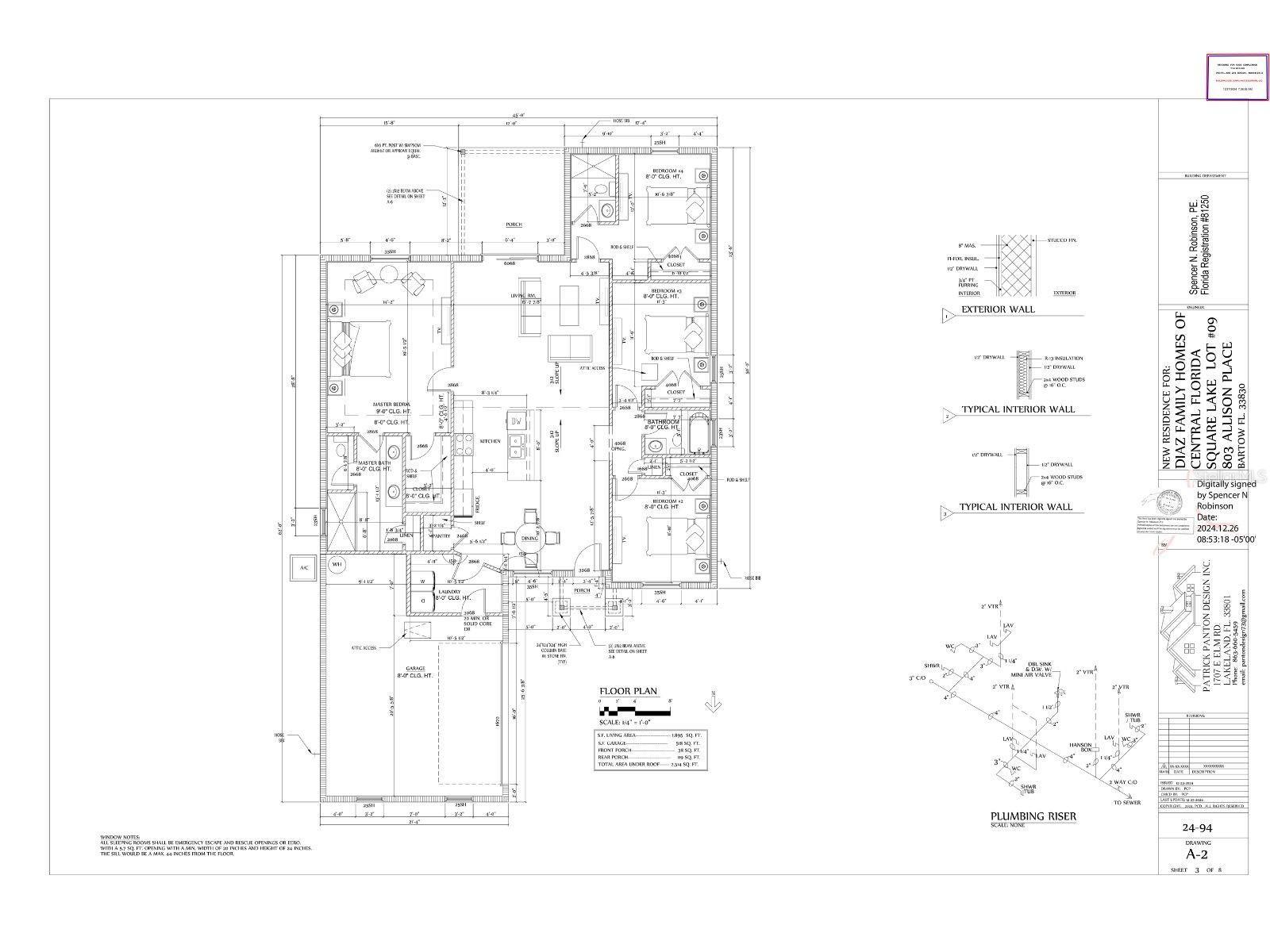
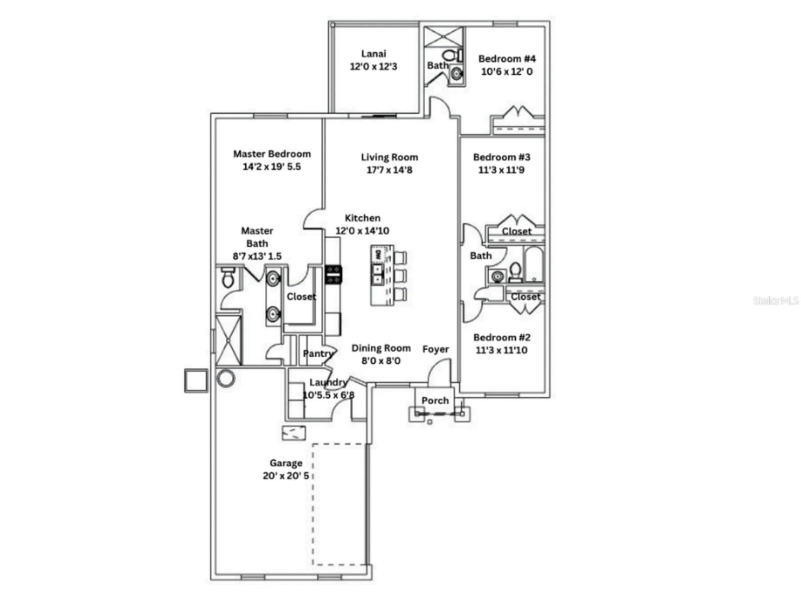
  • 4 Quartos
  • 3 Banheiros
  • 176 m²
Visão Geral
  • ID: MFRL4952109
  • Quartos: 4
  • Banheiros: 3
  • Tamanho: 176 m²
Detalhes do Imóvel
Observações
Em construção. Construção acabou de concluir! Confira esta linda casa nova para venda! Sua nova casa espera você! Confira esta bela casa de 2025 para venda! Localizado dentro de uma comunidade de lago fechado privado e tranquilo! Estima -se que a construção seja concluída dentro de 2 meses! Esta casa personalizada de qualidade tem 4 quartos com 3 banheiros completos. Tudo está sendo construído com atenção especial aos detalhes e apresenta muitas atualizações, incluindo detalhes externos de pedra, bancadas de quartzo, acabamentos atualizados, madeira personalizada e muito mais. A planta aberta é um incrível conceito de sala grande, com tetos altos que misturam perfeitamente as áreas de cozinha, viva e jantar perfeitas para divertir familiares e amigos. A cozinha moderna é o coração da casa e realmente o deleite de um chef, completo com armários lindos, balcões de granito, backsplash de telha, aparelhos inoxidáveis, ilha com assentos de bar e uma despensa de armário com amplo armazenamento. Você vai adorar a despensa de closet! O luxuoso banheiro da suíte principal é outro destaque deste lar incrível. Você vai adorar as muitas janelas, closet e um banheiro privativo privado. O lindo banheiro principal terá ladrilhos impressionantes, vaidades duplas, um chuveiro moderno e um armário de linho. O plano de quarto dividido tem três quartos e mais 2 banheiros do outro lado da casa. O ao ar livre que vive aqui é fantástico! Desfrute de sentar na sombra da sua varanda coberta. Esta casa não está em inundação, zona X, portanto, não é necessário seguro contra inundações. A localização é ótima! Jantar e fazer compras estão a poucos minutos no encantador centro de Bartow. Você também apreciará a conveniência entre Tampa e Orlando. Fica apenas 80 quilômetros para Walt Disney World, 65 milhas até o aeroporto de Orlando, 48 milhas para o aeroporto de Tampa e menos de uma hora e meia para várias praias da Flórida. Tantos recursos excelentes sobre esta adorável casa! Esta casa é exatamente o que você está procurando! Por que comprar uma casa de revenda, quando pode ter uma bela casa nova com uma garantia a um ótimo preço! Ligue hoje para obter mais detalhes e configure sua exibição particular. *** Use o credor preferido do construtor e obtenha assistência / taxa de fechamento de custos, deve ligar para Jamie Brown, Compass hipoteca ***
Considerações Financeiras
Preço:
$405,000
Taxa de HOA:
850
Valor do Imposto:
$828.68
Preço por m²:
$213.72
Descrição Legal do Imposto:
Square Lake Fase Quatro PB 193 PG 10-11 Lote 9
Características Exteriores
Tamanho do Lote:
9261
Características do Lote:
N/D
Beira-mar:
Não
Vagas de Estacionamento:
N/D
Estacionamento:
Garagem voltada para o lado
Telhado:
Telha
Piscina:
Não
Características da Piscina:
N/D
Características Interiores
Quartos:
4
Banheiros:
3
Aquecimento:
Central
Resfriamento:
Central Aérea
Eletrodomésticos:
Máquina de lavar louça, descarte, aquecedor elétrico de água, micro-ondas, fogão, geladeira
Mobiliado:
Não
Andar:
Tapete, Vinil Luxo
Níveis:
Um
Características Adicionais
Subtipo de Imóvel:
Residência Unifamiliar
Estilo:
N/D
Ano de Construção:
2025
Tipo de Construção:
Bloco, Estuque
Vagas na Garagem:
Sim
Vagas Cobertas:
N/D
Orientação da Fachada:
Noroeste
Animais Permitidos:
Não
Condição Especial:
Nenhum
Características Adicionais:
Iluminação
Características Adicionais 2:
"Compradores para verificar restrições com o HOA diretamente"
Mapa
  • Endereço
    803 ALLISON PLACE
Fale com um profissional
Por Que Nos Escolher?
  • Comunicação e Transparência
  • Negociação Qualificada
  • Rede Profissional Robusta
  • Suporte Pós-Venda
Propriedades em Destaque

Imóveis relacionados

avt
Daniel Dourado
$ 379,990
avt
Daniel Dourado
$ 364,990
avt
Daniel Dourado
$ 549,900
avt
Daniel Dourado
$ 585,000
avt
Daniel Dourado
$ 209,900