Active

$999,900

Características:
  • 12 Quartos
  • 12 Banheiros
  • 594 m²
Visão Geral
  • ID: MFRL4949686
  • Quartos: 12
  • Banheiros: 12
  • Tamanho: 594 m²
Detalhes do Imóvel
Observações
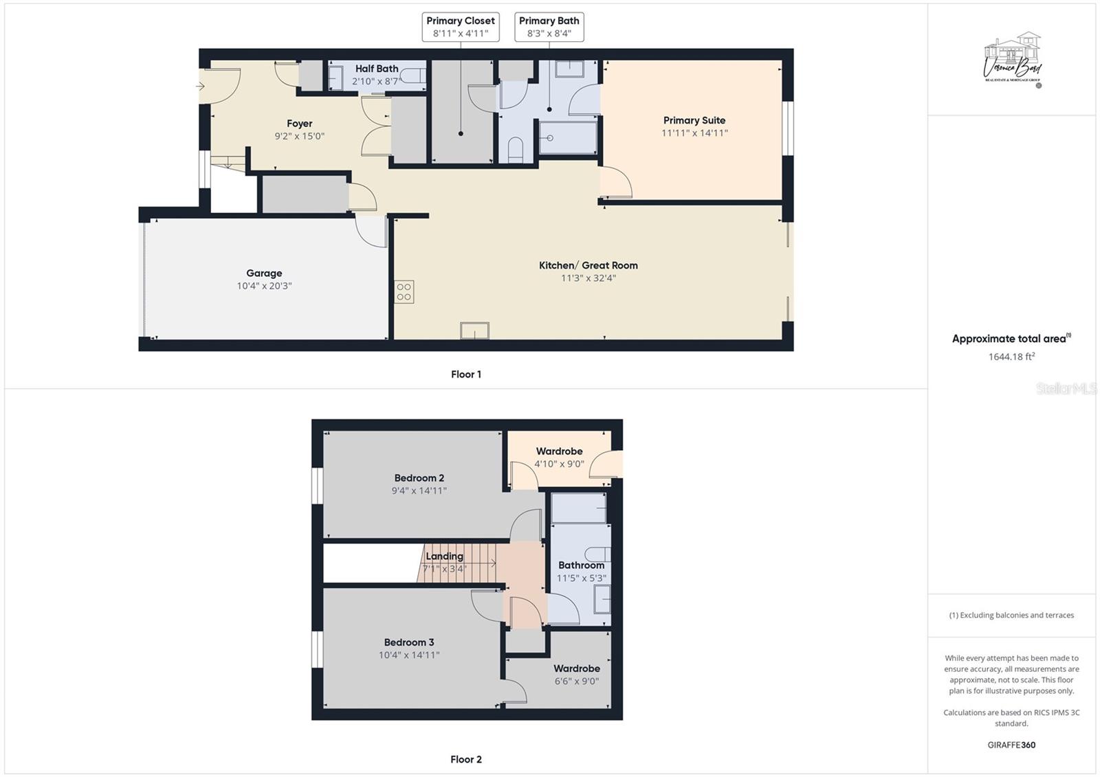
MOVIMENTE-SE PRONTO!! Aproveite esta incrível oportunidade com um novo quadruplex de construção em Bartow! Cada unidade oferece 1.600 pés quadrados aquecidos, com 3 quartos, 2 banheiros, garagem para um carro e varandas na frente e nos fundos - perfeitas para relaxar ao ar livre. A suíte principal está convenientemente localizada no primeiro andar, agregando facilidade e conforto à experiência de vida. Se você planeja morar em uma unidade e alugar as outras ou alugar as quatro, a flexibilidade é sua. Cada unidade apresenta acabamentos modernos, muita luz natural e uma planta aberta projetada para uma vida confortável. Com potencial de aluguel de US$ 2.200 por mês por unidade, esta propriedade é um excelente investimento em uma comunidade em crescimento. Não perca esta fantástica oportunidade para proprietários e investidores!
Considerações Financeiras
Preço:
$999,900
Taxa de HOA:
N/D
Valor do Imposto:
$393.56
Preço por m²:
$156.23
Descrição Legal do Imposto:
HIGHLAWN ADICIONAR PB 1 PG 111 LOTES 13 W 10 FT E 14
Características Exteriores
Tamanho do Lote:
5998
Características do Lote:
N/D
Beira-mar:
Não
Vagas de Estacionamento:
N/D
Estacionamento:
N/D
Telhado:
Telha
Piscina:
Não
Características da Piscina:
N/D
Características Interiores
Quartos:
12
Banheiros:
12
Aquecimento:
Central
Resfriamento:
Central Aérea
Eletrodomésticos:
Máquina de lavar louça, micro-ondas, fogão
Mobiliado:
Sim
Andar:
Tapete, Vinil Luxo
Níveis:
Dois
Características Adicionais
Subtipo de Imóvel:
Moradia
Estilo:
N/D
Ano de Construção:
2024
Tipo de Construção:
Bloco, moldura de madeira
Vagas na Garagem:
Sim
Vagas Cobertas:
N/D
Orientação da Fachada:
Sul
Animais Permitidos:
Sim
Condição Especial:
Nenhum
Características Adicionais:
Iluminação
Características Adicionais 2:
N/D
Mapa
  • Endereço
    1225 E MAIN ST
Fale com um profissional
Por Que Nos Escolher?
  • Comunicação e Transparência
  • Negociação Qualificada
  • Rede Profissional Robusta
  • Suporte Pós-Venda
Propriedades em Destaque

Imóveis relacionados

img
  • Featured
  • Active
Townhouse

13295 PEACEFUL MELODY DR

  • 3
  • 3
  • 159 m²
avt
Daniel Dourado
$ 439,990
avt
Daniel Dourado
$ 315,000
img
  • Featured
  • Active
Townhouse

13307 PEACEFUL MELODY DR

  • 3
  • 3
  • 152 m²
avt
Daniel Dourado
$ 437,990
avt
Daniel Dourado
$ 625,000
img
  • Featured
  • Active
Townhouse

13299 PEACEFUL MELODY DR

  • 3
  • 3
  • 160 m²
avt
Daniel Dourado
$ 449,990
avt
Daniel Dourado
$ 247,000
img
  • Featured
  • Active
Townhouse

2316 FLETCHERS POINT CIR

  • 3
  • 3
  • 119 m²
avt
Daniel Dourado
$ 224,900
avt
Daniel Dourado
$ 340,000
avt
Daniel Dourado
$ 325,000
img
  • Featured
  • Active
Townhouse

5733 BLUEBERRY CT #119

  • 3
  • 3
  • 132 m²
avt
Daniel Dourado
$ 219,990
avt
Daniel Dourado
$ 475,000
avt
Daniel Dourado
$ 245,000