Active

$1,999,900

Características:
  • Quartos
  • 0 Banheiros
  • 0 m²
Visão Geral
  • ID: MFRL4949602
  • Quartos:
  • Banheiros: 0
  • Tamanho: 0 m²
Detalhes do Imóvel
Observações
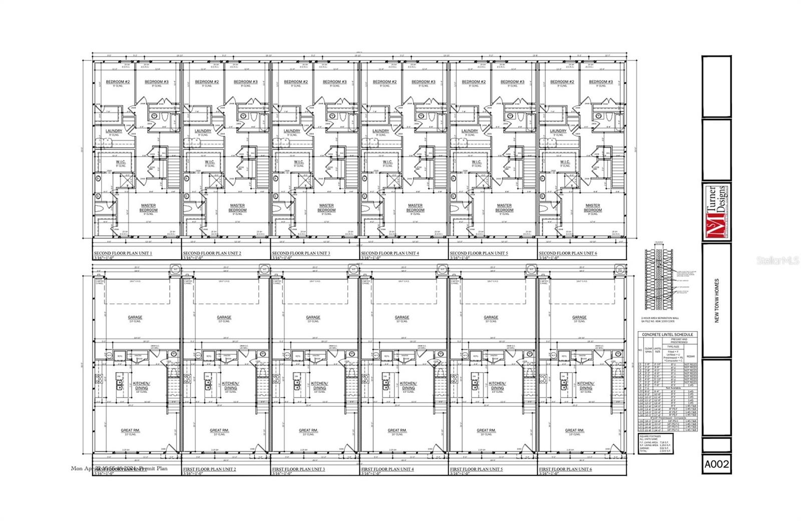
Townhomos de Riverwood Oaks - Visão geral de investimentos Localização: Flamingo Drive, Bartow, Flórida (Condado de Polk) Projeto: Local de Desenvolvimento de Townhome de 24 unidades-Totalmente projetado com aprovações da cidade no local e infraestrutura concluída. Principais pontos de venda Pronto para Shovel-Planos do local, classificação, drenagem e layouts de utilidades concluídas. Infraestrutura instalada: água, esgoto, sistemas de drenagem e estradas de acesso pavimentadas. Aprovado pela cidade de Bartow - O desenvolvimento pode prosseguir sem atrasos longos de direitos. Mercado forte: a demanda de aluguel do Condado de Polk está crescendo, especialmente para novos moradores de construção. Layout comprovado: Projeto Townhome aprovado com densidade ideal para retornos dos investidores. Oportunidade Ideal para construtores, desenvolvedores ou grupos de investidores que procuram uma construção imediata. Pode ser construído e vendido como município simples de taxa ou mantido como portfólio de aluguel. Estratégias de saída flexíveis com alta demanda de compradores por novas casas de baixa manutenção nessa área.
Considerações Financeiras
Preço:
$1,999,900
Taxa de HOA:
N/D
Valor do Imposto:
$282.94
Preço por m²:
$22.96
Descrição Legal do Imposto:
RIVERWOOD PROFESSIONAL PLAZA PB 74 PG 39 LOTE 1 MENOS SR 60A R/W PCL 114 SEÇÃO 16260-2508 COMO DESC IN OU 4879 PG 330
Características Exteriores
Tamanho do Lote:
87120
Características do Lote:
Construtível, limpo, nível, perto de campo de golfe, pavimentado
Beira-mar:
Não
Vagas de Estacionamento:
N/D
Estacionamento:
N/D
Telhado:
N/D
Piscina:
Não
Características da Piscina:
N/D
Características Interiores
Quartos:
Banheiros:
0
Aquecimento:
N/D
Resfriamento:
N/D
Eletrodomésticos:
N/D
Mobiliado:
Não
Andar:
N/D
Níveis:
N/D
Características Adicionais
Subtipo de Imóvel:
N/D
Estilo:
N/D
Ano de Construção:
N/D
Tipo de Construção:
N/D
Vagas na Garagem:
Não
Vagas Cobertas:
N/D
Orientação da Fachada:
N/D
Animais Permitidos:
Não
Condição Especial:
Nenhum
Características Adicionais:
N/D
Características Adicionais 2:
N/D
Mapa
  • Endereço
    0 FLAMINGO DR
Fale com um profissional
Por Que Nos Escolher?
  • Comunicação e Transparência
  • Negociação Qualificada
  • Rede Profissional Robusta
  • Suporte Pós-Venda
Propriedades em Destaque

Imóveis relacionados

img
  • Featured
  • Active

1421 VIA MILANESE

  • 0
  • 0 m²
avt
Daniel Dourado
$ 225,000
img
  • Featured
  • Active

841 E VENICE AVE

  • 0
  • 0 m²
avt
Daniel Dourado
$ 789,000
avt
Daniel Dourado
$ 1,800,000
img
  • Featured
  • Active

216 HARBOR VILLAGE PT N

  • 0
  • 0 m²
avt
Daniel Dourado
$ 268,000
img
  • Featured
  • Active

25229 MARION AVE

  • 0
  • 0 m²
avt
Daniel Dourado
$ 590,000
avt
Daniel Dourado
$ 393,490
img
  • Featured
  • Active

2270 GRIFFIN RD

  • 0
  • 0 m²
avt
Daniel Dourado
$ 589,000
img
  • Featured
  • Active

5900 LEON TYSON RD

  • 0
  • 0 m²
avt
Daniel Dourado
$ 2,170,000
img
  • Featured
  • Active

1298 BEACHVIEW AVE

  • 0
  • 0 m²
avt
Daniel Dourado
$ 4,200,000
img
  • Featured
  • Active

14320 FAMILY TRL

  • 0
  • 0 m²
avt
Daniel Dourado
$ 1,990,000
img
  • Featured
  • Active

10000 TAMIAMI TRL

  • 0
  • 0 m²
avt
Daniel Dourado
$ 13,000,000
img
  • Featured
  • Active

6041 GROVE BLVD

  • 0
  • 0 m²
avt
Daniel Dourado
$ 325,000