Active

$470,000

Características:
  • 5 Quartos
  • 3 Banheiros
  • 210 m²
Visão Geral
  • ID: MFRA4632651
  • Quartos: 5
  • Banheiros: 3
  • Tamanho: 210 m²
Detalhes do Imóvel
Observações
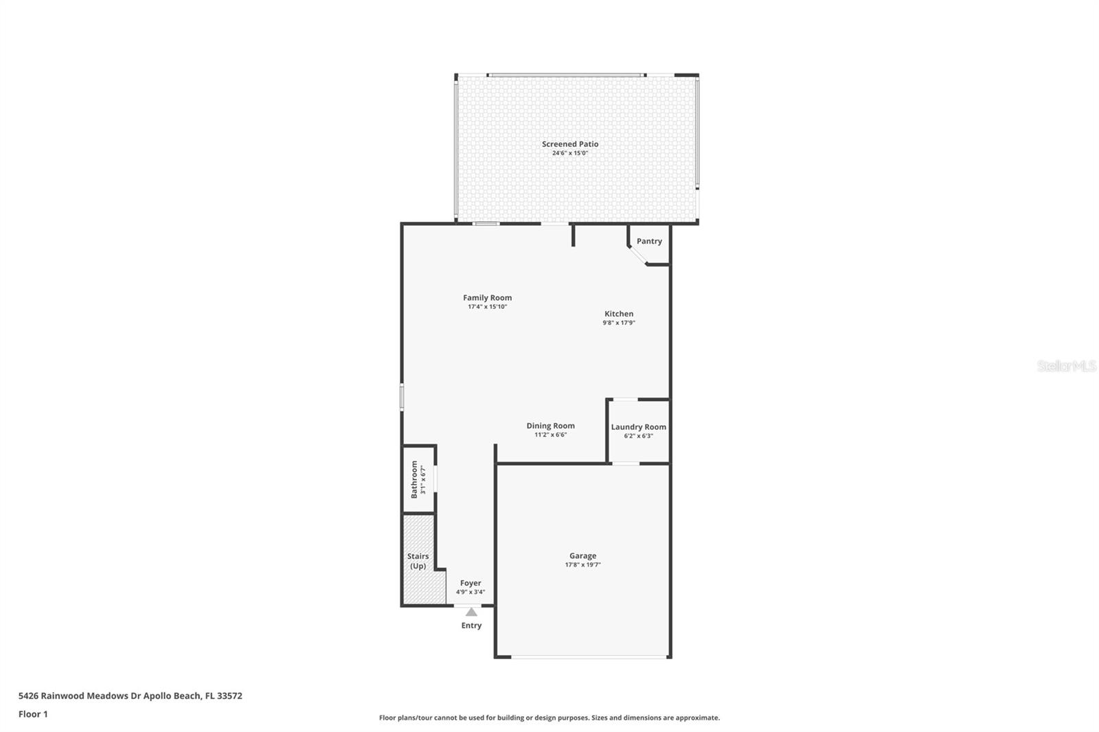
Bem -vindo ao Distrito de Desenvolvimento Comunitário de Lynwood, casa de Boston por Lennar - uma residência espaçosa que oferece 2.215 pés quadrados de espaço de estar, com cinco quartos e dois banheiros e meio, perfeitos para acomodar sua família numerosa. Ao entrar no hall de entrada, você será recebido por pisos de ladrilhos que se estendem por toda a área de estar, melhorando a elegância da casa. O coração desta casa é a cozinha expansiva, equipada com armários de painel quadrado de 36 "de noz -moscada de Andover, eletrodomésticos de Onyx Ge® e bancadas de granito impressionantes, complementadas por um desvencho de uma sala de estar com uma sala de estar com uma sala de estar, a uma sala de cozinha e a sala de estar a um desinfetante e a sala de estar a uma sala de estar, a uma sala de estar a uma sala de estar, sem flebulos, a uma sala de estar a uma sala de cozinha e a sala de estar a um pouco de família e a sala de estar, a uma sala de cozinha e a sala de estar a uma sala de estar, sem flebulos, a uma sala de estar a um pouco de família e divertir -se, a uma sala de estar a um pouco de uma sala de estar a uma sala de estar, a uma sala de estar a um pouco de uma sala de estar a ser projetada e divertida. No andar de baixo, você também encontrará uma generosa vias de linha, lavabo e uma lavanderia que leva à garagem de 2 carros. No andar de cima, um loft versátil aguarda, perfeito para noites de jogo ou cinema, junto com o quarto principal, sua vaidade dupla, chuveiro e espaçoso closet, quatro quartos adicionais e banheiro completo. Lynwood possui uma localização privilegiada a poucos momentos das impressionantes águas de Tampa Bay, oferecendo uma riqueza de atividades, como passeios de barco, embarque em remo e caiaque. Para quem ama a natureza, o próximo, por exemplo O Parque Regional de Simmons e o Centro de Visualização de peixes -boi proporcionam experiências excepcionais ao ar livre. Dentro da comunidade, os moradores podem relaxar na piscina no estilo resort, completos com assentos de cabana e aproveitar os amplos espaços verdes-ideais para desfrutar do belo sol da Flórida e se envolver em atividades ao ar livre.
Considerações Financeiras
Preço:
$470,000
Taxa de HOA:
150
Valor do Imposto:
$7770
Preço por m²:
$207.6
Descrição Legal do Imposto:
Subdivisão de Leisey Fase 2 Lote 6 Bloco 7
Características Exteriores
Tamanho do Lote:
4800
Características do Lote:
N/D
Beira-mar:
Não
Vagas de Estacionamento:
N/D
Estacionamento:
Entrada de automóveis, abridor de porta de garagem
Telhado:
Telha
Piscina:
Não
Características da Piscina:
N/D
Características Interiores
Quartos:
5
Banheiros:
3
Aquecimento:
Central, Elétrica
Resfriamento:
Central Aérea
Eletrodomésticos:
Máquina de lavar louça, fogão, geladeira
Mobiliado:
Não
Andar:
Vinil de luxo, azulejo
Níveis:
Dois
Características Adicionais
Subtipo de Imóvel:
Residência Unifamiliar
Estilo:
N/D
Ano de Construção:
2021
Tipo de Construção:
Bloco, estrutura metálica, estuque
Vagas na Garagem:
Sim
Vagas Cobertas:
N/D
Orientação da Fachada:
Oeste
Animais Permitidos:
Sim
Condição Especial:
Nenhum
Características Adicionais:
Iluminação
Características Adicionais 2:
Comprador deve verificar.
Mapa
  • Endereço
    5426 RAINWOOD MEADOWS DR
Fale com um profissional
Por Que Nos Escolher?
  • Comunicação e Transparência
  • Negociação Qualificada
  • Rede Profissional Robusta
  • Suporte Pós-Venda
Propriedades em Destaque

Imóveis relacionados

avt
Daniel Dourado
$ 620,000
avt
Daniel Dourado
$ 975,000
avt
Daniel Dourado
$ 529,900
avt
Daniel Dourado
$ 325,000
avt
Daniel Dourado
$ 385,000
avt
Daniel Dourado
$ 515,000
avt
Daniel Dourado
$ 899,990
avt
Daniel Dourado
$ 349,990
avt
Daniel Dourado
$ 324,999
avt
Daniel Dourado
$ 349,900